Translate with 
MENU ZAVŘÍT

Pronájem obchodních prostor 232 m², Tábor (ID 029-NP03224)

ulice 9. května, Tábor mapa

63 000 Kč ( za měsíc)
GMimořádně
nehospodárná

232 m2
Exkluzivně

Pronájem obchodních prostor, 232 m² – hlavní třída 9. května, Tábor

Reprezentativní obchodní prostor na nejfrekventovanější obchodní třídě v centru města.

Nabízíme k pronájmu lukrativní a reprezentativní obchodní prostory o celkové výměře 232 m² na hlavní obchodní třídě 9. května v samotném centru města Tábora. Prestižní adresa s vysokou frekvencí pohybu zajišťuje výbornou viditelnost i marketingový potenciál pro prezentaci značky či služeb.

HLAVNÍ PŘEDNOSTI • přímý vstup z hlavní ulice • dvě velké výlohy • výborná viditelnost provozovny • reprezentativní charakter prostoru • kompletní zázemí pro zaměstnanci.

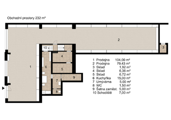
Dispoziční řešení zahrnuje hlavní obchodní část ve tvaru L o výměře 183,50 m², tři sklady o velikostech 6,36 m², 6,72 m², 1,92 m²a zázemí, které tvoří kuchyňka 15 m², umývárna 5 m², WC 1,5 m², šatna pro zaměstnance 5 m² a schodiště 7 m².

Prostory jsou v současné době využívány jako prodejna knih.

Díky své poloze, velikosti a reprezentativnímu charakteru jsou prostory vhodné nejen pro obchod či showroom, ale také jako sídlo společnosti – ideálně pro banku, pojišťovnu, finanční nebo jinou instituci, lékárnu, ordinaci či jiné prestižní služby.

Vytápění je řešeno samostatným plynovým kotlem. K dispozici je vlastní elektroměr i plynoměr, voda je měřena podružným vodoměrem.

Nájemné činí 63.000 Kč / měsíc. Záloha na vodné a stočné je 1.000 Kč / měsíc, spotřebu plynu a elektřiny si nájemce hradí samostatně.

K dispozici od 1. 4. 2026.

Pro další informace či sjednání prohlídky kontaktujte makléřku nabídky.
Cena:
63 000 CZK / za měsíc
Poznámka k ceně:
Upozornění:
Pronajímající si vyhrazuje právo vybrat nájemce na základě jím zvolených kritérií.
Monika Kristová
RE/MAX One
Pražská 223
Tábor, 39001
Česká republika
Tel. na makléře: +420 739 500 502
Tel. do kanceláře: +420 739 500 510
E-mail: monika.kristova@re-max.cz

Potřebujete poradit/máte zájem o prohlídku?

* – toto pole je nutné vyplnit

Podrobné informace

Číslo zakázky:
ID 029-NP03224
Typ nemovitosti:
Komerční prostory
Druh prostor:
Obchodní
Číslo podlaží:
1
Počet podlaží v objektu:
3
Plocha kanceláří:
232 m²
Druh objektu:
Cihlová
Stav objektu:
Velmi dobrý
Charakter okolní zástavby:
Obchodní
K nastěhování:
18. 2. 2026
Doprava:
Vlak, Dálnice, Silnice, MHD, Autobus
Elektřina:
230 V
Odpad:
Kanalizace
Celková plocha:
232 m²
Zastavěná plocha:
318 m²
Typ domu:
Přízemní
Umístění objektu:
Centrum obce
Voda:
Dálkový rozvod
Energetická náročnost budovy:
G