Translate with 
MENU ZAVŘÍT

Pronájem kancelářských prostor 78 m², Frýdek-Místek (ID 344-NP00647)

ulice náměstí Svobody, Frýdek-Místek – část obce Místek mapa

10 000 Kč ( za měsíc)
GMimořádně
nehospodárná

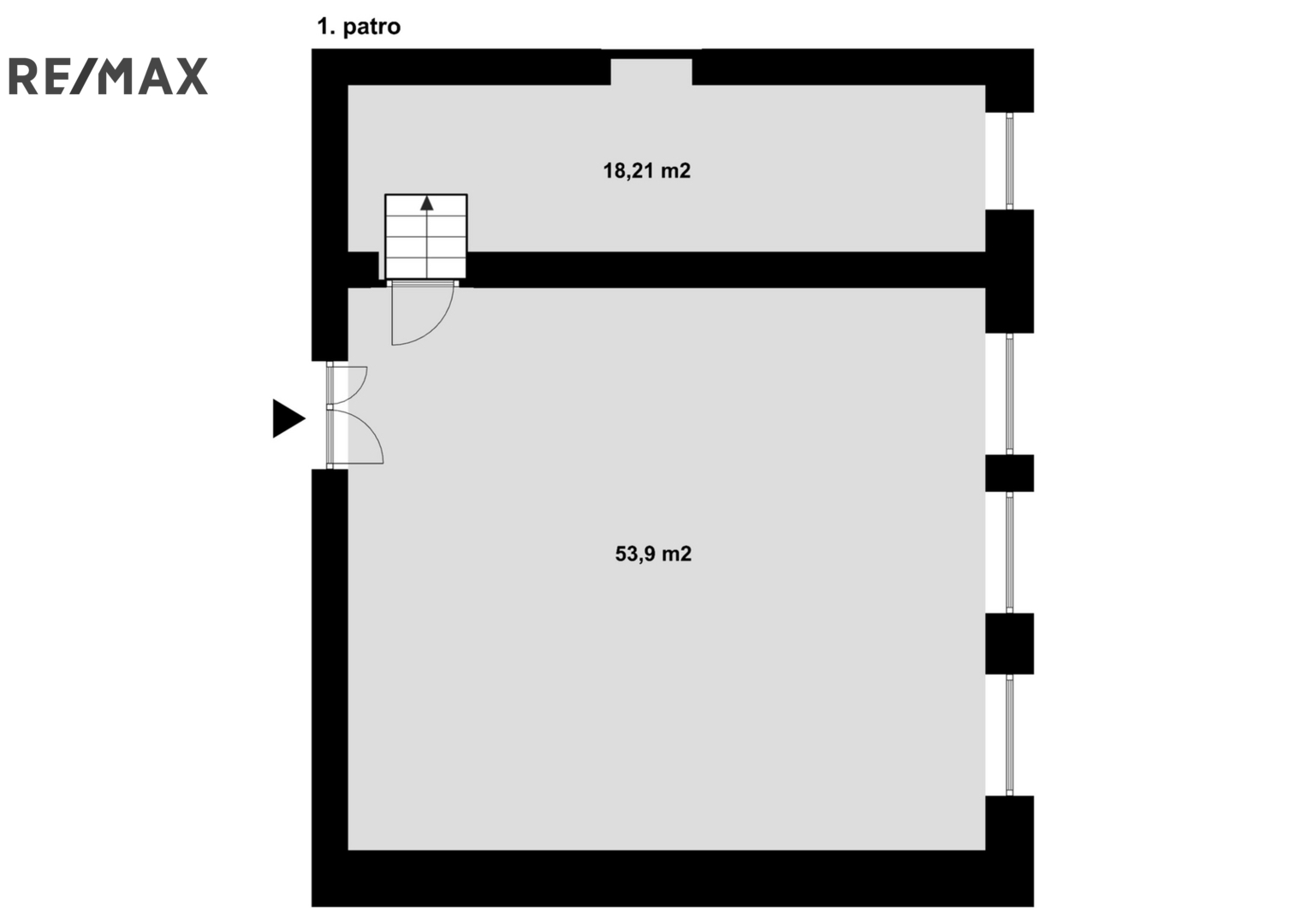
78 m2

Pronájem kanceláře 78 m² náměstí Svobody, Frýdek-Místek - Místek

K pronájmu nabízíme stylový prostor s vnitřním vyvýšeným patrem, umístěný v historické budově přímo na Náměstí Svobody ve Frýdku-Místku.

Jedná se o světlý a reprezentativní prostor, který svým uspořádáním nabízí široké možnosti využití – může sloužit jako cvičební studio, kancelář s oddělenou relaxační částí, showroom, ateliér, kreativní dílna či jiné podnikatelské zázemí.

Dispozice zahrnuje otevřenou spodní část s přímým vstupem a velkým množstvím denního světla, na kterou navazuje vyvýšené vnitřní patro vhodné například pro klientskou zónu, odpočinek nebo pracovní kout. Součástí je toaleta a možnost využívat přilehlé zázemí objektu.

Dostupnost: ihned
Lokalita: prestižní, frekventovaná poloha – přímo na hlavním náměstí
Nájemné: 10 000 Kč/měsíc + zálohy na energie

Unikátní šance získat prostory v jedné z nejatraktivnějších lokalit Frýdku-Místku.
Pro více informací či domluvení prohlídky nás neváhejte kontaktovat.
Cena:
10 000 CZK / za měsíc
Poznámka k ceně:
Upozornění:
Pronajímající si vyhrazuje právo vybrat nájemce na základě jím zvolených kritérií.
David Patera
RE/MAX Easy
28. října 1610/95
Ostrava, 70200
Česká republika
Tel. na makléře: +420 725 878 423
Tel. do kanceláře: +420 722 484 787
E-mail: david.patera@re-max.cz

Potřebujete poradit/máte zájem o prohlídku?

* – toto pole je nutné vyplnit

Podrobné informace

Číslo zakázky:
ID 344-NP00647
Typ nemovitosti:
Komerční prostory
Druh prostor:
Kanceláře
Počet podlaží v objektu:
1
Plocha kanceláří:
78 m²
Druh objektu:
Cihlová
Stav objektu:
Velmi dobrý
K nastěhování:
8. 10. 2025
Celková plocha:
78 m²
Typ domu:
Patrový
Umístění objektu:
Centrum obce
Energetická náročnost budovy:
G