Translate with 
MENU ZAVŘÍT

Prodej bytu 2+1 v osobním vlastnictví 55 m², Brno (ID 268-NP03501)

ulice Jílová, Brno – městská část Brno-střed mapa

6 390 000 Kč ( za nemovitost)
ENehospodárná

1x
2x
55 m2
6/9
Exkluzivně

Prodej bytu 2+1, 55,22m2, po částečné rekonstrukci Brno - Štýřice, ul. Jílová

Doporučuji zhlédnout videoprohlídku.




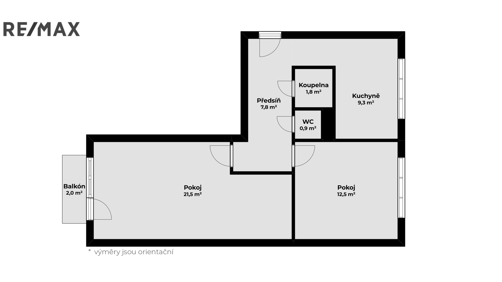
Ve výhradním zastoupení majitele si vám ke koupi dovoluji nabídnout bytovou jednotku s dispozicí 2+1 nacházející se v Brně - Štýřicích na ulici Jílová 28a.


Nemovitost může být novým domovem pro někoho, kdo chce býti blízko centru města, Londýnskému náměstí, Campus square nebo pracuje v nemocnici. Protože z tohoto bytu je to blízko skoro všude po Brně. Jednotka po částečné rekonstrukci vyklizená a připravena k okamžitému nastěhování bez větších oprav či úprav.


Byt s celkovou podlahovou plochou 55,22 m2 se nachází v 5. patře revitalizovaného panelového bytového domu. Při rekonstrukci z roku 2007, došlo k vyzdění bytového jádra, výměna podlahových krytin (Přesíň, koupelna, wc - kachličky. Kuchyně, ložnice a obývací pokoj - plovoucí laminátová podlaha), instalace sádrokartonových podhledů se zvukovou izolací a instalace měděných elektrických rozvodů vč. nových jističů. V roce 2020 byla všechna okna v bytě vyměněna za plastová okna s trojskly.




Ložnice a kuchyně mají okna situována na východ. Pokoj s nikou a balkonem je potom situovaný na západ s výhledem na Červený kopec.


Měsíční náklady:


SVJ vč. teplé vody, topení a fondu oprav - 4,562,- Kč
plyn - 210,- Kč
elektřína - 1300 - Kč


Celkové měsíční náklady pro jednu osoby byly minulý rok 6.072,- Kč.




K bytu také náleží sklepní kóje o výměře 1,07m2, jenž je započítána do celkové plochy bytu




V případě více zájemců bude nemovitost prodána nejvýhodnější nabídce a prodávající si vyhrazuje právo vybrat kupujícího na základě jím zvolených kritérií.

Výměry jsou orientační.

Veškeré zveřejněné údaje obsažené v tomto inzerátu mají pouze informativní charakter a nejsou nabídkou ve smyslu §1731 nebo §1732 občanského zákoníku, ani se nejedná o veřejný příslib dle §1733 občanského zákoníku. Z této nabídky tak nikomu nevzniká nárok na uzavření smlouvy.

Zajištění hypotečního servisu s nejvýhodnější nabídkou na trhu dle individuálních potřeb klienta je samozřejmostí a zdarma.

Zaujala vás tato nemovitost stejně jako mě?
Zavolejte mi a sjednejte si termín prohlídky!

Váš osobní realitní partner
Tomáš Nedoma
Cena:
6 390 000 CZK / za nemovitost
Poznámka k ceně:
Vč. odměny RK, vč. právního servisu
Upozornění:
Prodávající si vyhrazuje právo vybrat kupujícího na základě jím zvolených kritérií.
RX finance

Spočítejte si splátku hypotéky

Na kolik vás vyjde pořízení vlastního bydlení? Zadejte pár informací do naší hypoteční kalkulačky a hned si prohlédněte výsledek.

Kupní cena nemovitosti

6 390 000 Kč

Výše hypotéky

Doba splácení

Vypočítaná měsíční splátka

Úroková sazba 3.6%

260 990 Kč

Hypotéku zařídíme za vás

Ušetřete svůj čas i nervy. Naši makléři zařídí veškeré papírování a dovedou vás až k úspěšnému podpisu smlouvy v bance.

Nechte nám kontakt, náš makléř se v pracovní dny ozve do 24 hodin

* – toto pole je nutné vyplnit
Tomáš Nedoma
RE/MAX Delux
Křenová 538/22
Brno, 60200
Česká republika
Tel. na makléře: +420 775 181 220
Tel. do kanceláře: +420 602 703 897
E-mail: tomas.nedoma@re-max.cz

Potřebujete poradit/máte zájem o prohlídku?

* – toto pole je nutné vyplnit

Podrobné informace

Číslo zakázky:
ID 268-NP03501
Dispozice:
2+1
Číslo podlaží:
6
Počet podlaží v objektu:
9
Podlahová plocha:
55 m²
Druh objektu:
Panelová
Stav objektu:
Dobrý
Vlastnictví:
Osobní
Typ nemovitosti:
Byty
Charakter okolní zástavby:
Obytná
Doprava:
Dálnice, Silnice, MHD, Autobus
Elektřina:
120 V, 230 V
Odpad:
Kanalizace
Ostatní rozvody:
Kabelová televize, Kabelové rozvody
Užitná plocha:
55 m²
Zastavěná plocha:
1 211 m²
Plyn:
Plynovod
Telekomunikace:
Internet
Umístění objektu:
Sídliště
Voda:
Dálkový rozvod
Energetická náročnost budovy:
E
Měrná vypočtená roční spotřeba energie v kWh/m²/rok:
200