Translate with 
MENU ZAVŘÍT

Pronájem bytu 2+1 v osobním vlastnictví 59 m², Němčice nad Hanou (ID 268-NP03504)

ulice Dukelská, Němčice nad Hanou mapa

12 500 Kč ( za měsíc)
GMimořádně
nehospodárná

1x
2x
59 m2
2/2
Exkluzivně

Pronájem moderně zrekonstruovaného bytu 2+1, 58,60 m², Němčice nad Hanou

Nabízíme k pronájmu moderně zrekonstruovaný byt o dispozici 2+1 o celkové ploše 58,60 m² v klidné části města Němčice nad Hanou. Byt je připraven k okamžitému nastěhování a nabízí příjemné bydlení mimo ruch větších měst.

Byt se nachází ve 2. nadzemním podlaží menšího cihlového domu s pouhými šesti bytovými jednotkami, který nabízí klidné bydlení. Parkování je možné pohodlně přímo před domem.

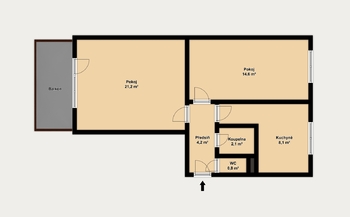
Dispozice bytu zahrnuje prostorný pokoj o výměře 21,20 m² se vstupem na balkon, druhý pokoj o velikosti 14,60 m², kuchyni o výměře 8,10 m², předsíň, koupelnu, samostatné WC a velkorysou sklepní kóji o výměře 7,60 m², která poskytuje dostatek úložného prostoru. Byt se pronajímá jako nevybavený, takže si jej můžete zařídit dle vlastních představ.

Měsíční nájemné činí 12 500 Kč. Zálohy na energie a služby jsou stanoveny na 3 500 Kč měsíčně. Kauce je ve výši dvou měsíčních nájmů.

Lokalita nabízí výbornou dostupnost do okolních měst. Prostějov cca 15 až 20 minut, Vyškov a Kroměříž kolem 20 minut, Přerov přibližně 25 minut a Olomouc do 35 minut jízdy autem.

Pokud hledáte klidné bydlení s dobrou dostupností a pohodlným parkováním, ozvěte se mi. Rád vám byt osobně ukážu.
Cena:
12 500 CZK / za měsíc
Poznámka k ceně:
+ 3 500 Kč služby + 25 000 Kč kauce + provize RK
Upozornění:
Pronajímající si vyhrazuje právo vybrat nájemce na základě jím zvolených kritérií.
Radek Malhocký
RE/MAX Delux
Křenová 538/22
Brno, 60200
Česká republika
Tel. na makléře: +420 774 682 625
Tel. do kanceláře: +420 602 703 897
E-mail: radek.malhocky@re-max.cz

Potřebujete poradit/máte zájem o prohlídku?

* – toto pole je nutné vyplnit

Podrobné informace

Číslo zakázky:
ID 268-NP03504
Dispozice:
2+1
Číslo podlaží:
2
Počet podlaží v objektu:
2
Podlahová plocha:
59 m²
Druh objektu:
Cihlová
Stav objektu:
Velmi dobrý
Vlastnictví:
Osobní
Typ nemovitosti:
Byty
K nastěhování:
20. 2. 2026
Doprava:
Vlak, Silnice, Autobus
Elektřina:
230 V
Odpad:
Kanalizace
Užitná plocha:
51 m²
Plyn:
Plynovod
Umístění objektu:
Okraj obce
Energetická náročnost budovy:
G