Translate with 
MENU ZAVŘÍT

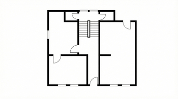
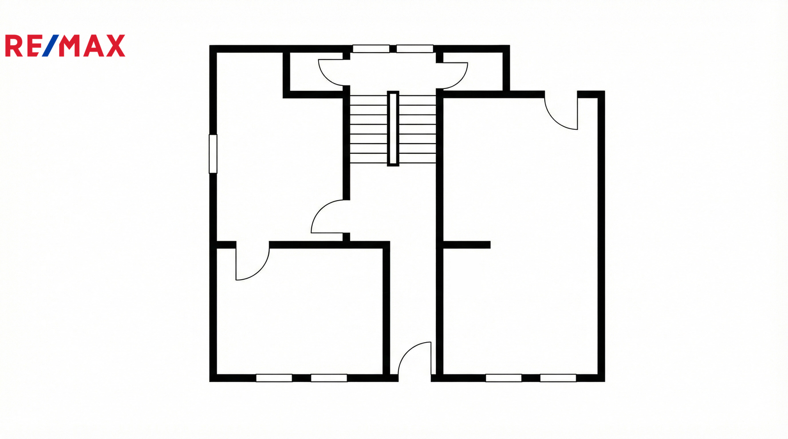
Prodej domu 426 m², Chodov (ID 294-NP01757)

ulice Nejdecká, Chodov mapa

8 500 000 Kč ( za nemovitost)
CÚsporná

5+
426 m2
1327 m2
3
Exkluzivně

Rodinný / vícegenerační dům 426 m2 s pozemkem 1327 m2

Hledáte rodinný dům s potenciálem, který si můžete přizpůsobit přesně podle svých představ? Právě jste jej našli.

Nabízíme Vám mimořádně prostorný dům určený k rekonstrukci. Současné dispoziční řešení umožňuje snadnou reorganizaci místností a úpravu prostoru dle budoucího využití – ať už sníte o komfortním vícegeneračním domově, bytovém domě s bytovými jednotkami, kombinaci bydlení s podnikáním, nebo o elegantní vile s dostatkem soukromí.

Dům je napojen na veškeré inženýrské sítě – elektřinu, plyn i veřejný vodovod, což usnadňuje plánovanou rekonstrukci a budoucí úpravy.

Za domem se rozprostírá krásná rovinatá zahrada o výměře 847 m², která nabízí široké možnosti využití. Můžete zde vytvořit okrasnou i užitkovou zahradu s ovocnými stromy a zeleninovými záhony, vybudovat dětské hřiště, bazén, pergolu pro letní posezení nebo klidovou zónu pro relaxaci. Je to prostor, kde může vzniknout skutečný rodinný ráj.

Celková výměra pozemku činí 1 327 m² a dle platného územního plánu je vedena v ploše B – bydlení. To otevírá další investiční potenciál v podobě možnosti výstavby dalšího domu či rozšíření stávající zástavby.

Tato nemovitost nabízí nejen prostor, ale především příležitost – vytvořit domov či investici přesně podle Vašich představ. Pokud hledáte dům s vizí a budoucností, tato nabídka rozhodně stojí za Vaši pozornost.
Cena:
8 500 000 CZK / za nemovitost
Poznámka k ceně:
Upozornění:
Prodávající si vyhrazuje právo vybrat kupujícího na základě jím zvolených kritérií.
RX finance

Spočítejte si splátku hypotéky

Na kolik vás vyjde pořízení vlastního bydlení? Zadejte pár informací do naší hypoteční kalkulačky a hned si prohlédněte výsledek.

Kupní cena nemovitosti

8 500 000 Kč

Výše hypotéky

Doba splácení

Vypočítaná měsíční splátka

Úroková sazba 3.6%

260 990 Kč

Hypotéku zařídíme za vás

Ušetřete svůj čas i nervy. Naši makléři zařídí veškeré papírování a dovedou vás až k úspěšnému podpisu smlouvy v bance.

Nechte nám kontakt, náš makléř se v pracovní dny ozve do 24 hodin

* – toto pole je nutné vyplnit
Alexandr Mizjuk
RE/MAX Glorion
Krymská 1056/5
Karlovy Vary, 36001
Česká republika
Tel. na makléře: +420 776 395 579
Tel. do kanceláře: +420 776 395 579
E-mail: alexandr.mizjuk@re-max.cz

Potřebujete poradit/máte zájem o prohlídku?

* – toto pole je nutné vyplnit

Podrobné informace

Číslo zakázky:
ID 294-NP01757
Poloha objektu:
Řadový
Počet podlaží v objektu:
3
Užitná plocha:
426 m²
Plocha parcely:
1 327 m²
Druh objektu:
Cihlová
Stav objektu:
Před rekonstrukcí
Typ nemovitosti:
Domy a vily
Doprava:
Silnice, MHD, Autobus
Elektřina:
230 V
Odpad:
Kanalizace
Plocha zahrady:
847 m²
Zastavěná plocha:
142 m²
Plyn:
Plynovod
Počet podlaží pod zemí:
1
Typ domu:
Patrový
Voda:
Dálkový rozvod
Energetická náročnost budovy:
C