Translate with 
MENU ZAVŘÍT

Pronájem bytu 2+kk v osobním vlastnictví 61 m², Mohelnice (ID 349-NP00152)

ulice nám. Kosmonautů, Mohelnice mapa

14 000 Kč ( za měsíc)
DMéně
úsporná

kk
2x
61 m2
4/8

Pronájem vkusně zrekonstruovaného a vybaveného bytu 2+kk na nám. Kosmonautů v Mohelnici

Vážení klienti,

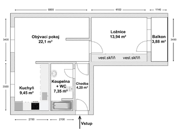
nabízím vám k pronájmu prostorný vkusně zařízený byt 2+kk (57 m2 + balkón 4 m2) na nám. Kosmonautů v Mohelnici.
Byt se nachází ve 4. nadzemním podlaží (3.patře) zrekonstruovaného panelového domu s výtahem a je pronajímán plně vybavený, tak jak vidíte na fotografiích.
Součástí kuchyňské linky je nová prostorná lednice, digestoř, plynový sporák, elektrická trouba, mikrovlnná trouba a nádobí.
Koupelna je prostorná, s vanou, WC a pračkou. V bytě je dostatek úložných prostor - velká šatní skříň v ložnici.
K bytu náleží sklepní kóje a k dispozici je kolárna. Parkoviště je 20 m od vchodu. Na náměstí je to 3 min. pěší chůzí, 5 min je Penny market, 10 min Lidl.

Cena pronájmu včetně služeb činí 20.745-Kč. V této ceně je nájemné 14.000,-Kč, platba za služby cca 6.745,-Kč, vč. eletkřiny a plynu.
Vratná jistota (kauce) činí 25.000,-Kč. Provize RK 8.470,-Kč.

Byt je připraven k nastěhování pro spolehlivé nájemníky, hledající dlouhodobý pronájem. Pronajímající si vyhrazuje právo vybrat nájemce na základě jím zvolených kritérií.
Cena:
14 000 CZK / za měsíc
Poznámka k ceně:
+ zálohy na služby a energie ,-Kč + kauce 25.000,- Kč + provize RK 8.470,- Kč
Upozornění:
Pronajímající si vyhrazuje právo vybrat nájemce na základě jím zvolených kritérií.
Ing. Adéla Vaňková
RE/MAX Relations
Staškova 169/69
Mohelnice, 78985
Česká republika
Tel. na makléře: +420 731 305 955
Tel. do kanceláře: +420 731 305 955
E-mail: adela.vankova@re-max.cz

Potřebujete poradit/máte zájem o prohlídku?

* – toto pole je nutné vyplnit

Podrobné informace

Číslo zakázky:
ID 349-NP00152
Dispozice:
2+kk
Číslo podlaží:
4
Počet podlaží v objektu:
8
Podlahová plocha:
61 m²
Druh objektu:
Panelová
Stav objektu:
Velmi dobrý
Vlastnictví:
Osobní
Typ nemovitosti:
Byty
Charakter okolní zástavby:
Obytná
K nastěhování:
23. 2. 2026
Doprava:
Vlak, Dálnice, Silnice, MHD, Autobus
Odpad:
Kanalizace
Ostatní rozvody:
Kabelová televize, Kabelové rozvody
Užitná plocha:
57 m²
Zastavěná plocha:
234 m²
Počet podlaží pod zemí:
1
Telekomunikace:
Internet
Umístění objektu:
Sídliště
Voda:
Dálkový rozvod
Vybaveno:
Ano
Výtah:
Ano
Energetická náročnost budovy:
D