Translate with 
MENU ZAVŘÍT

Prodej bytu 2+kk v osobním vlastnictví 58 m², Karlovy Vary (ID 294-NP01769)

ulice Krále Jiřího, Karlovy Vary mapa

6 900 000 Kč ( za nemovitost)
GMimořádně
nehospodárná

kk
2x
58 m2
2/4
Exkluzivně

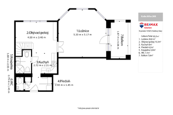
Prodej stylového bytu 2+kk se spaním v patře a balkónem

Nabízíme k prodeji výjimečný byt 2+kk se spaním v patře, jehož interiér i vybavení byly navrženy designérem s důrazem na maximální využití každého centimetru prostoru. Výsledkem je promyšlené, funkční a zároveň velmi vkusné bydlení.

Dominantou bytu je vzdušný obytný prostor se spacím patrem, které zajišťuje pohodlí i soukromí. Kuchyňský kout je citlivě zakomponován do interiéru tak, aby působil čistě a nerušil celkový dojem. Koupelna je vybavena sprchovým koutem, WC a bidetem. Další samostatné WC přispívá k vyššímu komfortu domácnosti i návštěv. V bytě jsou kvalitní parkety a dlažba, repasovaná okna i dveře podtrhují charakter prostoru. Samozřejmostí je kompletní a stylové zařízení – stačí se jen nastěhovat. Příjemným bonusem je balkón s krásným výhledem, ideální pro ranní kávu či večerní relax.

Byt je ideální pro jednotlivce nebo pár, kteří ocení kvalitní design, funkčnost a útulnou atmosféru.

Ulice Krále Jiřího se nachází v širším centru města Karlovy Vary, v klidné a vyhledávané rezidenční části s výbornou dostupností do lázeňského centra i běžné občanské vybavenosti. Lokalita je oblíbená pro kombinaci městského komfortu a příjemného prostředí plného zeleně. Milovníci přírody ocení blízkost parků a vyhlídek. Oblíbeným cílem pro procházky je například Rozhledna Diana, odkud je krásný výhled na celé město a okolní lesy. V okolí je kompletní občanská vybavenost – školy, školky, lékaři, zastávky MHD i menší obchody. Lokalita tak nabízí příjemné bydlení s lázeňskou atmosférou, ale zároveň praktickým zázemím pro každodenní život.

Pro více informací a domluvení prohlídky mě neváhejte kontaktovat.
Cena:
6 900 000 CZK / za nemovitost
Poznámka k ceně:
Upozornění:
Prodávající si vyhrazuje právo vybrat kupujícího na základě jím zvolených kritérií.
RX finance

Spočítejte si splátku hypotéky

Na kolik vás vyjde pořízení vlastního bydlení? Zadejte pár informací do naší hypoteční kalkulačky a hned si prohlédněte výsledek.

Kupní cena nemovitosti

6 900 000 Kč

Výše hypotéky

Doba splácení

Vypočítaná měsíční splátka

Úroková sazba 3.6%

260 990 Kč

Hypotéku zařídíme za vás

Ušetřete svůj čas i nervy. Naši makléři zařídí veškeré papírování a dovedou vás až k úspěšnému podpisu smlouvy v bance.

Nechte nám kontakt, náš makléř se v pracovní dny ozve do 24 hodin

* – toto pole je nutné vyplnit
Alexandr Mizjuk
RE/MAX Glorion
Krymská 1056/5
Karlovy Vary, 36001
Česká republika
Tel. na makléře: +420 776 395 579
Tel. do kanceláře: +420 776 395 579
E-mail: alexandr.mizjuk@re-max.cz

Potřebujete poradit/máte zájem o prohlídku?

* – toto pole je nutné vyplnit

Podrobné informace

Číslo zakázky:
ID 294-NP01769
Dispozice:
2+kk
Číslo podlaží:
2
Počet podlaží v objektu:
4
Podlahová plocha:
58 m²
Druh objektu:
Smíšená
Stav objektu:
Dobrý
Vlastnictví:
Osobní
Typ nemovitosti:
Byty
Doprava:
Silnice, MHD
Elektřina:
230 V
Odpad:
Kanalizace
Užitná plocha:
49 m²
Plocha zahrady:
1 259 m²
Plyn:
Plynovod
Umístění objektu:
Klidná část obce
Voda:
Dálkový rozvod
Vybaveno:
Ano
Energetická náročnost budovy:
G