Translate with 
MENU ZAVŘÍT

Prodej bytu 1+1 v osobním vlastnictví 50 m², Pardubice (ID 336-NP00074)

ulice Pichlova, Pardubice – městská část Pardubice V mapa

4 790 000 Kč ( za nemovitost)
GMimořádně
nehospodárná

1x
1x
50 m2
3/9
Exkluzivně

Byt 1+1 s možností 2+1

Skvělá investiční příležitost v centru Pardubic!

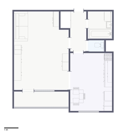
Exkluzivně nabízíme slunný prostorný byt 1+1 v osobním vlastnictví na adrese Pichlova 2653. Tento panelový dům prošel v 2014 zdařilou rekonstrukcí, včetně zateplení, nové fasády, výtahů a plastových oken. Byt se nachází ve 3. podlaží s výtahem a sestává z kuchyně, koupelny s vanou a odděleného wc, chodbou s vestavěnou skříní, a velkorysým obývacím pokojem se dvěma vchody, jedním z chodby a druhým z kuchyně. Díky této dispozici lze přidáním jednoduché příčky udělat z bytu rázem byt 2+1 se dvěma neprůchozími pokoji! Z obývacího pokoje rovněž vede vstup na prostornou lodžii (4,2 m²) s výhledem do klidného vnitrobloku. K bytu také náleží sklep o rozměrech 4 m². Celková plocha bytu včetně sklepa a lodžie činí 50,2 m².

Platby SVJ jsou pro tento byt velmi nízké, a to pouhých 1515,- Kč. Platba za teplo a vodu činí 1365,- Kč, elektřina 760,- Kč. K bytu je napojeno optické internetové připojení.

Další výhodou bytu je parkování přímo před domem a skvělá dostupnost do centra města. V těsné blízkosti bytu se nachází poliklinika Vektor (5 min chůze), supermarket Billa (5 min chůze) a Kaufland (7 min chůze). Vedle bytového domu rovněž najdeme základní školu, gymnázium, sportoviště i několik dětských hřišť. Byt je tak ideální pro jednotlivce i jako startovací rodinné bydlení.

Vybavení bytu je původní, byt byl roky obsazen stálým nájemníkem. Momentálně je byt volný, nově vymalovaný a připravený k nastěhování či modernizaci dle vašich představ.

V případě hypotečního úvěru Vám financování rádi zajistíme.

Pro více informací a prohlídky mě neváhejte kontaktovat! Ráda Vám byt osobně představím.
Cena:
4 790 000 CZK / za nemovitost
Poznámka k ceně:
Upozornění:
Prodávající si vyhrazuje právo vybrat kupujícího na základě jím zvolených kritérií.
RX finance

Spočítejte si splátku hypotéky

Na kolik vás vyjde pořízení vlastního bydlení? Zadejte pár informací do naší hypoteční kalkulačky a hned si prohlédněte výsledek.

Kupní cena nemovitosti

4 790 000 Kč

Výše hypotéky

Doba splácení

Vypočítaná měsíční splátka

Úroková sazba 3.6%

260 990 Kč

Hypotéku zařídíme za vás

Ušetřete svůj čas i nervy. Naši makléři zařídí veškeré papírování a dovedou vás až k úspěšnému podpisu smlouvy v bance.

Nechte nám kontakt, náš makléř se v pracovní dny ozve do 24 hodin

* – toto pole je nutné vyplnit
Mgr. Judith Kongas
RE/MAX Meloun
Jiřího Tomana 276
Pardubice, 53009
Česká republika
Tel. na makléře: +420 704 708 900
Tel. do kanceláře: +420 605 903 654
E-mail: judith.kongas@re-max.cz

Potřebujete poradit/máte zájem o prohlídku?

* – toto pole je nutné vyplnit

Podrobné informace

Číslo zakázky:
ID 336-NP00074
Dispozice:
1+1
Číslo podlaží:
3
Počet podlaží v objektu:
9
Podlahová plocha:
50 m²
Druh objektu:
Panelová
Stav objektu:
Dobrý
Vlastnictví:
Osobní
Typ nemovitosti:
Byty
Charakter okolní zástavby:
Obchodní a obytná
K nastěhování:
6. 3. 2026
Doprava:
Vlak, Silnice, MHD, Autobus
Elektřina:
230 V
Odpad:
Kanalizace
Užitná plocha:
42 m²
Zastavěná plocha:
921 m²
Plyn:
Plynovod
Počet podlaží pod zemí:
1
Telekomunikace:
Internet
Umístění objektu:
Centrum obce
Voda:
Dálkový rozvod
Vybaveno:
Ano
Výtah:
Ano
Energetická náročnost budovy:
G