Translate with 
MENU ZAVŘÍT

Prodej domu 78 m², Měcholupy (ID 032-NP09564)

Měcholupy, okres Louny mapa

4 900 000 Kč ( za nemovitost)
GMimořádně
nehospodárná

3x
78 m2
703 m2
2
Exkluzivně

Prodej rodinného domu 78 m², Měcholupy

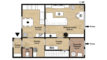
Nabízíme k prodeji rodinný dům v obci Měcholupy, okres Louny. Jedná se o patrový řadový dům, v dobrém stavu, se zastavěnou plochou 69 m² a pozemkem o výměře 703 m². Dům disponuje třemi pokoji, což poskytuje dostatek prostoru pro ložnici i samostatné dětské pokoje či hernu. Užitná plocha je evidována 78 m².

Pro rodiny s dětmi přináší nemovitost klidnou polohu obce, prostornou zahradu ideální pro venkovní aktivity. V obci je veškerá občanská vybavenost. V Měcholupech se nachází mateřská škola a základní škola. Dále se v obci nachází obvodní praktický lékař, pošta, úřad obce a dům s pečovatelskou službou.

Dům je momentálně neobydlen a je ihned k dispozici k nastěhování. Za zmínku stojí nedaleké město Žatec a tak má člověk na dosah ruky větší město a zároveň klid a pohodlí menší obce.

Interiér domu není vybaven, což umožňuje individuální úpravy podle potřeb rodiny. K domu vede zpevněná asfaltová komunikace, dostupnost dopravy je zajištěna také skrze vlak či autobus. Lokalita nabízí klidné prostředí, kdy samotná nemovitost stojí v klidné části obce.

Nová střecha (cca 10 let) a nový plynový kotel zajišťují dlouhodobou provozní spolehlivost a tepelné pohodlí. Topení je řešeno radiátory, ohřev vody zajišťuje elektrický bojler. Odpad je napojen na kanalizaci, přívod plynu z plynovodu + sporák na plyn, kdy zde je připojení skrz plynovou bombu umístěnou mimo rodinný dům.

Upozornění: fotografie obsahují vizualizace.

V případě zájmu o prohlídku nás neváhejte kontaktovat na telefonním čísle 722 521 535. Prodávající si vyhrazuje právo vybrat kupujícího na základě jím zvolených kritérií.
Cena:
4 900 000 CZK / za nemovitost
Poznámka k ceně:
Upozornění:
Prodávající si vyhrazuje právo vybrat kupujícího na základě jím zvolených kritérií.
RX finance

Spočítejte si splátku hypotéky

Na kolik vás vyjde pořízení vlastního bydlení? Zadejte pár informací do naší hypoteční kalkulačky a hned si prohlédněte výsledek.

Kupní cena nemovitosti

4 900 000 Kč

Výše hypotéky

Doba splácení

Vypočítaná měsíční splátka

Úroková sazba 3.6%

260 990 Kč

Hypotéku zařídíme za vás

Ušetřete svůj čas i nervy. Naši makléři zařídí veškeré papírování a dovedou vás až k úspěšnému podpisu smlouvy v bance.

Nechte nám kontakt, náš makléř se v pracovní dny ozve do 24 hodin

* – toto pole je nutné vyplnit
Martin Jelínek
RE/MAX 4 You
Nám. 1. máje 95
Chomutov, 43001
Česká republika
Tel. na makléře: +420 722 521 535
Tel. do kanceláře: +420 739 500 617
E-mail: martin.jelinek@re-max.cz

Potřebujete poradit/máte zájem o prohlídku?

* – toto pole je nutné vyplnit

Podrobné informace

Číslo zakázky:
ID 032-NP09564
Poloha objektu:
Řadový
Počet podlaží v objektu:
2
Užitná plocha:
78 m²
Plocha parcely:
703 m²
Druh objektu:
Smíšená
Stav objektu:
Dobrý
Typ nemovitosti:
Domy a vily
Charakter okolní zástavby:
Obytná
K nastěhování:
27. 2. 2026
Doprava:
Vlak, Silnice, Autobus
Elektřina:
230 V
Odpad:
Kanalizace
Plocha zahrady:
594 m²
Zastavěná plocha:
69 m²
Plyn:
Plynovod
Počet podlaží pod zemí:
1
Typ domu:
Patrový
Umístění objektu:
Klidná část obce
Voda:
Dálkový rozvod
Energetická náročnost budovy:
G