Translate with 
MENU ZAVŘÍT

Pronájem bytu 2+kk v osobním vlastnictví 55 m², Olomouc (ID 160-NP02867)

ulice Janského, Olomouc – část obce Povel mapa

16 000 Kč ( za měsíc)
BVelmi
úsporná

kk
2x
65 m2
6/7

Nabízíme pronájem bytu, novostavby 2+kk, 65 m2 včetně terasy v Olomouci

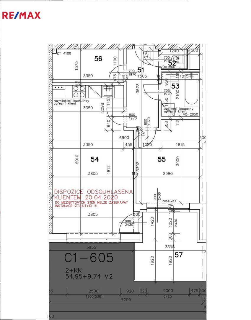
Nabízíme pronájem bytu, novostavby 2+kk, 65 m2 včetně terasy (10 m2) v Olomouci s možností parkovacího stání přímo před domem (není v ceně). Byt se nachází v 6.NP s výtahem. Rok kolaudace 2021.
Do bytu se vchází chodbičkou, kde po levé straně je samostatné WC a dále koupelna s vanou. V pravé části je komora a za ní obývací pokoj s kuchyňským koutem. Byt prosvětluje velké okno se vstupem na balkon po levé straně. Přímo z chodbičky je vstup do ložnice, která je také propojená s balkonem. Vybavení bytu - lednice s mrazákem, mikrovlnná trouba, myčka, elektrická trouba s varnou deskou a digestoř (bez nábytku). Okna plastová, podlahy vinyl a keramika. Zálohy na poplatky dle počtu osob, parkovací stání se připočítává k nájmu a to za částku 1.500,- Kč/měsíc, jistota 18.000,- Kč, provize RK ve výši nájmu + DPH. V okolí se nachází veškerá občanská vybavenost - ZŠ, školka, zdravotní středisko, lékárna, potraviny, fit centrum, nemocnice a MHD. Pro další informace a možnost prohlídky, kontaktujte makléře nabídky. Pronajímající si vyhrazuje právo vybrat nájemce na základě jím zvolených kritérií.
Cena:
16 000 CZK / za měsíc
Poznámka k ceně:
Parkovací stání se připočítává k nájmu a to za částku 1.500,- Kč/měsíc + zálohy na poplatky
Petra Kladivová
REMAX MONARCHA
Masarykova třída 105/29
Olomouc, 77900
Česká republika
Tel. na makléře: +420 777 235 426
Tel. do kanceláře: +420 777 235 428
E-mail: petra.kladivova@re-max.cz

Potřebujete poradit/máte zájem o prohlídku?

* – toto pole je nutné vyplnit

Podrobné informace

Číslo zakázky:
ID 160-NP02867
Dispozice:
2+kk
Číslo podlaží:
6
Počet podlaží v objektu:
7
Užitná plocha:
55 m²
Druh objektu:
Skeletová
Stav objektu:
Novostavba
Vlastnictví:
Osobní
Typ nemovitosti:
Byty
K nastěhování:
1. 5. 2026
Odpad:
Kanalizace
Podlahová plocha:
65 m²
Plyn:
Plynovod
Umístění objektu:
Sídliště
Výtah:
Ano
Energetická náročnost budovy:
B