Translate with 
MENU ZAVŘÍT

Prodej domu 480 m², Velké Popovice (ID 273-NP04773)

ulice Na Dlaskově, Velké Popovice – část obce Brtnice mapa

24 300 000 Kč ( za nemovitost)
BVelmi
úsporná

5+
480 m2
1247 m2
3
Exkluzivně

Prodej vícegeneračního rodinného domu 480 m2, pozemek 1247 m2, Velké Popovice, Praha-Vychod.

Prodej nízkoenergetického rodinného domu ve skandinávském stylu.

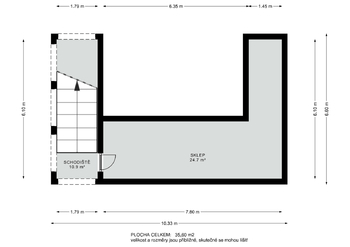
Nabízíme k prodeji viladům se dvěma bytovými jednotkami, vhodný také pro vícegenerační bydlení. Součástí domu je prostorná terasa a zahrada. Dům je podsklepený (36,5 m²).

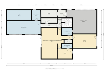
V 1. nadzemním podlaží se nachází byt o dispozici 3+kk s podlahovou plochou 100 m² a třemi samostatnými vstupy. Součástí je také místnost připravená pro vybudování bazénu s relaxační zónou o velikosti 60 m². Byt je vybaven bezbariérovými pomůckami v koupelně i na WC.

2. nadzemní podlaží tvoří prostorný a prosluněný penthouse o dispozici 4+1 s podlahovou plochou 184 m² a terasou o velikosti 40 m², která nabízí krásný výhled do okolí. Penthouse zaujme také nadstandardně vysokými stropy až do výšky 5,5 m.

Dům je vybaven dvěma plnohodnotnými kuchyněmi, čtyřmi koupelnami a dvěma krby s horním zdvihem.

V celém domě je instalována klimatizace s možností chlazení i vytápění, dále podlahové vytápění a podlahová krytina Lamino (Německo). Panoramatická okna jsou vybavena bezpečnostním systémem a trojskly.

K domu náleží dvě kaskádové terasy a dvůr vydlážděný přírodním kamenem.

Nemovitost je vybavena nadstandardním zabezpečovacím systémem včetně kamer a čidel, umístěných uvnitř i po obvodu domu. Systém je napojen na pult centralizované ochrany (PCO) společnosti Jablotron. Venkovní osvětlení domu je řešeno stacionárními čidly.

Dům je zateplen fasádním systémem Weber, střecha je kvalitně izolována, což přispívá k nízké energetické náročnosti a minimální potřebě klimatizace. Součástí je také dvojkomín. Exteriér domu doplňují dekorativní architektonické prvky – římsy a podélné fasádní linie.

Zahrada je vybavena drenážním systémem, který efektivně odvádí přebytečnou vlhkost.

K dispozici jsou dvě krytá parkovací stání, na dvoře je prostor až pro šest automobilů, před domem další tři parkovací místa. Příjezdová cesta je vyhřívaná.

Obec Velké Popovice se nachází ve Středočeském kraji, přibližně 20 km od Prahy. Nabízí kompletní občanskou vybavenost, množství restaurací, sportovišť, parků i rybníků. Prodávající si vyhrazuje právo vybrat kupujícího na základě jím zvolených kritérií.
Cena:
24 300 000 CZK / za nemovitost
RX finance

Spočítejte si splátku hypotéky

Na kolik vás vyjde pořízení vlastního bydlení? Zadejte pár informací do naší hypoteční kalkulačky a hned si prohlédněte výsledek.

Kupní cena nemovitosti

24 300 000 Kč

Výše hypotéky

Doba splácení

Vypočítaná měsíční splátka

Úroková sazba 3.6%

260 990 Kč

Hypotéku zařídíme za vás

Ušetřete svůj čas i nervy. Naši makléři zařídí veškeré papírování a dovedou vás až k úspěšnému podpisu smlouvy v bance.

Nechte nám kontakt, náš makléř se v pracovní dny ozve do 24 hodin

* – toto pole je nutné vyplnit
Olesya Shmidt
REMAX Partner
Řeporyjské náměstí 16
Praha 5 - Řeporyje, 15500
Česká republika
Tel. na makléře: +420 775 581 617
Tel. do kanceláře: +420 800 434 434
E-mail: olesya.shmidt@re-max.cz

Potřebujete poradit/máte zájem o prohlídku?

* – toto pole je nutné vyplnit

Podrobné informace

Číslo zakázky:
ID 273-NP04773
Poloha objektu:
Samostatný
Počet podlaží v objektu:
3
Užitná plocha:
480 m²
Plocha parcely:
1 247 m²
Druh objektu:
Smíšená
Stav objektu:
Novostavba
Typ nemovitosti:
Domy a vily
Bezbariérový byt:
Ano
K nastěhování:
3. 3. 2026
Odpad:
Kanalizace
Plocha zahrady:
1 050 m²
Zastavěná plocha:
240 m²
Plyn:
Plynovod
Počet parkovacích míst:
2
Typ domu:
Patrový
Umístění objektu:
Klidná část obce
Energetická náročnost budovy:
B