Translate with 
MENU ZAVŘÍT

Prodej bytu 4+1 v družstevním vlastnictví 81 m², České Budějovice (ID 343-NP00780)

ulice N. Frýda, České Budějovice – část obce České Budějovice 2 mapa

4 990 000 Kč ( za nemovitost)
CÚsporná

1x
4x
95 m2
3/9
Exkluzivně

Nabízíme ke koupi družstevní byt v ulici N. Frýda v Českých Budějovicích

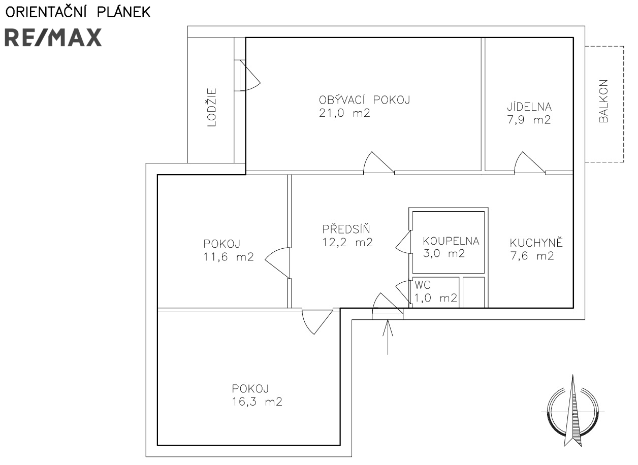
Exkluzivně nabízíme ke koupi byt 4 +1 (dle dokumentů k bytu evidován jako 3+1, jídelna je sečtena s kuchyní) se samostatnou jídelnou se vstupem na balkon v družstevním vlastnictví v Českých Budějovicích. Slunný byt je umístěn v panelovém domě v ulici N. Frýda s orientací pokojů na V a Z. Byt v družstevním vlastnictví se splacenou anuitou, zatím bez možnosti převodu do osobního vlastnictví, při financování hypotečním úvěrem nutno do zástavy dát jinou vhodnou nemovitost, o celkové ploše 78,95 m2 se nachází v 3. nadzemním podlaží z 9. Byt je po rekonstrukci omítek, částečně podlah, vodovodních instalací a elektřiny. Bytové jádro je nové z ytongu, koupelna je zvětšena, takže se do ní pohodlně vejde rohová vana, umyvadlo a pračka. Dům je po celkové rekonstrukci fasády, zateplený, okna plastová, nová dlažba na schodech a ve společných prostorách. Dispozice bytu: kuchyně s přístupem do jídelny - samostatná místnost se vstupem na balkon (dříve využívána jako dětský pokoj), obývací pokoj se vstupem na lodžii, dětský pokoj a ložnice, samostatná toaleta. Na patře komora s kójí, v přízemí domu další sklep, pouze 16 bytů v domě, 2 byty na patře, pouze 16 členů SBD. Na podlaze plovoucí podlaha, dlažba, koberce nebo PVC. Jedná se o slunný byt (orientace V a Z) vzhledem k blízkosti školy a dispozici vhodný pro rodinu s dětmi. K bytu náleží 2 sklepy - jeden na patře a jeden v přízemí domu.
pozn. některé fotky jsou upraveny Prodávající si vyhrazuje právo vybrat kupujícího na základě jím zvolených kritérií.
Cena:
4 990 000 CZK / za nemovitost
RX finance

Spočítejte si splátku hypotéky

Na kolik vás vyjde pořízení vlastního bydlení? Zadejte pár informací do naší hypoteční kalkulačky a hned si prohlédněte výsledek.

Kupní cena nemovitosti

4 990 000 Kč

Výše hypotéky

Doba splácení

Vypočítaná měsíční splátka

Úroková sazba 3.6%

260 990 Kč

Hypotéku zařídíme za vás

Ušetřete svůj čas i nervy. Naši makléři zařídí veškeré papírování a dovedou vás až k úspěšnému podpisu smlouvy v bance.

Nechte nám kontakt, náš makléř se v pracovní dny ozve do 24 hodin

* – toto pole je nutné vyplnit
Ing. Silvie Čížková
REMAX G8 Reality 8
Pekárenská 1128/46
České Budějovice, 37004
Česká republika
Tel. na makléře: +420 608 624 488
Tel. do kanceláře: +420 733 785 785
E-mail: silvie.cizkova@re-max.cz

Potřebujete poradit/máte zájem o prohlídku?

* – toto pole je nutné vyplnit

Podrobné informace

Číslo zakázky:
ID 343-NP00780
Dispozice:
4+1
Číslo podlaží:
3
Počet podlaží v objektu:
9
Užitná plocha:
81 m²
Druh objektu:
Panelová
Stav objektu:
Velmi dobrý
Vlastnictví:
Družstevní
Typ nemovitosti:
Byty
K nastěhování:
1. 3. 2026
Elektřina:
230 V
Odpad:
Kanalizace
Podlahová plocha:
95 m²
Zastavěná plocha:
231 m²
Plyn:
Plynovod
Umístění objektu:
Sídliště
Voda:
Dálkový rozvod
Vybaveno:
Ano
Výtah:
Ano
Energetická náročnost budovy:
C