Translate with 
MENU ZAVŘÍT

Prodej bytu 3+kk v osobním vlastnictví 135 m², Praha 10 - Malešice (ID 202-NP03089)

ulice Univerzitní, Praha 10 – Malešice mapa

13 800 000 Kč ( za nemovitost)
GMimořádně
nehospodárná

kk
3x
135 m2
3/4
Exkluzivně

Prostorný byt 3+kk se dvěma balkony a dvojgaráží – Malešice

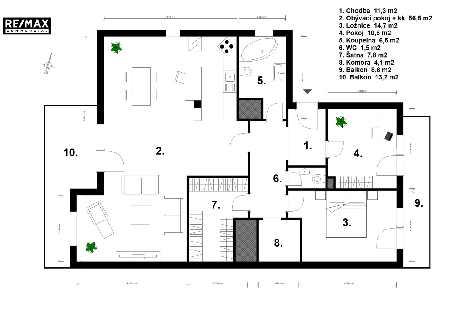
Velmi prostorný byt o dispozici 3+kk je umístěný ve 3. nadzemním podlaží bytového domu, situovaný v klidné rezidenční části Malešice, v ulici Univerzitní. Byt disponuje celkovou plochou 113,2 m², dvěma balkony (dohromady 21,8 m²) a dvěma garážovými stáními v přízemí domu.

Hlavní přednosti:

• Velkorysý prostor – 135 m² plochy nabízí nadstandardní komfort pro celou vaši rodinu. Prostorný obývací pokoj, velká šatna a 2 balkony vyhoví i vysokým standardům bydlení.
• Variabilita dispozice – byt měl původní dispozici 4+kk a jednoduchou úpravou tak lze navýšit počet místností.
• Komfort a soukromí – dálkově ovládané předokenní žaluzie, vstup do bytu přes venkovní schodiště a pouze minimum sousedního ruchu.
• Parkování bez starostí – součástí prodeje jsou dvě garážová stání v garáži v přízemí domu.
• Klidné umístění – dům stojí v rezidenční čtvrti ve slepé ulici. V okolí je proto klid prostý od hluku dopravy.

Dispozice:

Vstup do bytu je přes prostornou chodbu, ze které je přístup do všech místností. Dominantou bytu je obývací pokoj s kuchyňským koutem (56,5 m²) a vstupem na balkon orientovaný na jihozápad. Dále se zde nacházejí dvě ložnice se vstupem na druhý balkon (severovýchod), koupelna, komora a samostatná, nadstandardně velká šatna. Byt je možné jednoduchou úpravou přestavět na dispozici 4+kk. Součástí bytu jsou garáže v přízemí.

Technické informace:

Bytový dům je vytápěn plynovým kotlem. Okna jsou dřevěná. V jednotlivých místnostech jsou zdrojem tepla radiátory. Byt je vybaven bezpečnostním systémem s kamerou. V Ložnicích jsou pro zvýšení komfortu instalovány předokenní žaluzie.

Lokalita:

Lokalita patří k nejzelenějším částem Prahy. Dům je umístěn mezi Malešickým lesem a Malešickým parkem, které jsou skvělé pro sport, relaxaci i procházky. V docházkové vzdálenosti se nachází mateřská a základní škola, obchody i další občanská vybavenost. Výborná dopravní dostupnost je zajištěna autobusem na stanici metra Želivského, kam se dostanete během několika minut.

Důležité informace:

Předmětem prodeje je převod 100% akcií akciové společnosti, která je výlučným vlastníkem této bytové jednotky a garážových stání. Jediným majetkem akciové společnosti je tento byt s garážovým stáním. Pro více informací kontaktujte makléře.

Závěr:

Další informace Vám makléř rád poskytne telefonicky, formou podrobné prezentace nebo při osobní prohlídce. Prodávající si vyhrazuje právo vybrat kupujícího na základě jím zvolených kritérií.
Cena:
13 800 000 CZK / za nemovitost
Poznámka k ceně:
Exkluzivní nabídka včetně právního servisu a služeb
Upozornění:
Prodávající si vyhrazuje právo vybrat kupujícího na základě jím zvolených kritérií.
RX finance

Spočítejte si splátku hypotéky

Na kolik vás vyjde pořízení vlastního bydlení? Zadejte pár informací do naší hypoteční kalkulačky a hned si prohlédněte výsledek.

Kupní cena nemovitosti

13 800 000 Kč

Výše hypotéky

Doba splácení

Vypočítaná měsíční splátka

Úroková sazba 3.6%

260 990 Kč

Hypotéku zařídíme za vás

Ušetřete svůj čas i nervy. Naši makléři zařídí veškeré papírování a dovedou vás až k úspěšnému podpisu smlouvy v bance.

Nechte nám kontakt, náš makléř se v pracovní dny ozve do 24 hodin

* – toto pole je nutné vyplnit
Jaroslav Dvořák
RE/MAX Commercial Group
Antala Staška 511/40
Praha 4 - Krč, 14000
Česká republika
Tel. na makléře: +420 733 618 711
Tel. do kanceláře: +420 733 152 553
E-mail: jaroslav.dvorak@re-max.cz

Potřebujete poradit/máte zájem o prohlídku?

* – toto pole je nutné vyplnit

Podrobné informace

Číslo zakázky:
ID 202-NP03089
Dispozice:
3+kk
Číslo podlaží:
3
Počet podlaží v objektu:
4
Podlahová plocha:
135 m²
Druh objektu:
Smíšená
Stav objektu:
Velmi dobrý
Vlastnictví:
Osobní
Typ nemovitosti:
Byty
Charakter okolní zástavby:
Obytná
K nastěhování:
15. 3. 2026
Doprava:
Silnice, Autobus
Odpad:
Kanalizace
Užitná plocha:
135 m²
Zastavěná plocha:
650 m²
Plyn:
Plynovod
Počet parkovacích míst:
2
Umístění objektu:
Klidná část obce
Voda:
Dálkový rozvod
Vybaveno:
Ano
Energetická náročnost budovy:
G