Translate with 
MENU ZAVŘÍT

Prodej ubytovacího zařízení 426 m², Chodov (ID 294-NP01761)

ulice Nejdecká, Chodov mapa

8 500 000 Kč ( za nemovitost)
CÚsporná

426 m2
1327 m2
142 m2
3
Exkluzivně

Developerský projekt s investičním potenciálem – pozemek 1 327 m² s domem k rekonstrukci / přestavbě

Hledáte zajímavou developerskou příležitost s možností další výstavby? Nabízíme projekt s výrazným potenciálem v ploše určené územním plánem pro bydlení (B).
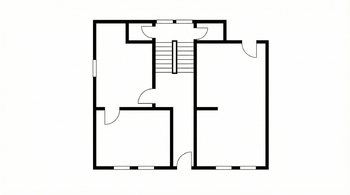
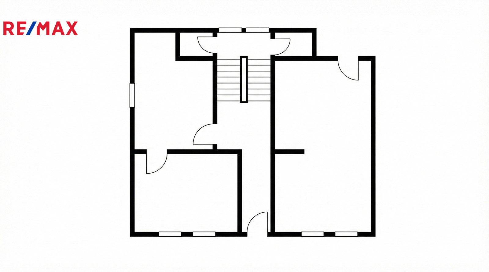
Na pozemku o celkové výměře 1 327 m² se nachází stávající dům o užitné ploše cca 426 m², určený k rekonstrukci či kompletní přestavbě. Dispozice a velikost objektu umožňují rozdělení na více bytových jednotek, vybudování vícegeneračního bydlení nebo kombinaci rezidenční a komerční funkce.

Klíčové investiční parametry:
-Celková plocha pozemku: 1 327 m²
-Zahrada: 847 m² (rovinatá, dobře využitelná)
-Užitná plocha domu: cca 426 m²
-Napojení na veškeré inženýrské sítě (elektřina, plyn, veřejný vodovod)
-Územní plán: plocha B – bydlení
-Možnost další výstavby nebo rozšíření stávající zástavby

Možné scénáře využití:
-Rekonstrukce na bytový dům s několika jednotkami
-Přestavba na řadové / dvojdomy
-Výstavba dalšího samostatného rodinného domu v zadní části pozemku
-Projekt vícegeneračního bydlení
-Kombinace bydlení a podnikání

Rovinatý charakter pozemku a jeho velikost umožňují efektivní zastavění i řešení parkovacích kapacit. Lokalita a územní určení dávají projektu flexibilitu a dlouhodobou hodnotu.
Tato nabídka představuje ideální příležitost pro developera či investora, který hledá projekt s možností optimalizace návratnosti prostřednictvím rekonstrukce, rozdělení na jednotky nebo nové výstavby.

Pro více informací nebo prohlídku nás neváhejte kontaktovat.
Cena:
8 500 000 CZK / za nemovitost
Poznámka k ceně:
Upozornění:
Prodávající si vyhrazuje právo vybrat kupujícího na základě jím zvolených kritérií.
RX finance

Spočítejte si splátku hypotéky

Na kolik vás vyjde pořízení vlastního bydlení? Zadejte pár informací do naší hypoteční kalkulačky a hned si prohlédněte výsledek.

Kupní cena nemovitosti

8 500 000 Kč

Výše hypotéky

Doba splácení

Vypočítaná měsíční splátka

Úroková sazba 3.6%

260 990 Kč

Hypotéku zařídíme za vás

Ušetřete svůj čas i nervy. Naši makléři zařídí veškeré papírování a dovedou vás až k úspěšnému podpisu smlouvy v bance.

Nechte nám kontakt, náš makléř se v pracovní dny ozve do 24 hodin

* – toto pole je nutné vyplnit
Alexandr Mizjuk
RE/MAX Glorion
Krymská 1056/5
Karlovy Vary, 36001
Česká republika
Tel. na makléře: +420 776 395 579
Tel. do kanceláře: +420 776 395 579
E-mail: alexandr.mizjuk@re-max.cz

Potřebujete poradit/máte zájem o prohlídku?

* – toto pole je nutné vyplnit

Podrobné informace

Číslo zakázky:
ID 294-NP01761
Počet podlaží v objektu:
3
Užitná plocha:
426 m²
Plocha parcely:
1 327 m²
Druh objektu:
Cihlová
Stav objektu:
Před rekonstrukcí
Typ nemovitosti:
Hotely, penziony a restaurace
Doprava:
Silnice, MHD, Autobus
Elektřina:
230 V
Odpad:
Kanalizace
Celková plocha:
426 m²
Plocha zahrady:
847 m²
Zastavěná plocha:
142 m²
Plyn:
Plynovod
Počet podlaží pod zemí:
1
Typ domu:
Patrový
Voda:
Dálkový rozvod
Energetická náročnost budovy:
C