Translate with 
MENU ZAVŘÍT

Prodej domu 300 m², Kravaře (ID 348-NP00041)

ulice Náměstí, Kravaře mapa

8 700 000 Kč ( za nemovitost)
GMimořádně
nehospodárná

5+
300 m2
409 m2
2
Exkluzivně

Prodej rodinného domu, Kravaře

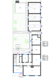
Nabízíme k prodeji prostorný rodinný dům s užitnou plochou cca 300 m², situovaný v klidné části centra Kravař. Dům má dvě nadzemní podlaží a částečně obyvatelné podkroví, které lze upravit na další obytné prostory.
Dispozičně je nemovitost rozdělena na dvě samostatné bytové jednotky (jedna 4+1, druhá 2+1), ideální pro vícegenerační bydlení, kombinaci bydlení a podnikání nebo jako investice k pronájmu.

Součástí domu je:
- 3 samostatné garáže
- Dílna
- Zahradní kuchyň
- Zahrada o výměře 409 m² s pergolou
- Podzemní sklad (původně na ovoce) – možnost úpravy na vinný sklípek

Technické informace:
- Vytápění: plynový kotel
- Napojení na elektřinu, plyn, veřejný vodovod i kanalizaci
- Dům je částečně rekonstruován – ideální k dokončení dle vlastních představ

Lokalita:
Kravaře jsou vyhledávanou lokalitou nejen pro své klidné a bezpečné prostředí, ale i díky výborné občanské vybavenosti a strategické poloze v rámci Moravskoslezského kraje.
Co Kravaře nabízí:
✅ Plná občanská vybavenost – základní i mateřská škola, lékař, lékárna, pošta, obchody, restaurace, sportoviště, knihovna, kulturní centrum
✅ Špičkové sportovní zázemí – oblíbený Buly Aréna Kravaře (zimní stadion, fitness, wellness, hotel), tenisové kurty, venkovní hřiště a cyklostezky
✅ Zámecký park a zámek Kravaře – krásné prostředí pro procházky, volnočasové aktivity a kulturní akce
✅ 18jamkové golfové hřiště – Golf Kravaře patří mezi nejhezčí v regionu
✅ Výborná dopravní dostupnost – do Opavy 10 min, do Ostravy cca 15 min, napojení na dálnici D1 do 15 minut
✅ MHD a vlakové spojení – dobrá dostupnost veřejnou dopravou
✅ Aktivní obecní život – kulturní a společenské akce pro děti i dospělé, farmářské trhy, sportovní turnaje, spolky

Tato lokalita spojuje klidné prostředí vhodné pro rodinný život s kompletní vybaveností a dobrým dosahem větších měst. Kravaře jsou ideální volbou pro ty, kdo chtějí žít mimo ruch města, ale nechtějí se vzdát pohodlí městských služeb.

Proč tato nemovitost?
Skvělá příležitost pro vícegenerační bydlení, podnikání nebo investici. Nemovitost s velkým potenciálem a výbornou polohou. Možnost okamžitého nastěhování.
V případě zájmu o prohlídku nás neváhejte kontaktovat. Rádi vám sdělíme další informace
Cena:
8 700 000 CZK / za nemovitost
Poznámka k ceně:
Upozornění:
Prodávající si vyhrazuje právo vybrat kupujícího na základě jím zvolených kritérií.
RX finance

Spočítejte si splátku hypotéky

Na kolik vás vyjde pořízení vlastního bydlení? Zadejte pár informací do naší hypoteční kalkulačky a hned si prohlédněte výsledek.

Kupní cena nemovitosti

8 700 000 Kč

Výše hypotéky

Doba splácení

Vypočítaná měsíční splátka

Úroková sazba 3.6%

260 990 Kč

Hypotéku zařídíme za vás

Ušetřete svůj čas i nervy. Naši makléři zařídí veškeré papírování a dovedou vás až k úspěšnému podpisu smlouvy v bance.

Nechte nám kontakt, náš makléř se v pracovní dny ozve do 24 hodin

* – toto pole je nutné vyplnit
Mgr. Bc. Nela Vičanová
RE/MAX Capital
náměstí Dr. E. Beneše 284/3
Moravská Ostrava a Přívoz, 70200
Česká republika
Tel. na makléře: +420 739 454 148
Tel. do kanceláře: +420 605 004 040
E-mail: nela.vicanova@re-max.cz

Potřebujete poradit/máte zájem o prohlídku?

* – toto pole je nutné vyplnit

Podrobné informace

Číslo zakázky:
ID 348-NP00041
Poloha objektu:
Řadový
Počet podlaží v objektu:
2
Užitná plocha:
300 m²
Plocha parcely:
409 m²
Druh objektu:
Cihlová
Stav objektu:
Velmi dobrý
Typ nemovitosti:
Domy a vily
Charakter okolní zástavby:
Obytná
K nastěhování:
4. 3. 2026
Elektřina:
230 V, 400 V
Garáž:
Ano
Odpad:
Kanalizace
Plocha zahrady:
409 m²
Zastavěná plocha:
118 m²
Plyn:
Plynovod
Počet parkovacích míst:
2
Počet podlaží pod zemí:
1
Typ domu:
Patrový
Voda:
Dálkový rozvod
Vybaveno:
Ano
Energetická náročnost budovy:
G