Translate with 
MENU ZAVŘÍT

Prodej domu 298 m², Břasy (ID 003-NP04869)

Břasy, okres Rokycany mapa

7 990 000 Kč ( za nemovitost)
GMimořádně
nehospodárná

5+
298 m2
800 m2
1
Exkluzivně

Prodej rodinného domu, Břasy, okres Rokycany – po rekonstrukci, dílna, pergola

Hledáte rodinný dům vhodný k okamžitému nastěhování?
Nabízíme k prodeji rodinný dům o dispozici 7+kk s pozemkem 800m2 v obci Břasy, okres Rokycany. Nemovitost prošla v průběhu posledních let rekonstrukcí a představuje ideální volbu pro větší rodinu nebo pro ty, kteří hledají dostatek prostoru a pohodlí.
Dům nabízí prakticky řešenou dispozici. V přízemí se nachází moderní kuchyň s jídelním koutem a dostatkem úložného prostoru, obývací pokoj, ložnice, pokoj pro hosty, pracovna a prostorná koupelna se sprchovým koutem, vanou a WC. Nechybí ani špíž a skladovací místnost s přímým vstupem do dílny.
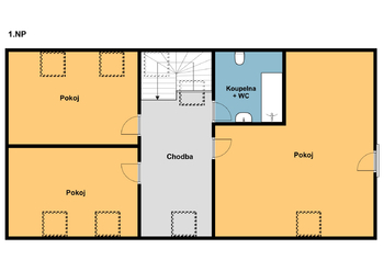
V patře jsou tři neprůchozí světlé a prostorné pokoje, druhá koupelna vybavená vanou a WC. Dům je částečně podsklepen.
Součástí nemovitosti je zděná garáž a dřevěná pergola, která nabízí příjemné zázemí pro odpočinek i posezení s rodinou či přáteli. Dům má špaletová okna, podlahy jsou betonové s kombinací keramiky, koberců a lina. Vytápění zajišťuje plynový kotel značky Vaillant a ohřev vody elektrický bojler. Nemovitost je napojena na veřejný vodovod i kanalizaci.
Pozemek bude nově oplocen – oplocení je aktuálně ve fázi realizace a bude dokončeno včetně vjezdové brány a vstupní branky. Vše velmi ráda ukážu na místě.
Obec Břasy nabízí klidné bydlení s dobrou dostupností do Rokycan i Plzně. Najdete zde kompletní občanskou vybavenost včetně mateřské a základní školy, obchodů, kavárny i zdravotního zařízení. Velkým benefitem je moderní sportovní areál s dětskými hřišti, in-line dráhou, pumptrackem a venkovní posilovnou.
Díky napojení na dálnici D5 jste v Plzni přibližně za 20 minut, na nájezd směrem na Prahu do 10 minut.
Zaujala vás tato nabídka? Ráda vás provedu osobně. Prodávající si vyhrazuje právo vybrat kupujícího na základě jím zvolených kritérií.
Cena:
7 990 000 CZK / za nemovitost
Poznámka k ceně:
Upozornění:
Prodávající si vyhrazuje právo vybrat kupujícího na základě jím zvolených kritérií.
RX finance

Spočítejte si splátku hypotéky

Na kolik vás vyjde pořízení vlastního bydlení? Zadejte pár informací do naší hypoteční kalkulačky a hned si prohlédněte výsledek.

Kupní cena nemovitosti

7 990 000 Kč

Výše hypotéky

Doba splácení

Vypočítaná měsíční splátka

Úroková sazba 3.6%

260 990 Kč

Hypotéku zařídíme za vás

Ušetřete svůj čas i nervy. Naši makléři zařídí veškeré papírování a dovedou vás až k úspěšnému podpisu smlouvy v bance.

Nechte nám kontakt, náš makléř se v pracovní dny ozve do 24 hodin

* – toto pole je nutné vyplnit
Tereza Santnerová
RE/MAX G8 Reality 3
Francouzská třída 2022/15
Plzeň, 32600
Česká republika
Tel. na makléře: +420 734 240 842
Tel. do kanceláře: +420 377 422 427
E-mail: tereza.santnerova@re-max.cz

Potřebujete poradit/máte zájem o prohlídku?

* – toto pole je nutné vyplnit

Podrobné informace

Číslo zakázky:
ID 003-NP04869
Poloha objektu:
Řadový
Počet podlaží v objektu:
1
Užitná plocha:
298 m²
Plocha parcely:
800 m²
Druh objektu:
Smíšená
Stav objektu:
Po rekonstrukci
Typ nemovitosti:
Domy a vily
Charakter okolní zástavby:
Obytná
K nastěhování:
23. 3. 2026
Elektřina:
230 V, 400 V
Garáž:
Ano
Odpad:
Kanalizace
Zastavěná plocha:
221 m²
Plyn:
Plynovod
Typ domu:
Patrový
Umístění objektu:
Klidná část obce
Voda:
Dálkový rozvod
Vybaveno:
Ano
Energetická náročnost budovy:
G