Translate with 
MENU ZAVŘÍT

Prodej pozemku 2720 m², Rychvald (ID 331-NP00534)

Rychvald, okres Karviná mapa

4 275 000 Kč ( za nemovitost)

2720 m2
Exkluzivně

Rychvald, Prodej stavebních pozemků 2720 m²

V Rychvaldu, poblíž ulice Sokolovská, nabízíme k prodeji soubor tří pozemků o celkové výměře 2 720 m² které dohromady tvoří zajímavý celek s různými možnostmi budoucího využití. Lokalita nabízí dostatek prostoru a zeleně, přitom s dobrou dostupností služeb i okolních měst.

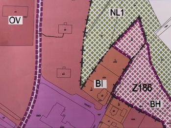
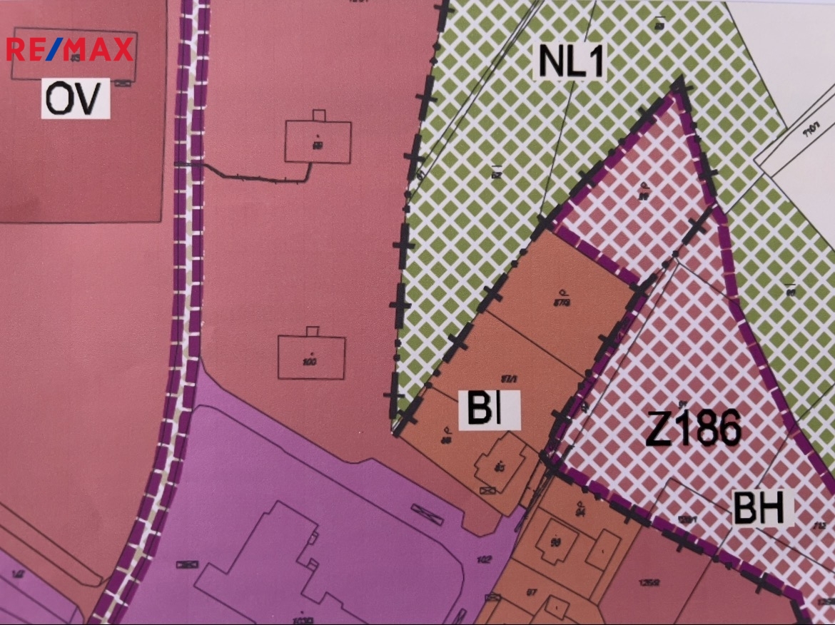
Celková plocha prodávaných pozemků umožňuje uvažovat jak o individuálním bydlení, tak i o investičním záměru. Hlavní část tvoří pozemek parc. č. 87/2 o výměře 1 048 m². Dle územního plánu je veden v ploše BI – bydlení individuální. Tato plocha umožňuje výstavbu rodinného domu do výšky 2 nadzemních podlaží, přičemž minimální výměra stavebního pozemku je 800 m² a maximální míra zastavění činí 40 % plochy.

Na něj navazuje pozemek parc. č. 88 o výměře 1 563 m², který je dle územního plánu veden jako BH – bydlení hromadné. V této ploše je možné realizovat stavby do výšky 6 nadzemních podlaží s maximální mírou zastavění 40 % plochy pozemku. Kombinace těchto dvou typů ploch může být zajímavá jak pro vlastní bydlení, tak například pro menší developerský záměr.

Součástí prodeje je také pozemek parc. č. 89/2 o výměře 109 m², vedený jako trvalý travní porost, který slouží jako přístupová cesta.

Přístup k pozemkům je zajištěn po obecní komunikaci a dále přes pozemek parc. č. 89/1, ke kterému je zřízeno věcné břemeno chůze a jízdy. Samotné pozemky jsou mírně pravostranně svažité.

Na pozemek je přivedena elektřina. Ostatní inženýrské sítě zde aktuálně nejsou zavedeny.

Rychvald nabízí klidné prostředí s dostatkem zeleně a zároveň dobrou občanskou vybavenost. V docházkové vzdálenosti se nachází škola, školka, obchody i zastávky MHD. Výhodou je také dobrá dopravní dostupnost do Ostravy, Orlové i Bohumína.

Pozemky se prodávají jako jeden celek.

Pokud vás tato nabídka zaujala, ozvěte se mi a domluvte si prohlídku :)
Přeji krásný den, T.Novotný RE/MAX Černá perla.

Cena je včetně provize, právních služeb a advokátní úschovy kupní ceny.
Prodávající si vyhrazuje právo vybrat kupujícího na základě jím zvolených kritérií.
Cena:
4 275 000 CZK / za nemovitost
Poznámka k ceně:
Upozornění:
Prodávající si vyhrazuje právo vybrat kupujícího na základě jím zvolených kritérií.
RX finance

Spočítejte si splátku hypotéky

Na kolik vás vyjde pořízení vlastního bydlení? Zadejte pár informací do naší hypoteční kalkulačky a hned si prohlédněte výsledek.

Kupní cena nemovitosti

4 275 000 Kč

Výše hypotéky

Doba splácení

Vypočítaná měsíční splátka

Úroková sazba 3.6%

260 990 Kč

Hypotéku zařídíme za vás

Ušetřete svůj čas i nervy. Naši makléři zařídí veškeré papírování a dovedou vás až k úspěšnému podpisu smlouvy v bance.

Nechte nám kontakt, náš makléř se v pracovní dny ozve do 24 hodin

* – toto pole je nutné vyplnit
Tomáš Novotný
RE/MAX Černá perla
Slavíkova 6068/18
Ostrava - Poruba, 70800
Česká republika
Tel. na makléře: +420 778 020 000
Tel. do kanceláře: +420 724 024 550
E-mail: tomas.novotny@re-max.cz

Potřebujete poradit/máte zájem o prohlídku?

* – toto pole je nutné vyplnit

Podrobné informace

Číslo zakázky:
ID 331-NP00534
Druh pozemku:
Pro bydlení
Celková plocha:
2 720 m²
Inženýrské sítě:
Vodovod, Elektřina
Typ nemovitosti:
Pozemky
K nastěhování:
6. 3. 2026
Doprava:
Silnice, MHD
Umístění objektu:
Klidná část obce