Translate with 
MENU ZAVŘÍT

Pronájem bytu 3+kk v osobním vlastnictví 74 m², Praha 4 - Michle (ID 285-NP00361)

ulice Pobočná, Praha 4 – Michle mapa

23 900 Kč ( za měsíc)
GMimořádně
nehospodárná

kk
3x
74 m2
1/3
Exkluzivně

Pronájem zrekonstruovaného bytu 3+kk (2+1) o rozloze 52 m2 s rozlehlou terasou v Praze 4 - Michli

V exkluzivním zastoupení nabízíme k pronájmu zrekonstruovaný byt s dispozicí 3+kk (2+1) o výměře 52 m2 s rozlehlou terasou v Praze 4 – Michli v klidné lokalitě a přitom s centrem na dosah.

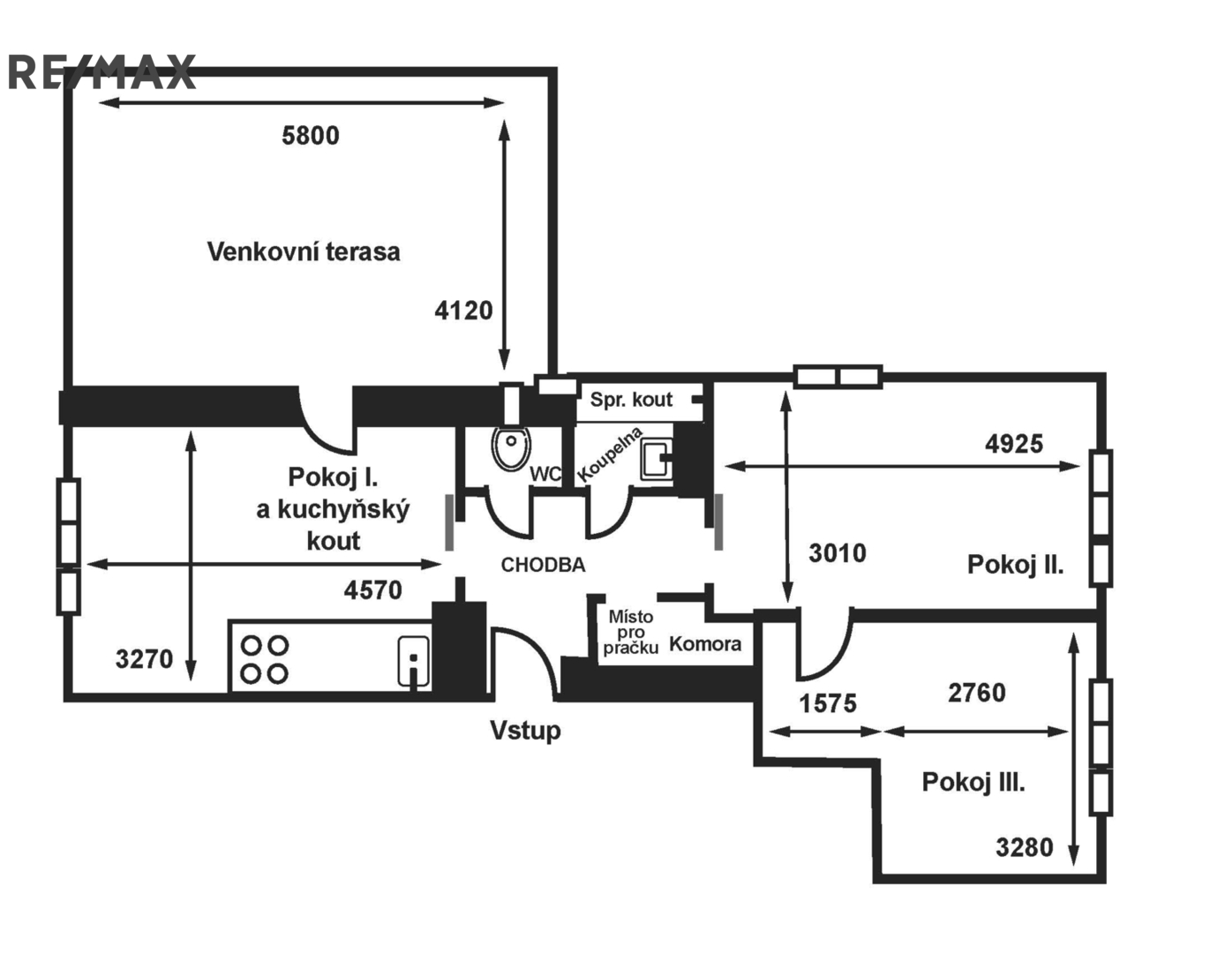
Bytová jednotka je umístěna v 1. nadzemním podlaží. Byt má předsíň (5,35 m2), ze které se vchází do kuchyně (kvalitní kuchyňská linka se zabudovanými spotřebiči) s obývacím prostorem (14,71 m2); z této místnosti je přístup na otevřenou terasu (21,93 m2). Z předsíně se také vchází do koupelny se sprchovým koutem (2,11 m2), na toaletu (1,25 m2), do technické místnosti s přípojkami pro pračku i sušičku (1,21 m2) a do pokoje s okny orientovanými do zahrady (15,12 m2); na tento prostor navazuje ložnice (11,91 m2). Byt se nabízí nevybavený, pouze v ložnici je velká šatní skříň a po domluvě lze ponechat jednolůžkovou postel s úložným prostorem. Vytápění bytu a ohřev vody zabezpečuje společný plynový kotel.

Byt je v menším činžovním domě rodinného charakteru v poklidné ulici, v okolí menší činžovní či rodinné domy. Dům je stranou od frekventovaných komunikací a přitom v docházkové vzdálenosti na autobusovou stanici MHD se snadnou a rychlou dostupností stanice metra Budějovická či Kačerov (trasa C).

Lokalita má vynikající dopravní obslužnost, v blízkosti je administrativní a obchodní centrum Brumlovka. V dosahu je rovněž veškerá občanská infrastruktura (školy, školky, poliklinika, sportovní zařízení…). Bezproblémové parkování pro rezidenty této městské části na modré zóně před domem (lze zprocesovat s MČ Praha 4 na základě nájemní smlouvy).

S ohledem na zdařilou rekonstrukci a vynikající lokalitu se jedná o velmi atraktivní nabídku.

Měsíční nájemné činí 23.900,- Kč. Měsíční poplatky spojené s užíváním bytu jsou řešeny paušálními platbami – vytápění plynovým kotlem a ohřev vody 2.000,- Kč/byt, voda 500,- Kč/osoba. Elektřina se převádí přímo na nájemce. Vratná kauce je ve výši jednoho nájmu + měsíční paušální poplatky. Provize RK je ve výši jednoho nájmu + DPH.

Byt je ihned volný k nastěhování.

Hledáte-li klidné bydlení v prestižní lokalitě se snadnou dostupností centra Prahy, pro domluvení prohlídky nemovitosti a více informací kontaktujte makléře, v RE/MAX Prestige jsme vždy připraveni vám vyjít vstříc!
Cena:
23 900 CZK / za měsíc
Poznámka k ceně:
Měsíční poplatky spojené s užíváním bytu jsou řešeny paušálními platbami – vytápění plynovým kotlem a ohřev vody 2.000,- Kč/byt, voda 500,- Kč/osoba. Elektřina se převádí přímo na nájemce. Vratná kauce je ve výši jednoho nájmu + měsíční paušální poplatky
Upozornění:
Pronajímající si vyhrazuje právo vybrat nájemce na základě jím zvolených kritérií.
Ing. Daniela Šilhová
RE/MAX Prestige
Vídeňská 52/140
Praha 4 - Kunratice, 14800
Česká republika
Tel. na makléře: +420 774 101 522
Tel. do kanceláře: +420 605 945 005
E-mail: daniela.silhova@re-max.cz

Potřebujete poradit/máte zájem o prohlídku?

* – toto pole je nutné vyplnit

Podrobné informace

Číslo zakázky:
ID 285-NP00361
Dispozice:
3+kk
Číslo podlaží:
1
Počet podlaží v objektu:
3
Podlahová plocha:
74 m²
Druh objektu:
Cihlová
Stav objektu:
Velmi dobrý
Vlastnictví:
Osobní
Typ nemovitosti:
Byty
Charakter okolní zástavby:
Obytná
K nastěhování:
7. 3. 2026
Doprava:
Dálnice, Silnice, MHD, Autobus
Elektřina:
230 V
Odpad:
Kanalizace
Užitná plocha:
52 m²
Zastavěná plocha:
168 m²
Plyn:
Plynovod
Počet podlaží pod zemí:
1
Umístění objektu:
Klidná část obce
Voda:
Dálkový rozvod
Energetická náročnost budovy:
G