Translate with 
MENU ZAVŘÍT

Prodej domu 143 m², Tábor (ID 029-NP03238)

ulice Čsl. armády, Tábor mapa

9 500 000 Kč ( za nemovitost)
GMimořádně
nehospodárná

5+
143 m2
424 m2
3
Exkluzivně

Prodej rodinného domu 5+KK, 143 m2, Tábor

Rodinný dům 5+kk v oblíbené lokalitě Tábor – ideální pro rodinné bydlení i podnikání

Nabízíme k prodeji prostorný cihlový rodinný dům se zvýšeným přízemím, podkrovím a kompletním podsklepením, který se nachází na skvělé adrese v ulici Čsl. armády v Táboře. Lokalita je dlouhodobě vyhledávaná díky své výborné dostupnosti, blízkosti centra i kompletní občanské vybavenosti.

Dům je dispozičně řešen jako 5+kk a poskytuje dostatek prostoru pro komfortní rodinné bydlení. Díky své velikosti a dispozici zároveň nabízí možnost komfortního bydlení nebo bydlení s podnikáním.

Celková podlahová plocha domu činí 257 m², z toho užitná plocha 143 m².

Dispozice domu:
Suterén: kotelna, 3 skladové místnosti, komora a koupelna
Zvýšený suterén: chodba a samostatné WC
Přízemí: 3 pokoje (17,4 m2, 19,9 m2, 18,9 m2), kuchyňský kout, chodba, komora, vstupní část a schodiště,
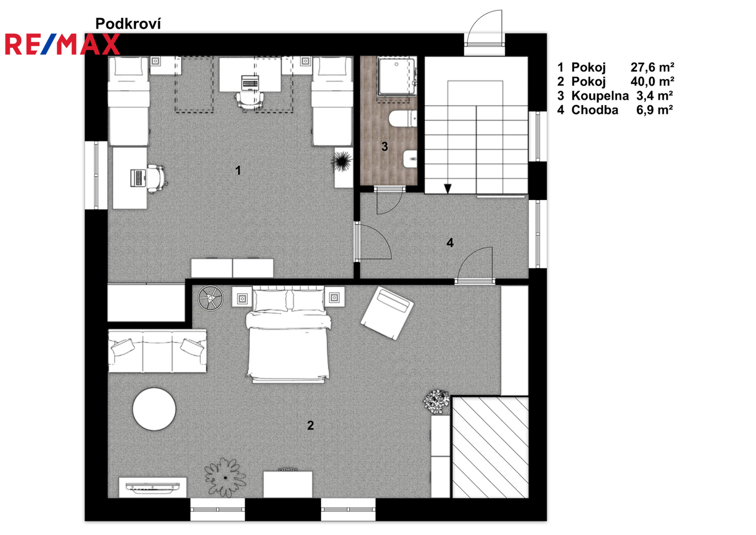
Podkroví: 2 pokoje (27,6 m2, 40 m2), chodba a WC

Součástí nemovitosti je také samostatný skladový prostor o výměře 28,25 m², přístupný ze zadní části pozemku, který nabízí široké možnosti využití – například jako dílna, sklad nebo zázemí pro podnikání.

Dům je napojen na obecní vodovod a kanalizaci. Vytápění i ohřev vody zajišťuje plynový kotel s rozvodem do radiátorů. Nemovitost je dále vybavena klimatizací a centrálním vysavačem. Kabelové připojení zajišťuje společnost CETIN.

K domu náleží oplocený pozemek o výměře 424 m², přičemž zastavěná plocha domu činí 151 m².

Na pozemku se nachází zpevněná parkovací plocha pro 2–3 automobily přímo u vjezdu. Zadní část pozemku nabízí prostor, který lze změnou využití upravit na příjemnou zahradu, jak naznačuje vizualizace ve fotodokumentaci. Vjezd na pozemek je řešen bránou na elektrický pohon přímo z hlavní komunikace.

Nemovitost je vedena v katastru jako rodinný dům a je takto také zkolaudována. V současné době je využívána jako sídlo firmy.

Hlavní výhody nabídky: prostorný rodinný dům, skvělá lokalita v blízkosti centra města, zastávka MHD u domu, rychlé napojení na dálnici D3, veškerá občanská vybavenost, možnost kombinace bydlení a podnikání.

Pro více informací nebo sjednání prohlídky kontaktujte prosím makléřku nabídky. Prodávající si vyhrazuje právo vybrat kupujícího na základě jím zvolených kritérií.
Cena:
9 500 000 CZK / za nemovitost
Poznámka k ceně:
Upozornění:
Prodávající si vyhrazuje právo vybrat kupujícího na základě jím zvolených kritérií.
RX finance

Spočítejte si splátku hypotéky

Na kolik vás vyjde pořízení vlastního bydlení? Zadejte pár informací do naší hypoteční kalkulačky a hned si prohlédněte výsledek.

Kupní cena nemovitosti

9 500 000 Kč

Výše hypotéky

Doba splácení

Vypočítaná měsíční splátka

Úroková sazba 3.6%

260 990 Kč

Hypotéku zařídíme za vás

Ušetřete svůj čas i nervy. Naši makléři zařídí veškeré papírování a dovedou vás až k úspěšnému podpisu smlouvy v bance.

Nechte nám kontakt, náš makléř se v pracovní dny ozve do 24 hodin

* – toto pole je nutné vyplnit
Monika Kristová
RE/MAX One
Pražská 223
Tábor, 39001
Česká republika
Tel. na makléře: +420 739 500 502
Tel. do kanceláře: +420 739 500 510
E-mail: monika.kristova@re-max.cz

Potřebujete poradit/máte zájem o prohlídku?

* – toto pole je nutné vyplnit

Podrobné informace

Číslo zakázky:
ID 029-NP03238
Poloha objektu:
Řadový
Počet podlaží v objektu:
3
Užitná plocha:
143 m²
Plocha parcely:
424 m²
Druh objektu:
Cihlová
Stav objektu:
Dobrý
Typ nemovitosti:
Domy a vily
Charakter okolní zástavby:
Obytná
Doprava:
Vlak, Dálnice, Silnice, MHD, Autobus
Elektřina:
230 V
Odpad:
Kanalizace
Plocha zahrady:
273 m²
Zastavěná plocha:
151 m²
Počet parkovacích míst:
3
Počet podlaží pod zemí:
1
Typ domu:
Patrový
Umístění objektu:
Sídliště
Voda:
Dálkový rozvod
Energetická náročnost budovy:
G