Translate with 
MENU ZAVŘÍT

Prodej domu 93 m², Kdyně (ID 003-NP04859)

ulice Škarmanská, Kdyně mapa

3 950 000 Kč ( za nemovitost)
GMimořádně
nehospodárná

4x
93 m2
959 m2
0
Exkluzivně

Prodej rodinného domu 93 m2 na pozemku 959 m2 ve Kdyni okr. Domažlice

Toužíte po klidu a pohodě, stranou od ruchu a shonu městského centra?
Máme pro Vás zajímavou nabídku, rodinného domu s dostatečně velkým pozemkem a hlavně s výhledem na celou Kdyni.
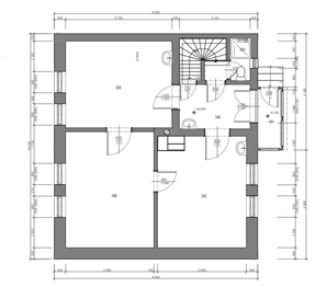
Předmětem prodeje je částečně podsklepený rodinný dům s užitnou plochou cca 93 m2, stojící na pozemku o celkové výměře 959 m2. Aktuální dispozice je 2+1 v přízemí s výměrou 73 m2 + obytná místnost v podkroví 15 m2 + sklep 5 m2.
Dům je v původním stavu a je tedy určen k celkové rekonstrukci. Nabízí tak novému majiteli realizovat vlastní představy, s možností využití také půdního prostoru k rozšíření obytné plochy domu.
Kolem rekonstrukce je spoustu administrativy a vyřizování, s tím si ale hlavu lámat nemusíte. Součástí prodeje je kompletní projektová dokumentace včetně Stavebního povolení.
Je samozřejmě jen na Vás, zda se vydáte cestou rekonstrukce či zvolíte variantu nové výstavby.
Co se inženýrských sítí týká, je nemovitost napojena na elektřinu, obecní vodovod a kanalizaci. Plyn je možné napojit z ulice a jako záložní zdroj vody je možné využít vlastní studnu.
Kdyně disponuje veškerou občanskou vybaveností, vše potřebné tedy vyřídíte pohodlně v docházkové vzdálenosti. Pokud byste přece jen potřebovali víc, v Klatovech jste za 20 a v Domažlicích dokonce za 15 minut jízdy autem. V případě, že preferujete hromadnou dopravu, můžete využít vlakové či autobusové spojení.
Nelze opomenout bezprostřední blízkost přírody, která Vám umožní vychutnat si nespočet volnočasových aktivit, odpočinku či relaxaci.
Kdyně nabízí zkrátka vše, co ke svému pohodlí a spokojenému životu potřebujete.
Pokud Vás tato nabídka zaujala, neváhejte mě kontaktovat pro více informací a domluvení termínu prohlídky. Prodávající si vyhrazuje právo vybrat kupujícího na základě jím zvolených kritérií.
Cena:
3 950 000 CZK / za nemovitost
Poznámka k ceně:
Upozornění:
Prodávající si vyhrazuje právo vybrat kupujícího na základě jím zvolených kritérií.
RX finance

Spočítejte si splátku hypotéky

Na kolik vás vyjde pořízení vlastního bydlení? Zadejte pár informací do naší hypoteční kalkulačky a hned si prohlédněte výsledek.

Kupní cena nemovitosti

3 950 000 Kč

Výše hypotéky

Doba splácení

Vypočítaná měsíční splátka

Úroková sazba 3.6%

260 990 Kč

Hypotéku zařídíme za vás

Ušetřete svůj čas i nervy. Naši makléři zařídí veškeré papírování a dovedou vás až k úspěšnému podpisu smlouvy v bance.

Nechte nám kontakt, náš makléř se v pracovní dny ozve do 24 hodin

* – toto pole je nutné vyplnit
Luděk Sýkora
RE/MAX G8 Reality 3
Francouzská třída 2022/15
Plzeň, 32600
Česká republika
Tel. na makléře: +420 792 770 442
Tel. do kanceláře: +420 377 422 427
E-mail: ludek.sykora@re-max.cz

Potřebujete poradit/máte zájem o prohlídku?

* – toto pole je nutné vyplnit

Podrobné informace

Číslo zakázky:
ID 003-NP04859
Poloha objektu:
Samostatný
Užitná plocha:
93 m²
Plocha parcely:
959 m²
Druh objektu:
Cihlová
Stav objektu:
Před rekonstrukcí
Typ nemovitosti:
Domy a vily
K nastěhování:
10. 3. 2026
Elektřina:
230 V, 400 V
Odpad:
Kanalizace
Typ domu:
Přízemní
Umístění objektu:
Klidná část obce
Voda:
Dálkový rozvod
Energetická náročnost budovy:
G