Translate with 
MENU ZAVŘÍT

Pronájem kancelářských prostor 85 m², Liberec (ID 265-NP00733)

ulice Jablonecká, Liberec – městská část Liberec (nečleněné město) mapa

24 900 Kč ( za měsíc)
GMimořádně
nehospodárná

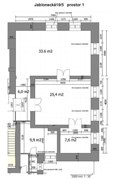
85 m2
Exkluzivně

kancelářské prostory v centru Liberce

Hledáte reprezentativní kanceláře na viditelném místě v centru města? Nabízíme k pronájmu světlý a vzdušný prostor 85 m² ve zvýšeném přízemí s výhledem na Šaldovo náměstí — ideální pro firmu, pobočku, coworking nebo poradenské centrum.
Proč si vybrat právě tento prostor?
• Perfektní poloha: centrum Liberce, naprosto snadná dostupnost MHD (Šaldovo náměstí) a výborné napojení do okolních ulic. Dvoukřídlý vstup z Jablonecké i Husovy ulice ze které je navíc vjezd na parkovací místo.
• Flexibilní uspořádání: chodba, kuchyňka, WC, dvě prostorné místnosti + menší oddělená kancelář (vstup do ní z prostřední místnosti). Nabízí se zda možnost například zřídit velkou otevřenou pracovní kancelář, reprezentativní zasedací nebo jednací místnost a soukromou kancelář.
• Kompletní elektro i datové rozvody připravené pro okamžité připojení IT vybavení. Domácí telefon a poštovní schránka.
• Bezpečnost a komfort: pohybová čidla v každé místnosti, odblokování před vstupem do chodby
• Částečně bezbariérový přístup.
• Nízké provozní náklady: vytápění a ohřev vody z plynového kotle. Plyn a elektřina se přepisují na nájemce; voda — záloha 400 Kč/měsíc k nájemnému
Parametry a finanční podmínky:
• Plocha: 85 m²
• Nájemné: 24 900 Kč / měsíc
• Záloha na vodu: 400 Kč / měsíc
• Vratná kauce: 2× měsíční nájem
• Dostupné ihned po dohodě
Bonusová lokalita:
• V okolí naleznete restaurace, kavárny a služby vhodné pro obchodní schůzky i po práci
• Výhodné spojení do centra i do příměstských oblastí — snadné pro zaměstnance i klienty
Domluvte si prohlídku a přijďte si představit, jak může fungovat váš nový kancelářský/podnikatelský prostor. Pro více informací a termín prohlídky volejte nebo pište (zanechte prosím preferovaný kontakt a ozveme se co nejdříve). Pronajímající si vyhrazuje právo vybrat nájemce na základě jím zvolených kritérií.
Cena:
24 900 CZK / za měsíc
Poznámka k ceně:
Upozornění:
Pronajímající si vyhrazuje právo vybrat nájemce na základě jím zvolených kritérií.
Ing. René Poupa
RE/MAX Eso
5. května 60/42
Liberec, 46001
Česká republika
Tel. na makléře: +420 778 431 544
Tel. do kanceláře: +420 722 422 422
E-mail: rene.poupa@re-max.cz

Potřebujete poradit/máte zájem o prohlídku?

* – toto pole je nutné vyplnit

Podrobné informace

Číslo zakázky:
ID 265-NP00733
Typ nemovitosti:
Komerční prostory
Druh prostor:
Kanceláře
Číslo podlaží:
1
Počet podlaží v objektu:
4
Plocha kanceláří:
85 m²
Druh objektu:
Smíšená
Stav objektu:
Velmi dobrý
K nastěhování:
13. 3. 2026
Odpad:
Kanalizace
Celková plocha:
85 m²
Zastavěná plocha:
301 m²
Plyn:
Plynovod
Počet kanceláří:
3
Počet parkovacích míst:
1
Typ domu:
Patrový
Voda:
Dálkový rozvod
Energetická náročnost budovy:
G