Translate with 
MENU ZAVŘÍT

Prodej bytu 2+1 v osobním vlastnictví 51 m², Ostrava (ID 344-NP00664)

ulice Františka Hajdy, Ostrava – městská část Ostrava-Jih mapa

3 290 000 Kč ( za nemovitost)
CÚsporná

1x
2x
51 m2
9/12
Exkluzivně

Zajímavá příležitost pro vlastní bydlení i investici – byt 2+1, Ostrava-Hrabůvka

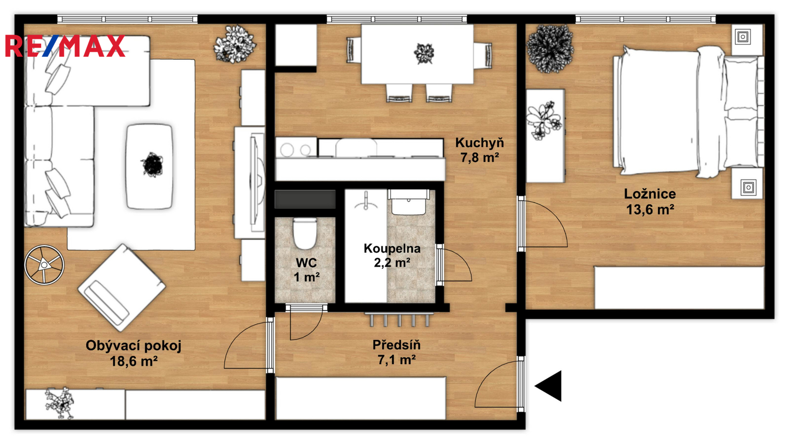
Nabízíme k prodeji byt o dispozici 2+1 v osobním vlastnictví o výměře 50,6 m2, situovaný v 8. patře dvanácti podlažního bytového domu na adrese Františka Hajdy 30, Ostrava-Hrabůvka.
Byt je v původním stavu, což představuje ideální možnost pro ty, kteří chtějí vytvořit moderní bydlení podle vlastního vkusu nebo zajímavou investiční příležitost k rekonstrukci a následnému pronájmu.
Díky umístění ve vyšším patře byt nabízí pěkný výhled a dostatek světla a klidnější bydlení nad okolní zástavbou. Okna bytu jsou orientována na východ, díky čemuž je byt příjemně prosvětlen ranním sluncem a zároveň se v letních měsících nepřehřívá odpoledním žárem.
Dispozice bytu a velikosti jednotlivých místností jsou patrné z půdorysů, které naleznete mezi fotkami inzerátu. Mezi fotkami jsou rovněž vizualizace některých místností.
Jednou z velkých předností tohoto bytu je pohodlný - bezbariérový přístup do domu – přímý vstup k výtahu bez překonávání schodů, který ocení rodiny s kočárkem a malými dětmi nebo senioři. K bytu patří sklepní kóje, která je umístěna netradičně v 7. patře bytového domu.
Měsíční poplatky spojené s bydlením:
Fond oprav + splátka úvěru za revitalizaci domu 1.762,- Kč,
služby spojené s provozem domu (výtah, úklid, správa domu, společná elektřina, apod.) 435,- Kč,
zálohy na topení 1.213,- Kč,
zálohy na vodné, stočné a teplou vodu dle počtu osob.

Výjimečná lokalita:
Tento byt je ideální volbou pro lidi, kteří hledají bydlení v příjemné lokalitě s dobrou dopravní dostupností a kompletní občanskou vybaveností. Za domem není žádná silnice, ale zeleň - louka, stromy a přes chodník základní škola s dopravním hřištěm, které je k dispozici pro širokou veřejnost.
V blízkosti domu se nachází MŠ, ZŠ (bez nutnosti přecházet silnici), gymnázium, soukromá střední škola, potraviny a jiné prodejny, poliklinika a před domem velké parkoviště. Zastávky MHD jsou cca 500 m od domu (tramvaje, autobusy). Kolem domu vede cyklostezka, po které dojedete k řece Ostravici a dále do centra Ostravy nebo směrem na Frýdek-Místek. Opačným směrem se dostanete do Bělského lesa. Lokalita je ideální pro vyjížďky na kole, milovníky přírody a aktivního životního stylu nebo procházky se psem.
Byt lze financovat hypotečním úvěrem, se kterým Vám rádi pomůžeme.
V případě zájmu o prohlídku tohoto bytu nebo dalších informací mě neváhejte kontaktovat, takové byty se na trhu dlouho neohřejí! Budu se na Vás těšit. Prodávající si vyhrazuje právo vybrat kupujícího na základě jím zvolených kritérií.
Cena:
3 290 000 CZK / za nemovitost
Poznámka k ceně:
Upozornění:
Prodávající si vyhrazuje právo vybrat kupujícího na základě jím zvolených kritérií.
RX finance

Spočítejte si splátku hypotéky

Na kolik vás vyjde pořízení vlastního bydlení? Zadejte pár informací do naší hypoteční kalkulačky a hned si prohlédněte výsledek.

Kupní cena nemovitosti

3 290 000 Kč

Výše hypotéky

Doba splácení

Vypočítaná měsíční splátka

Úroková sazba 3.6%

260 990 Kč

Hypotéku zařídíme za vás

Ušetřete svůj čas i nervy. Naši makléři zařídí veškeré papírování a dovedou vás až k úspěšnému podpisu smlouvy v bance.

Nechte nám kontakt, náš makléř se v pracovní dny ozve do 24 hodin

* – toto pole je nutné vyplnit
Olga Dědinová
RE/MAX Easy
28. října 1610/95
Ostrava, 70200
Česká republika
Tel. na makléře: +420 607 207 807
Tel. do kanceláře: +420 722 484 787
E-mail: olga.dedinova@re-max.cz

Potřebujete poradit/máte zájem o prohlídku?

* – toto pole je nutné vyplnit

Podrobné informace

Číslo zakázky:
ID 344-NP00664
Dispozice:
2+1
Číslo podlaží:
9
Počet podlaží v objektu:
12
Podlahová plocha:
51 m²
Druh objektu:
Panelová
Stav objektu:
Velmi dobrý
Vlastnictví:
Osobní
Typ nemovitosti:
Byty
Odpad:
Kanalizace
Užitná plocha:
50 m²
Zastavěná plocha:
651 m²
Plyn:
Plynovod
Voda:
Dálkový rozvod
Výtah:
Ano
Energetická náročnost budovy:
C
Měrná vypočtená roční spotřeba energie v kWh/m²/rok:
76