Translate with 
MENU ZAVŘÍT

Prodej bytu 3+1 v družstevním vlastnictví 79 m², Chomutov (ID 294-NP01786)

ulice Borová, Chomutov mapa

2 600 000 Kč ( za nemovitost)
DMéně
úsporná

1x
3x
79 m2
5/8
Exkluzivně

Světlý byt 3+1 s lodžií, 79 m² – ulice Borová, Chomutov

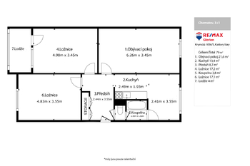
Nabízíme k prodeji prostorný a světlý byt o dispozici 3+1 s lodžií, o celkové výměře 79 m², nacházející se v klidné lokalitě města Chomutov.
Dispozice bytu je velmi praktická a nabízí dostatek prostoru pro rodinné bydlení i investiční záměr. Obývací pokoj působí vzdušně a poskytuje příjemné zázemí pro každodenní život. Kuchyň umožňuje realizaci moderní kuchyňské linky i jídelního koutu. Dvě samostatné ložnice poskytují dostatek soukromí a variability využití, ať už jako ložnice, dětské pokoje nebo pracovna. Součástí bytu je také předsíň, koupelna, samostatné WC a lodžie, která nabízí příjemné místo k odpočinku.
Velkou výhodou bytu je jeho původní stav, který umožňuje kompletní rekonstrukci dle vlastního vkusu a potřeb. Díky tomu si nový majitel může upravit dispozici i design interiéru přesně podle svých představ bez nutnosti kompromisů.
Byt se nachází v žádané části Chomutova s kompletní občanskou vybaveností v dosahu – školy, školky, obchody, zdravotnická zařízení i zastávky MHD. Okolí nabízí dostatek zeleně a možností pro volnočasové aktivity. Prodávající si vyhrazuje právo vybrat kupujícího na základě jím zvolených kritérií.
Cena:
2 600 000 CZK / za nemovitost
Poznámka k ceně:
Upozornění:
Prodávající si vyhrazuje právo vybrat kupujícího na základě jím zvolených kritérií.
RX finance

Spočítejte si splátku hypotéky

Na kolik vás vyjde pořízení vlastního bydlení? Zadejte pár informací do naší hypoteční kalkulačky a hned si prohlédněte výsledek.

Kupní cena nemovitosti

2 600 000 Kč

Výše hypotéky

Doba splácení

Vypočítaná měsíční splátka

Úroková sazba 3.6%

260 990 Kč

Hypotéku zařídíme za vás

Ušetřete svůj čas i nervy. Naši makléři zařídí veškeré papírování a dovedou vás až k úspěšnému podpisu smlouvy v bance.

Nechte nám kontakt, náš makléř se v pracovní dny ozve do 24 hodin

* – toto pole je nutné vyplnit
Alexandr Mizjuk
RE/MAX Glorion
Krymská 1056/5
Karlovy Vary, 36001
Česká republika
Tel. na makléře: +420 776 395 579
Tel. do kanceláře: +420 776 395 579
E-mail: alexandr.mizjuk@re-max.cz

Potřebujete poradit/máte zájem o prohlídku?

* – toto pole je nutné vyplnit

Podrobné informace

Číslo zakázky:
ID 294-NP01786
Dispozice:
3+1
Číslo podlaží:
5
Počet podlaží v objektu:
8
Podlahová plocha:
79 m²
Druh objektu:
Panelová
Stav objektu:
Dobrý
Vlastnictví:
Družstevní
Typ nemovitosti:
Byty
Doprava:
Silnice, Autobus
Elektřina:
230 V
Odpad:
Kanalizace
Užitná plocha:
77 m²
Plyn:
Plynovod
Umístění objektu:
Sídliště
Voda:
Dálkový rozvod
Výtah:
Ano
Energetická náročnost budovy:
D