Translate with 
MENU ZAVŘÍT

Prodej domu 242 m², Brandýs nad Labem-Stará Boleslav (ID 202-NP03093)

ulice Komenského nám., Brandýs nad Labem-Stará Boleslav – část obce Brandýs nad Labem mapa

12 880 000 Kč ( za nemovitost)
GMimořádně
nehospodárná

1x
242 m2
369 m2
3
Exkluzivně

Vila v centru Brandýsa, 242 m2

Reprezentativní vila o ploše 242,1 m² se nachází na jedné z nejprestižnějších adres v Brandýse nad Labem, na Komenského náměstí. Nemovitost má mimořádný investiční potenciál, je vhodná jak pro vícegenerační bydlení, tak pro sídlo firmy, lékařskou praxi, obchod či stylové ubytování.

Hlavní přednosti:

• Lokalita: Vila se nachází v centru Brandýsa nad Labem, na frekventovaném Komenského náměstí s výbornou dostupností všech služeb – od obchodů a škol po úřady.
• Možnosti bydlení a podnikání: Ve vile se aktuálně nachází 2 bytové jednotky. Bydlení lze dále rozšířit v půdních prostorech, případně lze byty modifikovat jako kanceláře, obchod, ordinaci apod.
• Soukromí a klid: Vila díky své vnitřní dispozici a zděným oplocením dvoru nabízí naprosté soukromí a klid, a to přes rušnou lokalitu centra města.

Vila:

Vstup do vily je umožněn přímo z Komenského náměstí hlavním vchodem skrz vlastní předzahrádku, kterým se dostanete do vstupní haly. Další možností je zadní vchod přes dvůr, který navazuje na centrální schodiště.

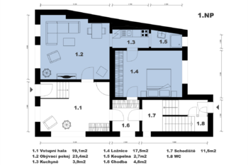
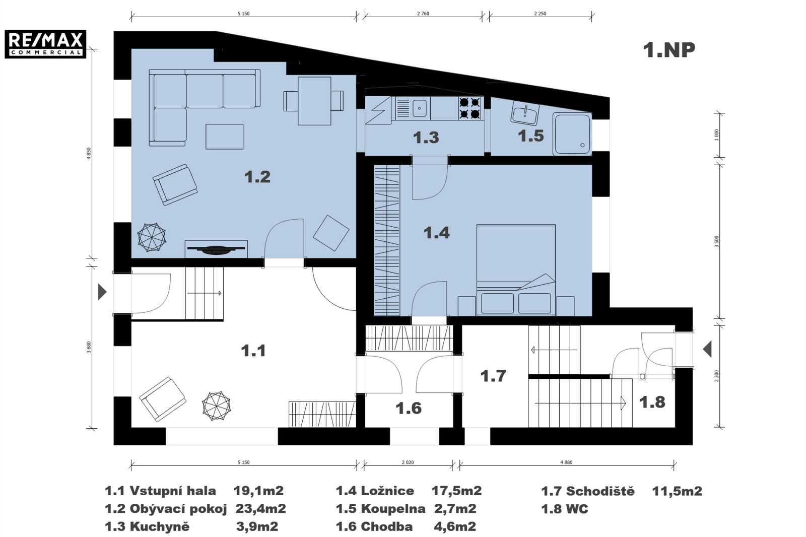
V přízemí je byt 2+kk o ploše 47,5 m², který je vhodný pro modifikaci na komerční využití. V 2.NP se nachází byt 2+1 o rozloze 73,2 m², který lze upravit na 3+kk. V podkroví se je samostatná ložnice o ploše 17,9 m², a dále půda o ploše 50,4 m², která nabízí možnost rozšíření o další byty, případně ateliér, kancelář.

Dům byl postaven v období první republiky a zachoval si původní architektonické prvky, například dřevěná špaletová okna, vnitřní obklady a podlahy. Přitom je technický stav velmi dobrý.

Dispozice a technické parametry:

• Dispozice: Bytová jednotka 2+kk v 1. NP, bytová jednotka 2+1 ve 2. NP, ložnice a půda v podkroví, částečně podsklepeno.
• Užitná plocha vily: Celkem 242,1 m² (všechny NP včetně chodeb a schodiště, bez sklepů) + částečné podsklepení + garáž (44 m²).
• Plocha pozemku: celkem 369 m², zahrnující dvůr s možností venkovního posezení, garáž a parkovací prostor pro několik aut.
• Technické zařízení: Plynový kotel a kotel na tuhá paliva v suterénu. V přízemí jsou k dispozici krbová kamna jako sekundární zdroj. Elektrické a vodovodní rozvody jsou původní.
• Konstrukce: Vila je zděná s dřevěným vaznicovým krovem a novými střešními taškami, stropy jsou dřevěné trámové. Budova je částečně podsklepená, okna jsou dřevěná špaletová.
• Inženýrské sítě: Nemovitost je napojena na veřejný vodovod, kanalizaci a plyn.

Umístění v centru:

Díky svému umístění v centru nabízí tato vila mimořádné příležitosti nejen pro bydlení, ale i podnikání. Svým potenciálním klientům tak budete na dosah, dále díky možnosti umístění reklamy na fasádu, případně oplocení, budete viditelní a parkoviště sousedící s vilou zajistí klientům komfortní příjezd.

Závěr:

Akviziční příležitost. Nemovitost rádi představíme formou osobní prezentace na prohlídce. Poté Vám bude ponechán prostor pro předložení nákupní nabídky s cenou. Prodávající si vyhrazuje právo vybrat kupujícího na základě jím zvolených kritérií.
Cena:
12 880 000 CZK / za nemovitost
Poznámka k ceně:
Exkluzivní nabídka včetně právního servisu a služeb.
Upozornění:
Prodávající si vyhrazuje právo vybrat kupujícího na základě jím zvolených kritérií.
RX finance

Spočítejte si splátku hypotéky

Na kolik vás vyjde pořízení vlastního bydlení? Zadejte pár informací do naší hypoteční kalkulačky a hned si prohlédněte výsledek.

Kupní cena nemovitosti

12 880 000 Kč

Výše hypotéky

Doba splácení

Vypočítaná měsíční splátka

Úroková sazba 3.6%

260 990 Kč

Hypotéku zařídíme za vás

Ušetřete svůj čas i nervy. Naši makléři zařídí veškeré papírování a dovedou vás až k úspěšnému podpisu smlouvy v bance.

Nechte nám kontakt, náš makléř se v pracovní dny ozve do 24 hodin

* – toto pole je nutné vyplnit
Jaroslav Dvořák
RE/MAX Commercial Group
Antala Staška 511/40
Praha 4 - Krč, 14000
Česká republika
Tel. na makléře: +420 733 618 711
Tel. do kanceláře: +420 733 152 553
E-mail: jaroslav.dvorak@re-max.cz

Potřebujete poradit/máte zájem o prohlídku?

* – toto pole je nutné vyplnit

Podrobné informace

Číslo zakázky:
ID 202-NP03093
Poloha objektu:
Řadový
Počet podlaží v objektu:
3
Užitná plocha:
242 m²
Plocha parcely:
369 m²
Druh objektu:
Smíšená
Stav objektu:
Před rekonstrukcí
Typ nemovitosti:
Domy a vily
Charakter okolní zástavby:
Obchodní a obytná
K nastěhování:
1. 11. 2025
Doprava:
Vlak, Dálnice, Silnice, MHD, Autobus
Garáž:
Ano
Odpad:
Kanalizace
Zastavěná plocha:
114 m²
Plyn:
Plynovod
Počet podlaží pod zemí:
1
Typ domu:
Přízemní
Umístění objektu:
Centrum obce
Voda:
Dálkový rozvod
Energetická náročnost budovy:
G