Translate with 
MENU ZAVŘÍT

Prodej bytu 3+1 v osobním vlastnictví 65 m², Hořovice (ID 124-NP01381)

ulice Kosmonautů, Hořovice mapa

4 490 000 Kč ( za nemovitost)
GMimořádně
nehospodárná

1x
3x
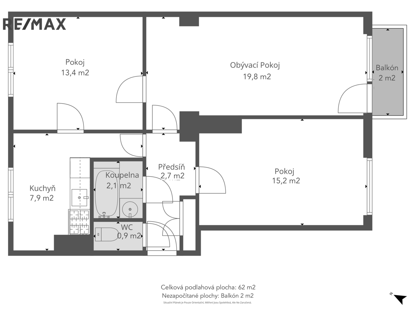
65 m2
3/4
Exkluzivně

Prodej prostorného bytu 3+1/balkon, ul. Kosmonautů , Hořovice

Nabízíme k prodeji prostorný byt o dispozici 3 + 1/balkon, nacházející se ve 3. nadzemním podlaží čtyřpatrového panelového domu ul. Kosmonautů, Hořovice, okres Beroun. Byt má celkovou plochu 65 m². K bytu náleží i 2 sklepy v suterénu domu s plochou cca 4 m², což poskytuje další úložné prostory. Byt je v původním stavu určený k rekonstrukci.
Byt je vyklizený, bez vybavení, což nabízí příležitost vytvořit si domov podle vlastních představ a potřeb.
Zateplený bytový dům je napojený na všechny IS – kanalizaci, vodovod, plyn - topení je zajištěno pomocí WAW topných těles. Ohřev vody je zajištěn plynovým kotlem.
Parkování v okolí domu nebo se máte možnost zakoupení koupení zděné garáže od majitele přímo v blízkosti domu. Náklady na energie a služby : 2 100 Kč ( platby do SVJ ), 2 800 Kč plyn a 2 400 Kč elektřina.
Klidná lokalita na okraji města. Hořovice nabízejí veškerou občanskou vybavenost. V blízkosti bytového domu se nachází autobusové nádraží. Nájezd na D5 cca 5km - dostupnost do Prahy nebo Plzně zhruba 30 min.
V případě zájmu o prohlídku nás neváhejte kontaktovat. Prodávající si vyhrazuje právo vybrat kupujícího na základě jím zvolených kritérií.
Cena:
4 490 000 CZK / za nemovitost
Poznámka k ceně:
Upozornění:
Prodávající si vyhrazuje právo vybrat kupujícího na základě jím zvolených kritérií.
RX finance

Spočítejte si splátku hypotéky

Na kolik vás vyjde pořízení vlastního bydlení? Zadejte pár informací do naší hypoteční kalkulačky a hned si prohlédněte výsledek.

Kupní cena nemovitosti

4 490 000 Kč

Výše hypotéky

Doba splácení

Vypočítaná měsíční splátka

Úroková sazba 3.6%

260 990 Kč

Hypotéku zařídíme za vás

Ušetřete svůj čas i nervy. Naši makléři zařídí veškeré papírování a dovedou vás až k úspěšnému podpisu smlouvy v bance.

Nechte nám kontakt, náš makléř se v pracovní dny ozve do 24 hodin

* – toto pole je nutné vyplnit
Mgr. Irena Vávrová
RE/MAX 2000
U Štěpánků 1707/6
Hořovice, 26801
Česká republika
Tel. na makléře: +420 739 500 588
Tel. do kanceláře: +420 739 500 588
E-mail: irena.vavrova@re-max.cz

Potřebujete poradit/máte zájem o prohlídku?

* – toto pole je nutné vyplnit

Podrobné informace

Číslo zakázky:
ID 124-NP01381
Dispozice:
3+1
Číslo podlaží:
3
Počet podlaží v objektu:
4
Podlahová plocha:
65 m²
Druh objektu:
Panelová
Stav objektu:
Před rekonstrukcí
Vlastnictví:
Osobní
Typ nemovitosti:
Byty
K nastěhování:
1. 4. 2026
Odpad:
Kanalizace
Užitná plocha:
63 m²
Zastavěná plocha:
398 m²
Plyn:
Plynovod
Počet podlaží pod zemí:
1
Umístění objektu:
Sídliště
Voda:
Dálkový rozvod
Energetická náročnost budovy:
G