Translate with 
MENU ZAVŘÍT

Pronájem kancelářských prostor 121 m², Praha 4 - Krč (ID 335-NP00156)

ulice Hornokrčská, Praha 4 – Krč mapa

39 000 Kč ( za měsíc)
GMimořádně
nehospodárná

121 m2
Exkluzivně

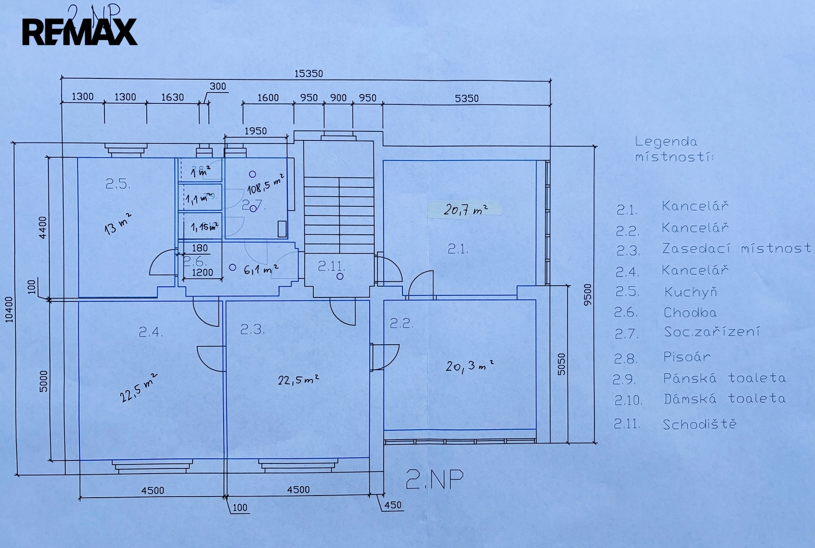
Kancelářské prostory 120,5 m², celé patro (2. NP), parkování ve dvoře – Hornokrčská, Praha 4 – Krč

Nabízíme k podnájmu kancelářské prostory o celkové podlahové ploše 120,5 m², které se nacházejí ve 2. nadzemním podlaží vily se současným administrativním využitím na adrese Hornokrčská 651, Praha 4 – Krč. Výhodou je, že se jedná o celé samostatné patro se zázemím, které poskytuje firmě dostatek soukromí a komfortní pracovní prostředí. Prostory jsou vhodné pro administrativní činnost nebo jako sídlo společnosti.

Prostory jsou aktuálně vybaveny kancelářským nábytkem, který může po dohodě zůstat k dispozici, případně bude vyklizen.

Dispozice a vybavení prostor:
- 4 samostatné kanceláře
- Chodba
- Kuchyňka
- Sociální zázemí: sprcha, 2× WC a pisoár

Podnájem je realizován se souhlasem vlastníka nemovitosti. Současný nájemce má budovu dlouhodobě pronajatou již více než 20 let a počítá s jejím užíváním i v dalších letech, což poskytuje podnájemci stabilní a předvídatelné zázemí.

Součástí nájmu je jedno parkovací místo ve dvoře objektu. Další parkování je možné v ulici v režimu modré zóny.

Lokalita:
Hornokrčská ulice nabízí výbornou dopravní dostupnost i občanskou vybavenost. Stanice metra linky C Budějovická je vzdálena přibližně 5 minut chůze, v okolí jsou restaurace, služby i další administrativní objekty.

Podmínky podnájmu:
- Nájemné: 39 000 Kč/měsíc
- Zálohy na vodné a stočné: 400 Kč/měsíc (vyúčtovatelné)
- Elektřina a plyn budou přepsány na podnájemce
- Jedno parkovací místo ve dvoře objektu v ceně nájmu

V případě zájmu o více informací nebo sjednání prohlídky mě neváhejte kontaktovat. Pronajímající si vyhrazuje právo vybrat nájemce na základě jím zvolených kritérií.
Cena:
39 000 CZK / za měsíc
Poznámka k ceně:
Upozornění:
Pronajímající si vyhrazuje právo vybrat nájemce na základě jím zvolených kritérií.
Ing. Jiří Kavka
RE/MAX Central
Záběhlická 3156/65
Praha 10, 10600
Česká republika
Tel. na makléře: +420 792 646 824
Tel. do kanceláře: +420 724 601 255
E-mail: jiri.kavka@re-max.cz

Potřebujete poradit/máte zájem o prohlídku?

* – toto pole je nutné vyplnit

Podrobné informace

Číslo zakázky:
ID 335-NP00156
Typ nemovitosti:
Komerční prostory
Druh prostor:
Kanceláře
Číslo podlaží:
2
Počet podlaží v objektu:
3
Plocha kanceláří:
121 m²
Druh objektu:
Cihlová
Stav objektu:
Velmi dobrý
K nastěhování:
1. 4. 2026
Celková plocha:
121 m²
Počet kanceláří:
4
Počet parkovacích míst:
1
Typ domu:
Patrový
Umístění objektu:
Klidná část obce
Vybavení kanceláří:
Ano
Vybaveno:
Ano
Energetická náročnost budovy:
G