Translate with 
MENU ZAVŘÍT

Prodej bytu 1+kk v osobním vlastnictví 43 m², Praha 5 - Smíchov (ID 273-NP04828)

ulice Jindřicha Plachty, Praha 5 – Smíchov mapa

Cena na vyžádání v kanceláři
CÚsporná

kk
1x
43 m2
4/7
Exkluzivně

Prodej bytu 1+kk/balkon, parkovací stání, Anděl, Praha 5

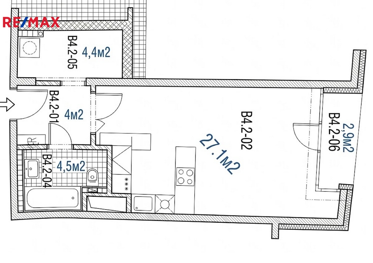
Exkluzivně nabízím k prodeji elegantní byt o dispozici 1+kk s balkonem o celkové ploše 43 m2, situovaný ve 4. nadzemním podlaží prestižního rezidenčního projektu Anděl City, na adrese Jindřicha Plachty 18, Praha – Smíchov.
Byt zaujme nejen svou polohou v jedné z nejžádanějších částí Prahy, ale také promyšleným dispozičním řešením. Součástí je balkon poskytující příjemný prostor k odpočinku, praktická komora přímo v bytě a podzemní parkovací stání, které zajišťuje maximální komfort bydlení v centru města.

Interiér je vybaven kuchyňskou linkou na míru, která citlivě doplňuje moderní charakter bytu a nabízí funkční i estetické řešení pro každodenní život.

Rezidence Anděl City je vyhledávaná pro svou výjimečnou dostupnost, kompletní občanskou vybavenost v docházkové vzdálenosti a zároveň příjemné městské prostředí s dostatkem zeleně.

Tato nemovitost představuje ideální volbu pro náročné klienty hledající stylové bydlení v centru Prahy, stejně jako zajímavou investiční příležitost.

Pro více informací nebo sjednání prohlídky mě neváhejte kontaktovat. Prodávající si vyhrazuje právo vybrat kupujícího na základě jím zvolených kritérií.
Cena:
Cena na vyžádání v kanceláři
Poznámka k ceně:
Upozornění:
Prodávající si vyhrazuje právo vybrat kupujícího na základě jím zvolených kritérií.
Olesya Shmidt
RE/MAX Partner
Řeporyjské náměstí 16
Praha 5 - Řeporyje, 15500
Česká republika
Tel. na makléře: +420 775 581 617
Tel. do kanceláře: +420 800 434 434
E-mail: olesya.shmidt@re-max.cz

Potřebujete poradit/máte zájem o prohlídku?

* – toto pole je nutné vyplnit

Podrobné informace

Číslo zakázky:
ID 273-NP04828
Dispozice:
1+kk
Číslo podlaží:
4
Počet podlaží v objektu:
7
Podlahová plocha:
43 m²
Druh objektu:
Cihlová
Stav objektu:
Velmi dobrý
Vlastnictví:
Osobní
Typ nemovitosti:
Byty
Charakter okolní zástavby:
Obytná
K nastěhování:
17. 5. 2026
Doprava:
MHD
Odpad:
Kanalizace
Užitná plocha:
40 m²
Zastavěná plocha:
1 049 m²
Plyn:
Plynovod
Počet parkovacích míst:
1
Počet podlaží pod zemí:
1
Telekomunikace:
Internet
Umístění objektu:
Centrum obce
Vybaveno:
Ano
Výtah:
Ano
Energetická náročnost budovy:
C