Translate with 
MENU ZAVŘÍT

Prodej domu 95 m², Prachatice (ID 343-NP00807)

ulice U Lipového dvora, Prachatice – část obce Prachatice II mapa

7 910 000 Kč ( za nemovitost)
AMimořádně
úsporná

4x
95 m2
262 m2
2
Exkluzivně

Prodej domu na klíč se zahradou, park. stáním a terasou v Prachaticích

V rámci projektu vzniká 10 domů, z nichž každý disponuje soukromou zahradou a krytým park. stáním. Domy jsou dodávány na klíč – kompletně dokončené včetně interiérů, exteriérů, terasy a dalších prvků, připravené k okamžitému nastěhování.

Představte si prostorný domov, kde se snoubí funkčnost s estetikou a každý detail je navržen s ohledem na váš komfort.

ARCHITEKTURA A DISPOZICE
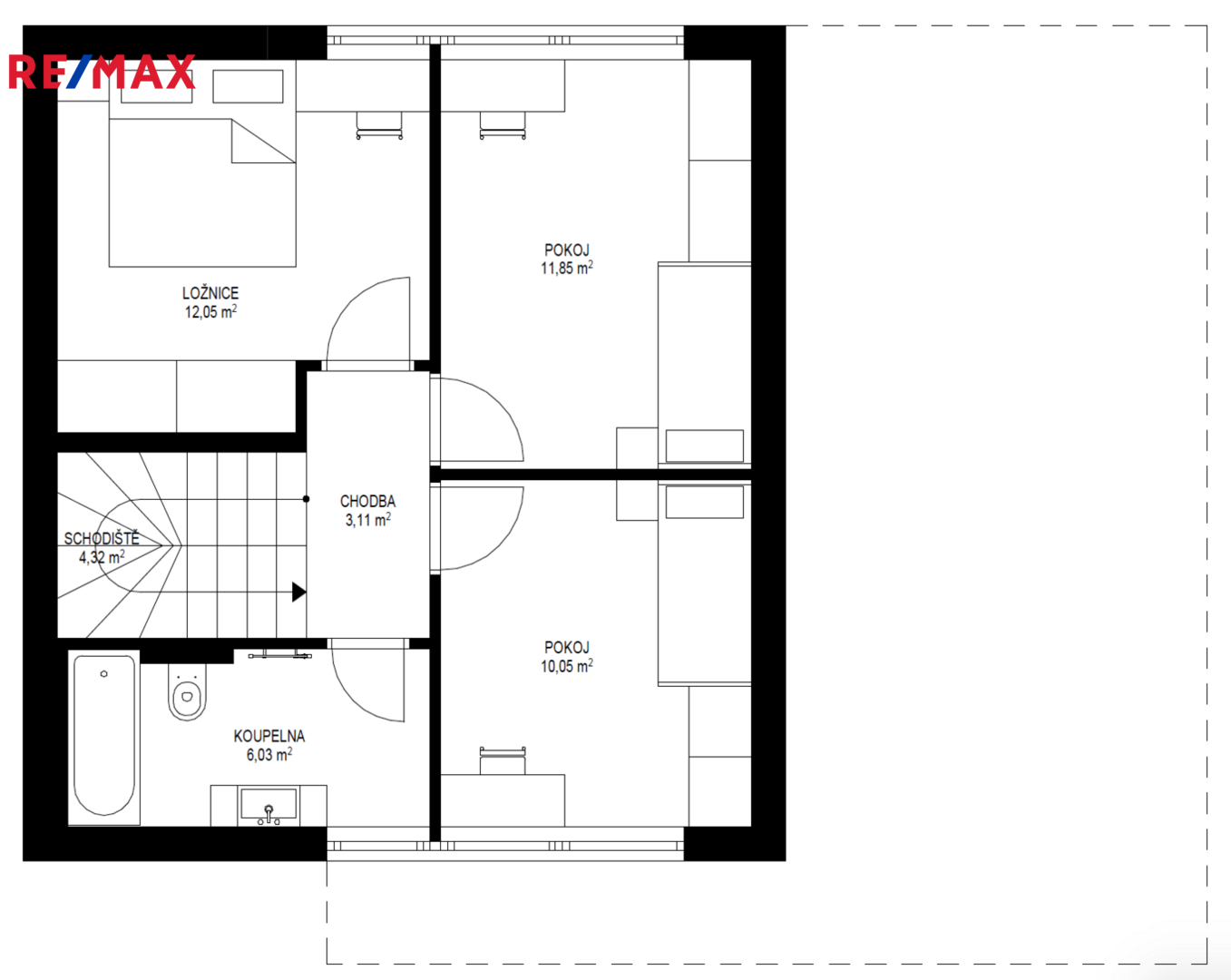
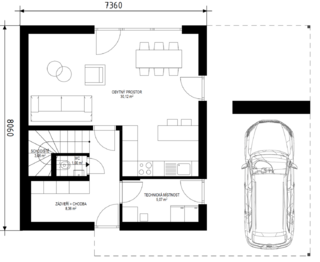
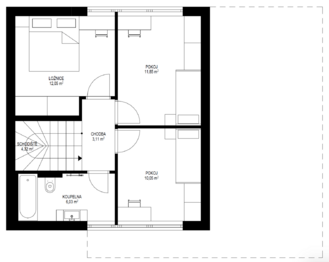
Domy ve spodní části projektu s plochou 95,08 m² a dispozicí 4+kk nabízí vzdušné a harmonické bydlení. Velká okna propojují interiér s přírodou a vpouštějí dovnitř spoustu denního světla. Při vstupu do domu vás přivítá prostorné zádveří, technická místnost a WC. Centrální částí domu je otevřený obývací prostor, propojený s kuchyňským koutem a jídelnou. Dům nabízí přímý vstup na krytou vydlážděnou terasu s nádherným výhledem. Horní patro je oázou klidu a soukromí. Tři neprůchozí pokoje a hlavní koupelna jsou navrženy tak, aby vyhovovaly všem potřebám klientů.

TECHNOLOGIE
Tento mimořádně úsporný dům s energetickou náročností třídy A, vám umožní žít efektivně s nízkými náklady. Vytápění je zajištěno tepelným čerpadlem vzduch/voda, které je spolehlivě doplněno podlahovým topením v přízemí a radiátory v horním patře. Možnost instalace fotovoltaické elektrárny, která vám umožní vyrábět vlastní energii.

INTERIÉR
Interiér domu je promyšlený do posledního detailu. Kvalitní laminátové podlahy, velkoformátová dlažba, moderní dveře. Dubové schodiště se zábradlím propojuje obě patra s elegancí a lehkostí. Součástí vybavení je moderní kuchyňská linka bez spotřebičů, zařízená koupelna – snížená vana, umyvadlo se skříňkou, kulaté podsvícené zrcadlo a WC, zabudované kolejnice na záclony a závěsy. Budoucí majitelé si mohou vybrat ze standardů developera a přizpůsobit si interiér dle svých představ.

EXTERIÉR
Exteriér domu vytváří harmonický dojem, který vás okouzlí svou pečlivě promyšlenou souhrou detailů - předzahrádka ozdobená okrasnou zelení, solitérním stromem, kameny i osvětlením se soumrakovým systémem, dále obložená zeď kameny s dominantní brankou oddělující přední část pozemku od zahrady. Parkovací stání je kryté a vybavené třífázovou zásuvkou. Část pozemku za domem je rovná, zatímco dále se pozemek pozvolna svažuje. Svařovaný antracitový plot na pozemku poskytne nejen soukromí, ale i bezpečí.

LOKALITA
Lokalita projektu vám nabídne něco, co je dnes vzácné – klid a pohodu, přitom jen pár minut od městského života s veškerou občanskou vybaveností na dosah. Tady budete mít prostor pro každodenní radosti, ať už jsou to procházky se psem, chvilky klidu na zahradě nebo víkendové grilování s přáteli.

Vybavení domu se může lišit, prezentujeme vzorový dům.
Dům je připraven k nastěhování. Tyto domy nejsou jen místem k bydlení – je to prostor, kde budete vytvářet své nejkrásnější vzpomínky. Přijďte si ho zažít na vlastní kůži a objevte kouzlo bydlení U Lipového dvora. Prodávající si vyhrazuje právo vybrat kupujícího na základě jím zvolených kritérií.
Cena:
7 910 000 CZK / za nemovitost
Poznámka k ceně:
DŮM NA KLÍČ - v ceně zahrnuto zastřešené parkovací stání, dokončený interiér s kuchyňskou linkou, exteriér s okrasnou předzahrádkou a terasa
Upozornění:
Prodávající si vyhrazuje právo vybrat kupujícího na základě jím zvolených kritérií.
RX finance

Spočítejte si splátku hypotéky

Na kolik vás vyjde pořízení vlastního bydlení? Zadejte pár informací do naší hypoteční kalkulačky a hned si prohlédněte výsledek.

Kupní cena nemovitosti

7 910 000 Kč

Výše hypotéky

Doba splácení

Vypočítaná měsíční splátka

Úroková sazba 3.6%

260 990 Kč

Hypotéku zařídíme za vás

Ušetřete svůj čas i nervy. Naši makléři zařídí veškeré papírování a dovedou vás až k úspěšnému podpisu smlouvy v bance.

Nechte nám kontakt, náš makléř se v pracovní dny ozve do 24 hodin

* – toto pole je nutné vyplnit
Ing. Miroslav Hodina
RE/MAX G8 Reality 8
Pekárenská 1128/46
České Budějovice, 37004
Česká republika
Tel. na makléře: +420 608 174 488
Tel. do kanceláře: +420 733 785 785
E-mail: info.abnormal@re-max.cz

Potřebujete poradit/máte zájem o prohlídku?

* – toto pole je nutné vyplnit

Podrobné informace

Číslo zakázky:
ID 343-NP00807
Poloha objektu:
Samostatný
Počet podlaží v objektu:
2
Užitná plocha:
95 m²
Plocha parcely:
262 m²
Druh objektu:
Dřevěná
Stav objektu:
Novostavba
Typ nemovitosti:
Domy a vily
Charakter okolní zástavby:
Obytná
K nastěhování:
1. 4. 2026
Doprava:
Vlak, Silnice, Autobus
Elektřina:
230 V
Odpad:
Kanalizace
Zastavěná plocha:
67 m²
Počet parkovacích míst:
2
Typ domu:
Patrový
Umístění objektu:
Okraj obce
Voda:
Dálkový rozvod
Vybaveno:
Ano
Energetická náročnost budovy:
A

Další nemovitosti projektu (3)

číslo zakázky podlaží dispozice plocha balkon/lodžie/terasa (m²) předzahrádka sklep počet park. míst stav zakázky cena  
ID 343-NP00264 0 96 m² 0/0/0 Ano (369 m²) ne 0 Aktivní 6 980 000 CZK  
ID 343-NP00266 0 95 m² 0/0/0 ne ne 0 Aktivní 7 480 000 CZK  
ID 343-NP00807 0 95 m² 0/0/0 ne ne 0 Aktivní 7 910 000 CZK