Translate with 
MENU ZAVŘÍT

Prodej domu 102 m², Skoronice (ID 163-NP05347)

Skoronice, okres Hodonín mapa

4 750 000 Kč ( za nemovitost)
GMimořádně
nehospodárná

4x
102 m2
436 m2
1
Exkluzivně

Prodej domu 4+1 s garáží a vinným sklepem ve Skoronicích, 102 m2

Nabídka rodinného domu s garáží, vinným sklepem a dalším pozemkem ve Skoronicích.
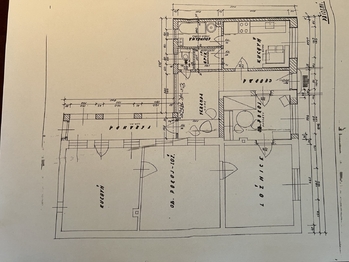
Přízemní cihlový nepodsklepený rodinný dům má dispozici 4+1:
- obývák (16 m2), 2 pokoje (16 m2), menší pokoj (12 m2), kuchyně (12 m2), komora (3 m2), koupelna (umyvadlo, vana, otopný žebřík, 3,8 m2), samostatná toaleta (1 m2), chodba (23 m2). Některé pokoje jsou průchozí.
Dům byl v průběhu let rozšířen a opravován.
Na přiloženém půdorysu jsou jen drobné změny - komora je větší, wc je až na konci chodby.
O teplo domova se stará plynový kotel, voda se ohřívá v plynovém bojleru.
Napojení na IS: elektřina (230, 380V), plyn, voda, kanalizace.
Za domem je menší dvorek se zděnými hospodářskými přístavky a studnou s užitkovou vodou. Zbouráním těchto malých staveb získáte dvorek na posezení pod pergolou. Dále je zde přístup do 2 sklepních místností pod domem, kde je umístěn kotel, bojler a čerpadlo na vodu ze studny. Vodu ze studny lze přepnout i do domu, jen se musí vyměnit trubka.
Přes obecní cestu je další pozemek patřící k domu o výměře 150 m2.
Tento pozemek je v katastru veden jako zastavěná plocha a nádvoří, nachází se tu nyní garáž s vinným sklepem a zbořeniště.
Bude jen na vás, jak tuto plochu se zbořeništěm využijete.
Po cestě lze jezdit autem, ale využívají ji sporadicky jen vlastníci okolních domů.
Dále je zde zděná garáž (18 m2), venkovní posezení a vinný sklep (18 m2).
Parkovat lze před domem nebo v garáži.
Pár kroků od domu je autobusová zastávka.
Skoronice jsou malou jihomoravskou obcí v okrese Hodonín.
Dodržují se zde především národopisné tradice, vyhlášená je Jízda králů.
V roce 2000 získaly Skoronice modrou stuhu za bohatý kulturní a spolkový život v soutěži o vesnici roku Brněnského kraje. Ocenění bylo obci uděleno za udržování lidových tradic a zvyků, které tady nejsou „folklórem“, ale společně prožívanou tradicí.
Obec má základní občanskou vybavenost: obecní úřad, pošta, obchod se smíšeným zbožím, mateřská škola, knihovna, muzeum a místní spolky.
Rozšířenou občanskou vybavenost pak najdete v 6 km vzdáleném Kyjově.
Finanční služby: vyřešte platbu za svůj nový domov tam, kde jste ho koupili. S RX FINANCE nikam jinam pro hypotéku nemusíte.
Osobně mě najdete v kyjovské kanceláři (Masarykovo náměstí 7 - v průchodu). Prodávající si vyhrazuje právo vybrat kupujícího na základě jím zvolených kritérií.
Cena:
4 750 000 CZK / za nemovitost
Poznámka k ceně:
Kompletní cena
Upozornění:
Prodávající si vyhrazuje právo vybrat kupujícího na základě jím zvolených kritérií.
RX finance

Spočítejte si splátku hypotéky

Na kolik vás vyjde pořízení vlastního bydlení? Zadejte pár informací do naší hypoteční kalkulačky a hned si prohlédněte výsledek.

Kupní cena nemovitosti

4 750 000 Kč

Výše hypotéky

Doba splácení

Vypočítaná měsíční splátka

Úroková sazba 3.6%

260 990 Kč

Hypotéku zařídíme za vás

Ušetřete svůj čas i nervy. Naši makléři zařídí veškeré papírování a dovedou vás až k úspěšnému podpisu smlouvy v bance.

Nechte nám kontakt, náš makléř se v pracovní dny ozve do 24 hodin

* – toto pole je nutné vyplnit
Mgr. Veronika Šimečková
RE/MAX Delta
Panská 397/2
Brno, 60200
Česká republika
Tel. na makléře: +420 723 624 697
Tel. do kanceláře: +420 607 449 860
E-mail: veronika.simeckova@re-max.cz

Potřebujete poradit/máte zájem o prohlídku?

* – toto pole je nutné vyplnit

Podrobné informace

Číslo zakázky:
ID 163-NP05347
Poloha objektu:
Řadový
Počet podlaží v objektu:
1
Užitná plocha:
102 m²
Plocha parcely:
436 m²
Druh objektu:
Cihlová
Stav objektu:
Dobrý
Typ nemovitosti:
Domy a vily
Charakter okolní zástavby:
Obytná
Doprava:
Silnice, Autobus
Elektřina:
230 V, 400 V
Garáž:
Ano
Odpad:
Kanalizace
Zastavěná plocha:
179 m²
Plyn:
Plynovod
Typ domu:
Přízemní
Umístění objektu:
Centrum obce
Voda:
Dálkový rozvod
Vybaveno:
Ano
Energetická náročnost budovy:
G