Translate with 
MENU ZAVŘÍT

Prodej bytu 3+1 v osobním vlastnictví 58 m², Bečváry (ID 299-NP00282)

Bečváry, okres Kolín mapa

3 270 000 Kč ( za nemovitost)
GMimořádně
nehospodárná

1x
3x
86 m2
2/2
Exkluzivně

Prodej bytu 3+1, 3x sklep, zahrada u domu, Bečváry, Kolín 11 km

Nová nabídka. Exkluzivně vám nabízíme prodej bytu o dispozici 3+1 v bytovém domě v obci Bečváry.

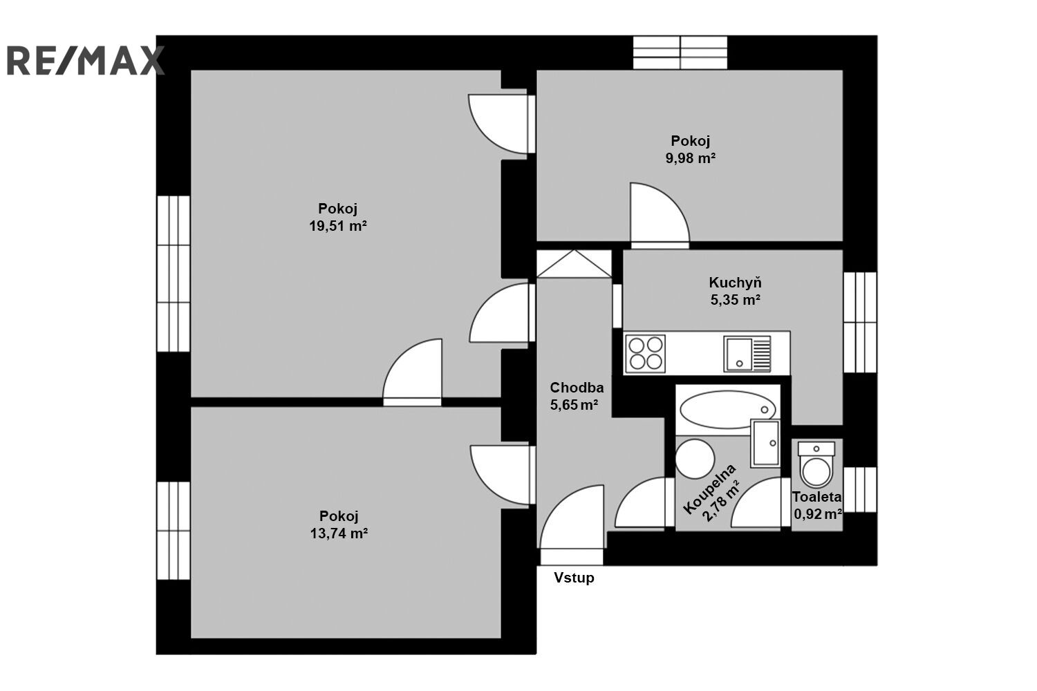
Byt se nachází v 2. nadzemním podlaží cihlového domu. Jednotka č. 170/3 s dispozicí 3+1 má podlahovou plochu 57,93 m². Dispozici tvoří tři pokoje (19,51 m², 13,74 m² a 9,98 m²), samostatná kuchyň (5,35 m²), prostorná chodba (5,65 m²), koupelna (2,78 m²) a WC (0,92 m²). Ve fotogalerii naleznete jak půdorys bytu, tak i virtuální prohlídku.

K bytu náleží také mimořádně velké sklepní prostory v suterénu domu – sklep 11,80 m², komora 4,12 m² a sklep/dílna o výměře 12,11 m². Celková plocha příslušenství činí 28,03 m². Celková užitná plocha bytu včetně příslušenství je tedy 85,96 m². Díky velkým sklepům nabízí jednotka nadstandardní úložné kapacity a možnost využití dílny či hobby prostoru.

Byt je vytápěn akumulačními kamny, ohřev vody zajišťuje vlastní bojler. Nemovitost prošla v loňském roce větší adaptací, která zahrnovala výměnu oken za plastová, položení koberců a vinylové podlahy v chodbě a kuchyni. Dále byla do bytu namontována nová kuchyňská linka, vyměněna toaleta a proběhla také výmalba celého bytu.

K nemovitosti náleží podíl na společných částech domu a pozemku pod a kolem domu o velikosti podílu 8596/31322 (plocha pozemků je 162 a 821 m2). Dům má pouze čtyři bytové jednotky a je spravován SVJ. Aktuální měsíční zálohy dle předpisu činí 2 258 Kč včetně fondu oprav (FO je 20 Kč na m2). Všechny dokumenty máme k dispozici a předáváme je na prohlídce nemovitosti (měsíční předpis, list vlastnictví, stanovy SVJ a prohlášení vlastníka).

Obec Bečváry leží v okrese Kolín zhruba 11 km od Kolína, 8 km od Kutné Hory a 40 km východně od Prahy. Přibližně zde žije 1100 obyvatel. Lokalita má zajímavý budoucí rozvojový potenciál díky plánovanému terminálu Kořenice - Bečváry VRT a celkovému zlepšení dopravní dostupnosti regionu.

V obci je občanská vybavenost: školka, základní škola, hřiště, obchod, lékárna, doktor, vlakový spoj z Kolína směr Ledečko, autobusový spoj z Kutné Hory do Prahy (stanice Háje, linka 381, silnice 2). Tato linka spojuje KH s Prahou přes města Suchdol, Zásmuky a Říčany (PID).

Nemovitost je bez zatížení, v případě financování naší hypotékou máme pro vás připravené benefity. Prohlídky probíhají od středy 25. 3. 2026. Těším se na setkání! Prodávající si vyhrazuje právo vybrat kupujícího na základě jím zvolených kritérií.
Cena:
3 270 000 CZK / za nemovitost
Poznámka k ceně:
Cena včetně provize a právních služeb
RX finance

Spočítejte si splátku hypotéky

Na kolik vás vyjde pořízení vlastního bydlení? Zadejte pár informací do naší hypoteční kalkulačky a hned si prohlédněte výsledek.

Kupní cena nemovitosti

3 270 000 Kč

Výše hypotéky

Doba splácení

Vypočítaná měsíční splátka

Úroková sazba 3.6%

260 990 Kč

Hypotéku zařídíme za vás

Ušetřete svůj čas i nervy. Naši makléři zařídí veškeré papírování a dovedou vás až k úspěšnému podpisu smlouvy v bance.

Nechte nám kontakt, náš makléř se v pracovní dny ozve do 24 hodin

* – toto pole je nutné vyplnit
Ivo Hendrych
REMAX Happy
Palackého 69
Poděbrady, 29001
Česká republika
Tel. na makléře: +420 608 663 366
Tel. do kanceláře: +420 608 663 366
E-mail: ivo.hendrych@re-max.cz

Potřebujete poradit/máte zájem o prohlídku?

* – toto pole je nutné vyplnit

Podrobné informace

Číslo zakázky:
ID 299-NP00282
Dispozice:
3+1
Číslo podlaží:
2
Počet podlaží v objektu:
2
Užitná plocha:
58 m²
Druh objektu:
Smíšená
Stav objektu:
Dobrý
Vlastnictví:
Osobní
Typ nemovitosti:
Byty
Charakter okolní zástavby:
Obytná
K nastěhování:
1. 5. 2026
Elektřina:
230 V, 400 V
Odpad:
Kanalizace
Podlahová plocha:
86 m²
Počet parkovacích míst:
2
Počet podlaží pod zemí:
1
Rok rekonstrukce:
2025
Umístění objektu:
Okraj obce
Voda:
Dálkový rozvod
Energetická náročnost budovy:
G
Měrná vypočtená roční spotřeba energie v kWh/m²/rok:
866