Translate with 
MENU ZAVŘÍT

Prodej bytu 2+1 v osobním vlastnictví 57 m², Frýdek-Místek (ID 315-NP00084)

ulice Marie Majerové, Frýdek-Místek – část obce Místek mapa

3 700 000 Kč ( za nemovitost)
CÚsporná

1x
2x
57 m2
5/6
Exkluzivně

Prodej bytu 2+1 s lodžií a orientovanou na Olešnou, Frýdek-Místek

Praktický byt s výbornou orientací a potenciálem pro vlastní úpravy

Nabízím k prodeji byt v osobním vlastnictví o dispozici 2+1 na ulici Marie Majerové ve Frýdku-Místku. Byt se nachází v 5. patře udržovaného domu s výtahem, který prošel celkovou revitalizací. Kombinuje funkční dispozici, dostatek denního světla a příjemný výhled do okolní zeleně.

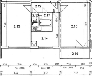
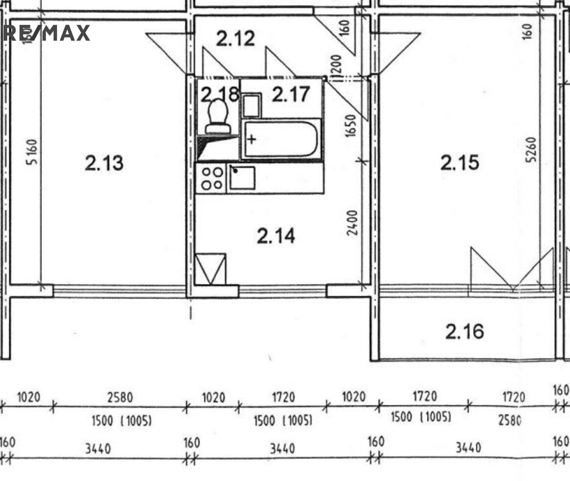
Podlahová plocha bytu činí 53,06 m², k dispozici je lodžie o velikosti 4,13 m² a sklepní koje cca 2 m².

Dispozice, která dává smysl.

Byt nabízí prakticky řešené uspořádání. K dispozici jsou dva samostatné neprůchozí pokoje, samostatná kuchyň, oddělená koupelna a WC a vstup na lodžii z obývacího pokoje.

Dispozice:
• obývací pokoj: 18,09 m²
• pokoj: 17,75 m²
• kuchyň: 9,69 m²
• chodba: 4,13 m²
• koupelna: 2,50 m²
• WC: 0,90 m²

Tento typ dispozice je dlouhodobě vyhledávaný jak pro vlastní bydlení, tak i pro následný pronájem.

Stav bytu a jeho potenciál

Byt je v původním stavu a určený k rekonstrukci. Právě to je jeho zásadní výhoda – nový majitel si může upravit interiér přesně podle svých představ, bez nutnosti přizpůsobovat se předchozím úpravám.

Kuchyňská linka i koupelna odpovídají původnímu standardu, jádro je umakartové. Byt je vyklizen a připravený k okamžité realizaci rekonstrukce.


Světlo, orientace a výhled, který se nemění. Všechna okna jsou orientována na jihozápad, což zajišťuje dostatek denního světla a příjemnou atmosféru v bytě.

Lodžie je po opravě a ve velmi dobrém stavu. Z bytu je otevřený výhled do zeleně, na sportovní plochy a je orientován k vodní nádrži Olešná s panoramatem Beskyd v pozadí. Tento typ výhledu je jedním z hlavních benefitů nabídky.

Dům bez starostí

Dům prošel kompletní revitalizací – zateplení, střecha, výtah i výměna oken. Byt má plastová okna s dvojsklem. Energetická náročnost budovy je třídy C.

Měsíční náklady se pohybují přibližně kolem 5.000 Kč včetně všech služeb. V domě funguje stabilní a aktivní společenství vlastníků.

Lokalita, která funguje

Ulice Marie Majerové patří mezi stabilní a dobře dostupné části Frýdku-Místku. V docházkové vzdálenosti najdete mateřskou i základní školu, obchody, zastávky MHD i dostatek zeleně.

Velkým benefitem je blízkost rekreační oblasti Olešná a zároveň rychlé napojení na Ostravu i Beskydy.

Pro koho je byt ideální

Tato nemovitost dává smysl jak pro vlastní bydlení, tak jako investice. Ocení ji klient, který hledá:
• dobře řešený byt v osobním vlastnictví
• lodžii a dostatek světla
• klidné okolí s výhledem do zeleně
• možnost upravit si bydlení podle vlastních představ

Cena: 3 700 000 Kč
Byt je volný ihned a připravený k předání. Prodávající si vyhrazuje právo vybrat kupujícího na základě jím zvolených kritérií.
Cena:
3 700 000 CZK / za nemovitost
Poznámka k ceně:
Upozornění:
Prodávající si vyhrazuje právo vybrat kupujícího na základě jím zvolených kritérií.
RX finance

Spočítejte si splátku hypotéky

Na kolik vás vyjde pořízení vlastního bydlení? Zadejte pár informací do naší hypoteční kalkulačky a hned si prohlédněte výsledek.

Kupní cena nemovitosti

3 700 000 Kč

Výše hypotéky

Doba splácení

Vypočítaná měsíční splátka

Úroková sazba 3.6%

260 990 Kč

Hypotéku zařídíme za vás

Ušetřete svůj čas i nervy. Naši makléři zařídí veškeré papírování a dovedou vás až k úspěšnému podpisu smlouvy v bance.

Nechte nám kontakt, náš makléř se v pracovní dny ozve do 24 hodin

* – toto pole je nutné vyplnit
Ihor Radchenko
RE/MAX Glorion II
Ječná 243/39a
Praha 2, 12000
Česká republika
Tel. na makléře: +420 775 243 582
Tel. do kanceláře: +420 776 395 579
E-mail: ihor.radchenko@re-max.cz

Potřebujete poradit/máte zájem o prohlídku?

* – toto pole je nutné vyplnit

Podrobné informace

Číslo zakázky:
ID 315-NP00084
Dispozice:
2+1
Číslo podlaží:
5
Počet podlaží v objektu:
6
Podlahová plocha:
57 m²
Druh objektu:
Panelová
Stav objektu:
Dobrý
Vlastnictví:
Osobní
Typ nemovitosti:
Byty
K nastěhování:
18. 3. 2026
Užitná plocha:
53 m²
Výtah:
Ano
Energetická náročnost budovy:
C