Translate with 
MENU ZAVŘÍT

Prodej pozemku 600 m², Sušice (ID 182-NP04116)

Sušice – část obce Dolní Staňkov mapa

1 650 000 Kč ( za nemovitost)

600 m2
Exkluzivně

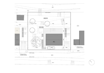
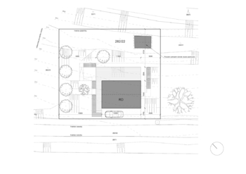
Stavět můžete hned – stavební pozemek s povolením u Sušice

Chcete rovnou stavět bez čekání na úřady? Pak pro Vás máme ideální příležitost – nabízíme k prodeji stavební pozemek v obci Volšovy, v těsné blízkosti Sušice.

Pozemek je situován na slunném, jižně orientovaném svahu na úpatí Svatoboru, což zajišťuje dostatek světla po celý den a zároveň krásné výhledy do okolní krajiny, dokonce i na hrad Kašperk. Výhodou je také dostupnost řeky a oblíbené lokality Páteček.

Zásadní výhodou je, že na základě skvěle propracované architektonické studie a stavebního projektu, je již vydané platné stavební povolení – tedy máte za sebou celý zdlouhavý povolovací proces a můžete začít stavět prakticky ihned. Projekt rodinného domu je navržen s důrazem na účelnost, praktičnost a rozumné náklady na výstavbu.

Hlavní výhody:
• stavební pozemek
• jižní svažitá orientace
• platné stavební povolení pro rodinný dům
• architektonicky kvalitní a promyšlený návrh domu
• kompletní projektová dokumentace
• přivedené inženýrské sítě – elektřina a vodovod
• kanalizace řešena domovní čističkou odpadních vod
• obytná část situována do podkroví s přímým vstupem na pozemek a do přilehlého lesa
Navržený dům citlivě reaguje na terén – obytný prostor v podkroví přirozeně navazuje na svažitý pozemek, což umožňuje přímý vstup na zahradu a dále do lesa. Ideální řešení pro ty, kteří chtějí žít v kontaktu s přírodou.
Tato nabídka je ideální pro zájemce, kteří chtějí bydlet v dosahu Sušice, ale zároveň hledají soukromí, klid a přírodu za domem – a přitom chtějí začít stavět prakticky ihned.

V případě zájmu Vám rád poskytnu více informací nebo představím projekt osobně. Prodávající si vyhrazuje právo vybrat kupujícího na základě jím zvolených kritérií.
Cena:
1 650 000 CZK / za nemovitost
Poznámka k ceně:
Cena je uvedena včetně kompletního právního servisu a provize realitní kanceláře.
Upozornění:
Prodávající si vyhrazuje právo vybrat kupujícího na základě jím zvolených kritérií.
RX finance

Spočítejte si splátku hypotéky

Na kolik vás vyjde pořízení vlastního bydlení? Zadejte pár informací do naší hypoteční kalkulačky a hned si prohlédněte výsledek.

Kupní cena nemovitosti

1 650 000 Kč

Výše hypotéky

Doba splácení

Vypočítaná měsíční splátka

Úroková sazba 3.6%

260 990 Kč

Hypotéku zařídíme za vás

Ušetřete svůj čas i nervy. Naši makléři zařídí veškeré papírování a dovedou vás až k úspěšnému podpisu smlouvy v bance.

Nechte nám kontakt, náš makléř se v pracovní dny ozve do 24 hodin

* – toto pole je nutné vyplnit
Ing. arch. Radovan Vacík
RE/MAX Profil
Vodňanská 36
Prachatice, 38301
Česká republika
Tel. na makléře: +420 608 270 535
Tel. do kanceláře: +420 721 837 670
E-mail: radovan.vacik@re-max.cz

Potřebujete poradit/máte zájem o prohlídku?

* – toto pole je nutné vyplnit

Podrobné informace

Číslo zakázky:
ID 182-NP04116
Druh pozemku:
Pro bydlení
Celková plocha:
600 m²
Inženýrské sítě:
Vodovod, Elektřina
Typ nemovitosti:
Pozemky
Doprava:
MHD
Umístění objektu:
Polosamota