Translate with 
MENU ZAVŘÍT

Prodej bytu 2+1 v osobním vlastnictví 60 m², Plzeň (ID 003-NP04873)

ulice Částkova, Plzeň – městská část Plzeň 2-Slovany mapa

4 999 000 Kč ( za nemovitost)
BVelmi
úsporná

1x
2x
60 m2
2/5
Exkluzivně

Byt 2+1 s možností přestavby na 3+kk

Nabízíme k prodeji byt o dispozici 2+1 ve velmi žádané lokalitě v Plzni – Východní Předměstí.
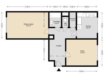
Byt o podlahové ploše 56,7 m² se nachází v 1. patře, tedy ve druhém nadzemním podlaží v bytovém domě v Částkově ulici. Disponuje obývacím pokojem, ložnicí, kuchyní, koupelnou, která je po rekonstrukci s prostorným sprchovým koutem a samostatnou toaletou. Drobnou rekonstrukcí lze byt změnit na dispozici 3+kk. Součástí je také technická místnost pro pračku i sušičku a sklep umístěný v suterénu domu o ploše 3,36 m². Byt se nachází ve velmi dobře udržovaném cihlovém domě z roku 1960, na kterém v průběhu let proběhla rekonstrukce a zateplení fasády, díky tomu je dům energeticky nenáročný, což dokazuje PENB B. Náklady na provoz jsou velmi nízké a fond oprav je pouhých 481 Kč.
V nejbližším okolí najdete potraviny, nákupní centrum Galerie Slovany s množstvím obchodů a služeb včetně fitness centra. V blízkosti je poliklinika, školy, školky, zastávka tramvaje i MHD.

V případě zájmu o bližší informace či domluvení termínu prohlídky nás neváhejte kontaktovat. Prodávající si vyhrazuje právo vybrat kupujícího na základě jím zvolených kritérií.
Cena:
4 999 000 CZK / za nemovitost
RX finance

Spočítejte si splátku hypotéky

Na kolik vás vyjde pořízení vlastního bydlení? Zadejte pár informací do naší hypoteční kalkulačky a hned si prohlédněte výsledek.

Kupní cena nemovitosti

4 999 000 Kč

Výše hypotéky

Doba splácení

Vypočítaná měsíční splátka

Úroková sazba 3.6%

260 990 Kč

Hypotéku zařídíme za vás

Ušetřete svůj čas i nervy. Naši makléři zařídí veškeré papírování a dovedou vás až k úspěšnému podpisu smlouvy v bance.

Nechte nám kontakt, náš makléř se v pracovní dny ozve do 24 hodin

* – toto pole je nutné vyplnit
Petra Palušná
REMAX G8 Reality 3
Francouzská třída 2022/15
Plzeň, 32600
Česká republika
Tel. na makléře: +420 773 969 809
Tel. do kanceláře: +420 377 422 427
E-mail: petra.palusna@re-max.cz

Potřebujete poradit/máte zájem o prohlídku?

* – toto pole je nutné vyplnit

Podrobné informace

Číslo zakázky:
ID 003-NP04873
Dispozice:
2+1
Číslo podlaží:
2
Počet podlaží v objektu:
5
Podlahová plocha:
60 m²
Druh objektu:
Cihlová
Stav objektu:
Dobrý
Vlastnictví:
Osobní
Typ nemovitosti:
Byty
K nastěhování:
27. 3. 2026
Doprava:
Vlak, Dálnice, Silnice, MHD, Autobus
Elektřina:
230 V
Odpad:
Kanalizace
Ostatní rozvody:
Kabelová televize
Užitná plocha:
57 m²
Plyn:
Plynovod
Počet podlaží pod zemí:
1
Telekomunikace:
Telefon, Internet
Voda:
Dálkový rozvod
Energetická náročnost budovy:
B