Translate with 
MENU ZAVŘÍT

Prodej domu 415 m², Kojice (ID 285-NP00363)

Kojice, okres Pardubice mapa

4 299 031 Kč ( za nemovitost)

5+
415 m2
2446 m2
2
Exkluzivně

Usedlost s možností přestavby na rodinné sídlo či investiční projekt - velký pozemek 2446m2

Usedlost s obrovským potenciálem: vícegenerační bydlení, vestavby bytů, investice i hospodaření
Hledáte místo, které nabídne klid, prostor a zároveň skutečnou příležitost k výstavbě či rozšíření obytných kapacit?
Tahle usedlost v Kojicích je přesně ten typ nemovitosti, která se na trhu objevuje jen výjimečně. Na kraji obce, jen se dvěma sousedy a vše blízko.

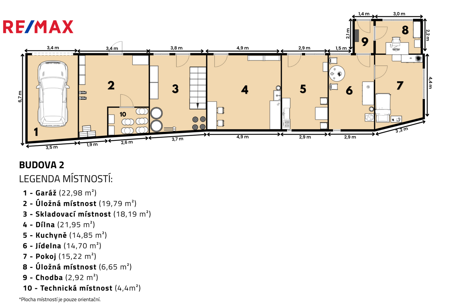
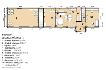
Na pozemku o 2 446 m² stojí nyní dvě obytné budovy, velká stodola, samostatný sklípek a rozsáhlé půdní prostory vhodné k vestavbě.
Celkem 415 m² užitné plochy s možností výrazného rozšíření – ideální pro vícegenerační rodinu, investora nebo projekt s ubytovací kapacitou.
Co dělá tuto usedlost výjimečnou?
Dvě obytné budovy – jedna ihned obyvatelná, s novou elektřinou a plynovým topením. Obě připravené na úpravy, přestavby či propojení.
Několik dalších prostor pro chov zvířat nebo podnikatelské využití
Velké půdní prostory (165 m² + 32 m²) – ideální pro vestavbu bytů, ateliérů nebo rozšíření obytné plochy.
Stodola – skvělá pro dílnu, sklad, ateliér, hospodářství nebo přestavbu na další jednotku.
Vinný sklípek – autentický prvek s atmosférou, perfektní pro víno, potraviny i posezení nebo výstavbu dalšího domu
Ovocný sad a úrodná půda – prostor pro zahradničení, drobné hospodaření nebo bio farmu.
Vlastní studna + obecní voda a kanalizace u domu, plyn a elektřina – kompletní inženýrské sítě.
Slunný, klidný pozemek – ideální pro rodinný život, rekreaci i podnikání.

Kojice leží v malebném Polabí, pár minut od Labe a místních rybníků a nabízejí klidné prostředí s kompletní základní vybaveností: potraviny, hospoda, MŠ, obecní úřad, kulturní sál, sportoviště, dětské hřiště, rybník, plyn, vodovod i kanalizaci. Díky výbornému vlakovému spojení a blízkosti Kolína, Přelouče a Pardubic jde o praktické místo pro rodiny i investory, kteří hledají kombinaci venkovského klidu a dobré dostupnosti.
Okolní příroda nabízí příležitosti k myslivosti, rybaření, cyklostezky, procházky i klid, který se dnes hledá čím dál hůř.

Možnosti využití, které dávají smysl:
- Vícegenerační rodinné bydlení s velkou zahradou a zázemím pro zvířata
- Rekreační usedlost pro velké rodiny, skupiny nebo pronájem
- Investiční projekt – vestavba bytů, ubytovna, agroturistika, ateliéry, dílny
- Podnikání v souladu s územním plánem – od farmy po řemeslné provozy

Tahle usedlost spojuje klidnou atmosféru, velký pozemek a mimořádný potenciál.
Nechte se inspirovat několika vizualizacemi a začněte zde novou kapitolu.
Je to místo, kde můžete vytvořit rodinné sídlo, investiční projekt nebo kombinaci obojího.
S financováním hypotékou vám rádi pomůžeme.

Neváhejte a zavolejte/napište si o více informací a sjednejte si prohlídku co nejdříve Prodávající si vyhrazuje právo vybrat kupujícího na základě jím zvolených kritérií.
Cena:
4 299 031 CZK / za nemovitost
Poznámka k ceně:
Cena zahrnuje veškerý právní servis
Upozornění:
Prodávající si vyhrazuje právo vybrat kupujícího na základě jím zvolených kritérií.
RX finance

Spočítejte si splátku hypotéky

Na kolik vás vyjde pořízení vlastního bydlení? Zadejte pár informací do naší hypoteční kalkulačky a hned si prohlédněte výsledek.

Kupní cena nemovitosti

4 299 031 Kč

Výše hypotéky

Doba splácení

Vypočítaná měsíční splátka

Úroková sazba 3.6%

260 990 Kč

Hypotéku zařídíme za vás

Ušetřete svůj čas i nervy. Naši makléři zařídí veškeré papírování a dovedou vás až k úspěšnému podpisu smlouvy v bance.

Nechte nám kontakt, náš makléř se v pracovní dny ozve do 24 hodin

* – toto pole je nutné vyplnit
Bc. Petr Kubášek
RE/MAX Prestige
Vídeňská 52/140
Praha 4 - Kunratice, 14800
Česká republika
Tel. na makléře: +420 603 417 599
Tel. do kanceláře: +420 605 945 005
E-mail: petr.kubasek@re-max.cz

Potřebujete poradit/máte zájem o prohlídku?

* – toto pole je nutné vyplnit

Podrobné informace

Číslo zakázky:
ID 285-NP00363
Poloha objektu:
Samostatný
Počet podlaží v objektu:
2
Užitná plocha:
415 m²
Plocha parcely:
2 446 m²
Druh objektu:
Smíšená
Stav objektu:
Před rekonstrukcí
Typ nemovitosti:
Domy a vily
Bezbariérový byt:
Ano
Charakter okolní zástavby:
Obytná
K nastěhování:
21. 3. 2026
Doprava:
Vlak, Dálnice, Silnice, Autobus
Elektřina:
230 V, 400 V
Garáž:
Ano
Odpad:
Septik
Ostatní rozvody:
Satelit
Zastavěná plocha:
218 m²
Plyn:
Plynovod
Počet parkovacích míst:
4
Telekomunikace:
Internet
Typ domu:
Patrový
Umístění objektu:
Okraj obce
Voda:
Dálkový rozvod