Translate with 
MENU ZAVŘÍT

Prodej domu 270 m², Vrbová Lhota (ID 273-NP04849)

ulice Na Kovárně, Vrbová Lhota mapa

12 990 000 Kč ( za nemovitost)
DMéně
úsporná

5+
270 m2
724 m2
2
Exkluzivně Zlevněno

Rodinný dům se zahradou, bazénem a ateliérem

Hledáte dům, který nabídne dostatek prostoru pro rodinný život, soukromí na zahradě a zároveň inspirativní místo pro práci či tvorbu?

Ve Vrbové Lhotě nedaleko lázeňského města Poděbrady nabízíme rodinný dům se zahradou, bazénem a ateliérem, který spojuje komfortní bydlení s klidným prostředím obce.

Dům stojí na pozemku o velikosti 724 m² a nabízí užitnou plochu 270 m². Nemovitost byla postavena v roce 1995, je zateplená, zděná, se střechou krytou taškami a plastovými okny s izolačním dvojsklem. V přízemí jsou instalovány venkovní žaluzie, které zvyšují komfort bydlení.

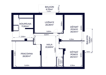
Dispozice domu nabízí čtyři pokoje a také ateliér či pracovnu, který může sloužit nejen pro uměleckou tvorbu, ale také jako pracovna, studio nebo prostor pro podnikání z domova.

Zajímavostí domu je jeho umělecký příběh – v domě tvořila mezinárodně uznávaná malířka Jindřiška Husáriková, což domu dodává jedinečnou atmosféru inspirativního a klidného místa.

Dominantou obytné části je prostorný obývací pokoj s krbem a jídelním koutem, který je propojen s kuchyní. Součástí domu je také koupelna se sprchovým koutem a WC, kde je instalováno elektrické podlahové vytápění pro vyšší komfort.

Na obytnou část navazuje prostorná terasa orientovaná do zahrady, která nabízí ideální místo pro ranní kávu, letní posezení i rodinná setkání.

Velkou předností domu je zahrada poskytující dostatek soukromí i prostoru pro relaxaci. Dominantou je bazén s posuvným zastřešením, vyhřívaný tepelným čerpadlem, který umožňuje koupání po větší část roku. Na pozemku se nachází také studna pro zalévání zahrady, upravené okrasné porosty a venkovní udírna s grilem, ideální pro letní posezení s rodinou a přáteli.

Praktickým doplňkem domu je půda poskytující další úložný prostor a garáž nebo skladovací prostor s vlastním vjezdem. Parkování je možné také na zpevněné ploše pro dvě auta přímo na pozemku.

O vytápění domu se stará kotel na dřevo a elektrokotel, ohřev vody zajišťuje elektrobojler. Nemovitost je napojena na obecní vodovod i kanalizaci.

Obec Vrbová Lhota nabízí příjemné a klidné bydlení s dobrou dostupností do Poděbrad i dalších měst v okolí. V obci se nachází mateřská i základní škola, další služby, obchody a restaurace jsou dostupné v nedalekých Poděbradech nebo Pečkách.

Velkou výhodou je také rychlé napojení na dálnici D11, vzdálenou přibližně 1 km, které zajišťuje pohodlné spojení do Prahy.

Tento dům nabízí ideální kombinaci prostorného rodinného bydlení, klidného prostředí a inspirativního domu s jedinečným příběhem.

Rádi Vám tuto nemovitost představíme osobně na prohlídce.
Prodávající si vyhrazuje právo vybrat kupujícího na základě jím zvolených kritérií.
Cena:
12 990 000 CZK / za nemovitost
RX finance

Spočítejte si splátku hypotéky

Na kolik vás vyjde pořízení vlastního bydlení? Zadejte pár informací do naší hypoteční kalkulačky a hned si prohlédněte výsledek.

Kupní cena nemovitosti

12 990 000 Kč

Výše hypotéky

Doba splácení

Vypočítaná měsíční splátka

Úroková sazba 3.6%

260 990 Kč

Hypotéku zařídíme za vás

Ušetřete svůj čas i nervy. Naši makléři zařídí veškeré papírování a dovedou vás až k úspěšnému podpisu smlouvy v bance.

Nechte nám kontakt, náš makléř se v pracovní dny ozve do 24 hodin

* – toto pole je nutné vyplnit
Artem Saykin
REMAX Partner
Řeporyjské náměstí 16
Praha 5 - Řeporyje, 15500
Česká republika
Tel. na makléře: +420 771 161 813
Tel. do kanceláře: +420 800 434 434
E-mail: artem.saykin@re-max.cz

Potřebujete poradit/máte zájem o prohlídku?

* – toto pole je nutné vyplnit

Podrobné informace

Číslo zakázky:
ID 273-NP04849
Poloha objektu:
Samostatný
Počet podlaží v objektu:
2
Užitná plocha:
270 m²
Plocha parcely:
724 m²
Druh objektu:
Cihlová
Stav objektu:
Velmi dobrý
Typ nemovitosti:
Domy a vily
Doprava:
Dálnice, Silnice, Autobus
Odpad:
Kanalizace
Typ domu:
Patrový
Voda:
Dálkový rozvod
Energetická náročnost budovy:
D
Měrná vypočtená roční spotřeba energie v kWh/m²/rok:
116