Translate with 
MENU ZAVŘÍT

Prodej domu 105 m², Líšná (ID 353-NP00091)

Líšná, okres Žďár nad Sázavou mapa

3 500 000 Kč ( za nemovitost)
GMimořádně
nehospodárná

5+
105 m2
366 m2
1
Exkluzivně

Prodej rodinného domu/chalupy 134m2

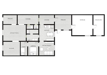
Nemovitost se nachází v klidné vesničce, obklopené nádhernou krajinou. Nemovitost se skládá z malé předzahrádky a soukromé zahrady za domem o výměře 133m2. Chalupa nabízí dostatek prostoru pro rodinné víkendy i delší pobyty – ať už toužíte po rekreaci, nebo hledáte trvalé bydlení s atmosférou. Disponuje vlastní studnou i veřejným vodovodem, přípojkou na plyn, elektřinu a kanalizace je řešena jímkou. Je částečně zrekonstruovaná a nabízí ještě celé horní patro s novou střechou se střešními okny a prostornou půdou. Momentálně obývané pouze přízemí kde se nachází kuchyň, obývací pokoj a 3 menší pokoje. Dále v obytné části nové rozvody vody, topení a elektřiny. Vinylové podlahy, koupelna s vanou i sprchovým koutem a samostatné WC.

Stavení je na polosamotně ale i tak nabízí dobrou dostupnost, nejbližší obchody,restaurace,kavárna je pouhých 5 minut autem v obci Sněžné a nejbližší město je cca 15 minut autem.


Výhody:

- Bydlení v přírodě s dobrou dostupností
- Možnost okamžitého užívání nebo provozu rekreačního ubytování
- Flexibilní využití – bydlení, víkendy, pronájem

V případě zájmu o více informací nebo osobní prohlídku mě neváhejte kontaktovat. Rád vás nemovitostí provedu. Prodávající si vyhrazuje právo vybrat kupujícího na základě jím zvolených kritérií.
Cena:
3 500 000 CZK / za nemovitost
RX finance

Spočítejte si splátku hypotéky

Na kolik vás vyjde pořízení vlastního bydlení? Zadejte pár informací do naší hypoteční kalkulačky a hned si prohlédněte výsledek.

Kupní cena nemovitosti

3 500 000 Kč

Výše hypotéky

Doba splácení

Vypočítaná měsíční splátka

Úroková sazba 3.6%

260 990 Kč

Hypotéku zařídíme za vás

Ušetřete svůj čas i nervy. Naši makléři zařídí veškeré papírování a dovedou vás až k úspěšnému podpisu smlouvy v bance.

Nechte nám kontakt, náš makléř se v pracovní dny ozve do 24 hodin

* – toto pole je nutné vyplnit
Petr Štorek
RE/MAX Point
Údolní 16
Brno, 60200
Česká republika
Tel. na makléře: +420 731 241 799
Tel. do kanceláře: +420 603 201 623
E-mail: petr.storek@re-max.cz

Potřebujete poradit/máte zájem o prohlídku?

* – toto pole je nutné vyplnit

Podrobné informace

Číslo zakázky:
ID 353-NP00091
Poloha objektu:
Řadový
Počet podlaží v objektu:
1
Užitná plocha:
105 m²
Plocha parcely:
366 m²
Druh objektu:
Smíšená
Stav objektu:
Dobrý
Typ nemovitosti:
Domy a vily
Charakter okolní zástavby:
Venkovská
K nastěhování:
23. 3. 2026
Doprava:
Autobus
Elektřina:
230 V, 400 V
Plocha zahrady:
170 m²
Zastavěná plocha:
129 m²
Plyn:
Plynovod
Telekomunikace:
Telefon, Internet
Typ domu:
Patrový
Umístění objektu:
Polosamota
Umístění v chráněných lokalitách:
Ochranné pásmo
Voda:
Zdroj pro celý objekt
Vybaveno:
Ano
Energetická náročnost budovy:
G