Translate with 
MENU ZAVŘÍT

Prodej bytu 2+1 v osobním vlastnictví 55 m², Kolín (ID 299-NP00285)

ulice Míru, Kolín – část obce Kolín II mapa

5 061 875 Kč ( za nemovitost)
DMéně
úsporná

1x
2x
61 m2
3/4
Exkluzivně

Prodej cihlového bytu 2+1 ve vyhledávané lokalitě, Kolín, ulice Míru

Nová nabídka. Představujeme vám cihlový byt v klidné a vyhledávané části Kolína, v ulici Míru 672. Nemovitost se nachází na původním cihlovém sídlišti z 60. let, které je oblíbené zejména pro dostatek zeleně, dobrou občanskou vybavenost a pohodlnou dostupnost do centra města. V blízkost najdete nákupní zónu s Kauflandem, dále Lidl na Pražské ulici, Tesco, OBI a další obchody i služby. Velkou výhodou je také dobrá dopravní dostupnost, kdy se dvě autobusové zastávky nacházejí přibližně 60 a 220 metrů od domu. Mateřská škola je vzdálena zhruba 200 metrů a základní škola je rovněž v pohodlné pěší dostupnosti.

Bytový dům je cihlový a prošel revitalizací, včetně zateplení realizovaného v roce 2024. Byt se nachází ve 3. patře ze čtyř nadzemních podlaží, přičemž poslední podlaží tvoří obytné podkroví. Energetická náročnost budovy je zařazena do třídy D. Samotná bytová jednotka prošla rekonstrukcí přibližně v letech 2012 až 2013 a na začátku roku 2026 byly dále provedeny další úpravy a modernizace, zejména nová dlažba v koupelně a na WC, nové dveře, výmalba, profesionální úklid, drobné opravy, nový termostat a převážně nové LED osvětlení a další.

V bytě je instalován kondenzační plynový kotel, který zajišťuje vytápění i ohřev teplé užitkové vody. V ložnici je plovoucí podlaha, v obývacím pokoji dřevěné parkety a v ostatních místnostech včetně kuchyně je položena dlažba. Kuchyň je vybavena myčkou o šířce 45 cm, elektrickou troubou, dřezem s baterií, plynovou varnou deskou, digestoří a prostorem pro mikrovlnnou troubu.

Byt je připraven k užívání nebo pronájmu ihned po dokončení transakce. Orientační tržní nájemné lze předpokládat kolem 15.500 Kč měsíčně plus služby. Dispozice bytu nabízí příjemné a praktické řešení pro vlastní bydlení i investici.

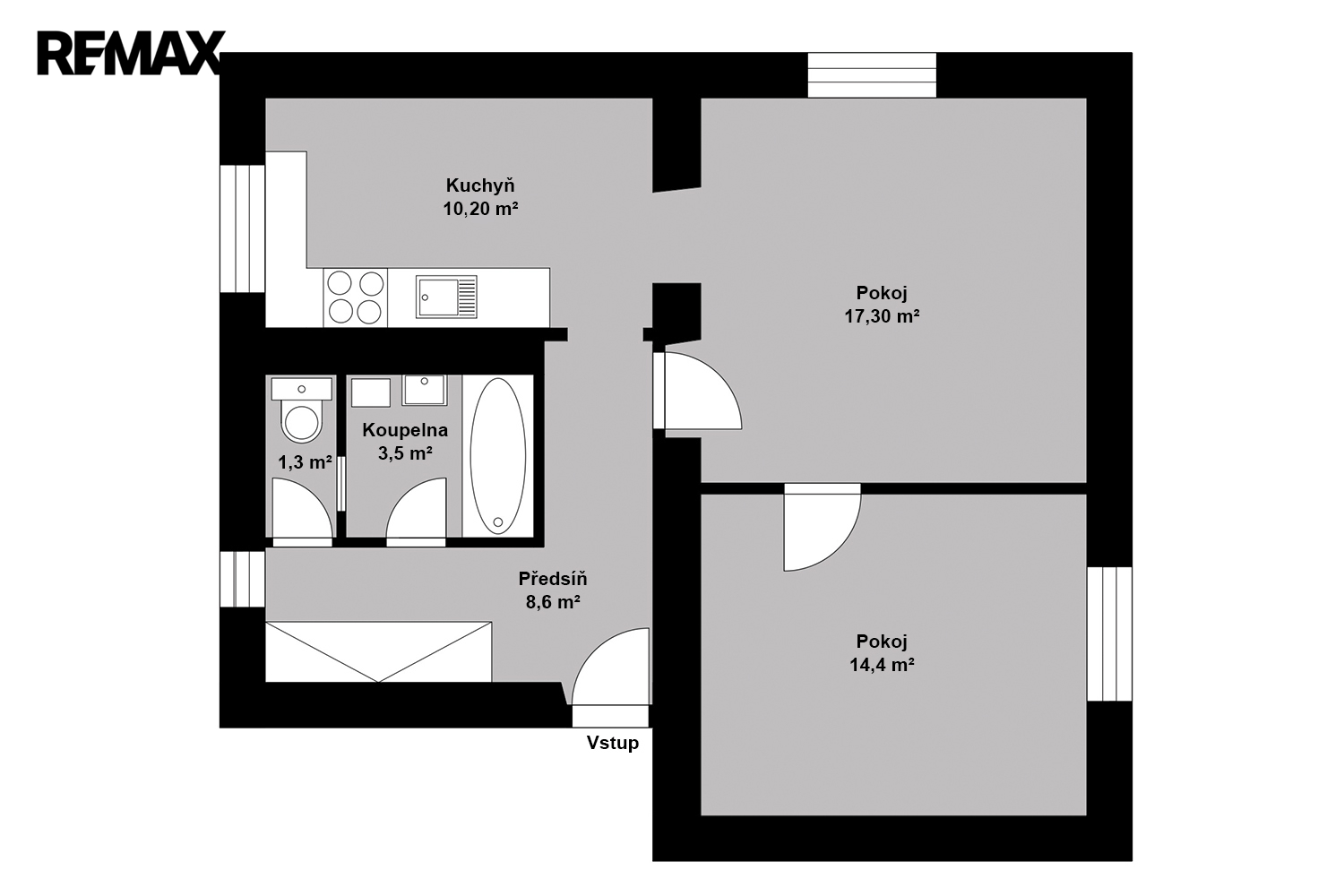
K bytu náleží dva sklepy. Jeden sklep je svou plochou započítán v prohlášení vlastníka a je ve výhradním užívání k bytové jednotce. Druhý sklep představuje původní sklad dřeva a uhlí; nachází se ve společných částech domu, avšak slouží k této jednotce. V suterénu domu jsou dále k dispozici společné prostory, například kolárna, sušárna a další zázemí. Výměry uvádíme dle prohlášení vlastníka, přičemž skutečný stav bytu odpovídá i o něco větší užitné ploše. Součástí inzerce je také odkaz na virtuální prohlídku a orientační půdorys bytu, takže si dispozici i stav nemovitosti můžete detailně projít ještě před osobní prohlídkou.

Dokumentaci k bytu, včetně prohlášení vlastníka a dalších podkladů, rádi předložíme při prohlídce. Hypoteční financování je možné, orientačně s úrokovou sazbou od 4,69 % a mnoha benefity. Těším se na setkání! Prodávající si vyhrazuje právo vybrat kupujícího na základě jím zvolených kritérií.
Cena:
5 061 875 CZK / za nemovitost
Poznámka k ceně:
Cena včetně provize a právních služeb
RX finance

Spočítejte si splátku hypotéky

Na kolik vás vyjde pořízení vlastního bydlení? Zadejte pár informací do naší hypoteční kalkulačky a hned si prohlédněte výsledek.

Kupní cena nemovitosti

5 061 875 Kč

Výše hypotéky

Doba splácení

Vypočítaná měsíční splátka

Úroková sazba 3.6%

260 990 Kč

Hypotéku zařídíme za vás

Ušetřete svůj čas i nervy. Naši makléři zařídí veškeré papírování a dovedou vás až k úspěšnému podpisu smlouvy v bance.

Nechte nám kontakt, náš makléř se v pracovní dny ozve do 24 hodin

* – toto pole je nutné vyplnit
Ivo Hendrych
REMAX Happy
Palackého 69
Poděbrady, 29001
Česká republika
Tel. na makléře: +420 608 663 366
Tel. do kanceláře: +420 608 663 366
E-mail: ivo.hendrych@re-max.cz

Potřebujete poradit/máte zájem o prohlídku?

* – toto pole je nutné vyplnit

Podrobné informace

Číslo zakázky:
ID 299-NP00285
Dispozice:
2+1
Číslo podlaží:
3
Počet podlaží v objektu:
4
Užitná plocha:
55 m²
Druh objektu:
Cihlová
Stav objektu:
Velmi dobrý
Vlastnictví:
Osobní
Typ nemovitosti:
Byty
Charakter okolní zástavby:
Obytná
K nastěhování:
1. 5. 2026
Doprava:
Vlak, Dálnice, Silnice, MHD, Autobus
Elektřina:
230 V
Odpad:
Kanalizace
Podlahová plocha:
61 m²
Plyn:
Plynovod
Počet podlaží pod zemí:
1
Rok rekonstrukce:
2012
Telekomunikace:
Internet
Umístění objektu:
Klidná část obce
Voda:
Dálkový rozvod
Vybaveno:
Ano
Energetická náročnost budovy:
D
Měrná vypočtená roční spotřeba energie v kWh/m²/rok:
119