Translate with 
MENU ZAVŘÍT

Pronájem bytu 2+kk v osobním vlastnictví 54 m², Praha 9 - Letňany (ID 023-NP08848)

ulice Vyletalova, Praha 9 – Letňany mapa

24 000 Kč ( za měsíc)
GMimořádně
nehospodárná

kk
2x
65 m2
2/9
Exkluzivně

Pronájem bytu 2+kk Praha - Letňany, novostavba z r. 2025, lodžie, garáž, sklep

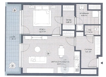
Nabízíme k pronájmu moderní byt 2+kk o velikosti 54 m² v novostavbě z roku 2025 v atraktivní lokalitě Praha – Letňany. Byt se nachází ve 2. nadzemním podlaží domu s výtahem a je ideální pro jednotlivce nebo pár.
Součástí bytu je prostorná lodžie o velikosti 11 m² s otevřeným výhledem, garážové stání a sklepní kóje (2 m²).
Byt je světlý, vzdušný a nabízí komfortní moderní bydlení v klidné části Prahy.
Dispozice bytu:
obývací pokoj s kuchyňským koutem
samostatná ložnice
koupelna se sprchovým koutem (příprava na pračku)
samostatné WC
vstupní chodba
šatna
lodžie
Vybavení: plně vybavená kuchyňská linka:
myčka nádobí
indukční varná deska
horkovzdušná trouba
mikrovlnná trouba
lednice s mrazákem
digestoř
Lokalita Praha Letňany:
Vyhledávaná lokalita Praha 9 – Letňany nabízí kompletní občanskou vybavenost v pěší dostupnosti (obchody, restaurace, kavárny, školy, školky, lékaři, úřady). Výborná dopravní dostupnost – metro Letňany a zastávky MHD v blízkosti domu.
V okolí se nachází parky, zeleň a možnosti pro sport i relaxaci.
Hlavní výhody:
novostavba 2025
lodžie 11 m²
garážové stání
sklep
výtah
klidná lokalita
výborná dostupnost do centra Prahy
V případě zájmu o pronájem bytu v Praze Letňanech mě neváhejte kontaktovat e-mailem pro více informací nebo sjednání prohlídky.
Pronajímající si vyhrazuje právo vybrat nájemce na základě jím zvolených kritérií. Pronajímající si vyhrazuje právo vybrat nájemce na základě jím zvolených kritérií.
Cena:
24 000 CZK / za měsíc
Poznámka k ceně:
+ zúčtovatelné poplatky 4.400,- Kč včetně záloh na elektřinu, kauce 28.400,- Kč, odměna RK 29.040,- Kč
Ladislav Buchta
REMAX G8 Reality 2
Kleinerova 1466
Kladno, 27201
Česká republika
Tel. na makléře: +420 731 618 478
Tel. do kanceláře: +420 312 240 239
E-mail: ladislav.buchta@re-max.cz

Potřebujete poradit/máte zájem o prohlídku?

* – toto pole je nutné vyplnit

Podrobné informace

Číslo zakázky:
ID 023-NP08848
Dispozice:
2+kk
Číslo podlaží:
2
Počet podlaží v objektu:
9
Užitná plocha:
54 m²
Druh objektu:
Cihlová
Stav objektu:
Novostavba
Vlastnictví:
Osobní
Typ nemovitosti:
Byty
Charakter okolní zástavby:
Obytná
K nastěhování:
7. 4. 2026
Doprava:
Vlak, Dálnice, Silnice, MHD, Autobus
Elektřina:
230 V
Garáž:
Ano
Odpad:
Kanalizace
Podlahová plocha:
65 m²
Zastavěná plocha:
3 154 m²
Počet podlaží pod zemí:
2
Voda:
Dálkový rozvod
Vybaveno:
Ano
Výtah:
Ano
Energetická náročnost budovy:
G