Translate with 
MENU ZAVŘÍT

Prodej bytu atypický v osobním vlastnictví 208 m², České Budějovice (ID 343-NP00834)

ulice Fráni Šrámka, České Budějovice – část obce České Budějovice 3 mapa

18 325 000 Kč ( za nemovitost)
BVelmi
úsporná

1x
x
265 m2
6/6
Exkluzivně

Luxusní penthouse 4+kk na prodej | České Budějovice centrum| 265 m², terasa, privátní výtah

Tento výjimečný penthouse v exklusivním projektu Šrámkovka, jen pár minut od centra Českých Budějovic, Vám nabídne velkorysý prostor, dvě terasy, naprosté soukromí a špičkové provedení, které se v běžné nabídce prakticky neobjevuje.
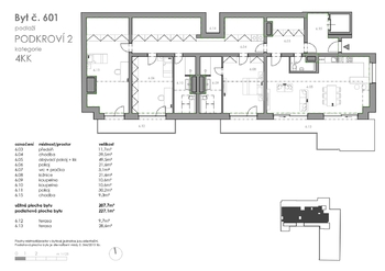
Celková plocha bytu včetně teras je téměř 265,4 m² , což odpovídá rozměrům rodinného domu spíše než bytu.
Byt se nachází po celé ploše posledního podlaží nového moderního domu, což zaručuje naprostý klid a soukromí – bez sousedů, bez kompromisů. Už samotný příchod napovídá, že se nejedná o běžné bydlení. Výtah Vás vyveze přímo do bytu, jehož dominantou je velkorysý obytný prostor o rozloze téměř 49,5 m².
Díky hliníkovým velkoformátovým HS portálům je interiér dokonale propojený s exteriérem a doslova zalitý světlem. Výhled máte přímo na terasu s bioklimatickou pergolou, která není jen doplňkem; je to další obytný prostor.
Byt nabízí tři samostatné pokoje – ideální jako ložnice, dětské pokoje, pracovna nebo herna. V této části bytu se nachází druhá terasa orientovaná do zelené zahrady vnitrobloku.
Samozřejmostí jsou dvě koupelny a další oddělené WC, kvalitní sanita Hansgrohe, sprchové zástěny Hüppe a precizní obklady RAKO.
Dřevěné podlahy, podlahové vytápění a klimatizace v obytných místnostech podtrhují vysoký standard celého bytu.
Komfort doplňují předokenní žaluzie, dálkově ovládaná střešní okna a promyšlené detaily, které dělají každodenní život jednodušší.
K bytu si můžete zakoupit dvě parkovací stání v přízemí domu a uzamykatelnou garáž.

Hlavní přednosti:
Privátní výtah přímo do bytu.
Celé patro jen pro Vás.
Dvě terasy.
Bioklimatická pergola.
Předokenní žaluzie a dálkově ovládaná střešní okna.
Klimatizace v obytných místnostech.
Maximální prosvětlení díky HS portálům.
Podlahové vytápění, dřevěné podlahy.
Toalety s bidetem.
Parkování přímo v domě.

Vybavení:
Dřevěné dubové podlahy, bezfalcové dveře, obklady RAKO, sanita Hansgrohe, sprchové zástěny Hűppe.

Lokalita:
Vše pro rodinný život v docházkové vzdálenosti – MŠ, ZŠ, SŠ, gymnázia, MHD, vlakové i autobusové nádraží. OC IGY 5 minut pěšky, Palackého náměstí 200 m. Rychlý nájezd na D3.
Klidná ulice a tichý vnitroblok se zahradou. Město máte na dosah, ale doma máte klid.

Cena včetně DPH.
Orientační výměry místností jsou uvedeny na přiloženém půdorysu. Prodávající si vyhrazuje právo vybrat kupujícího na základě jím zvolených kritérií.
Cena:
18 325 000 CZK / za nemovitost
Poznámka k ceně:
+ možnost přikoupit garážové parkovací stání a garáž pro jednostopá vozidla
RX finance

Spočítejte si splátku hypotéky

Na kolik vás vyjde pořízení vlastního bydlení? Zadejte pár informací do naší hypoteční kalkulačky a hned si prohlédněte výsledek.

Kupní cena nemovitosti

18 325 000 Kč

Výše hypotéky

Doba splácení

Vypočítaná měsíční splátka

Úroková sazba 3.6%

260 990 Kč

Hypotéku zařídíme za vás

Ušetřete svůj čas i nervy. Naši makléři zařídí veškeré papírování a dovedou vás až k úspěšnému podpisu smlouvy v bance.

Nechte nám kontakt, náš makléř se v pracovní dny ozve do 24 hodin

* – toto pole je nutné vyplnit
Bc. Petra Puschnerová
REMAX G8 Reality 8
Pekárenská 1128/46
České Budějovice, 37004
Česká republika
Tel. na makléře: +420 739 332 258
Tel. do kanceláře: +420 733 785 785
E-mail: petra.puschnerova@re-max.cz

Potřebujete poradit/máte zájem o prohlídku?

* – toto pole je nutné vyplnit

Podrobné informace

Číslo zakázky:
ID 343-NP00834
Číslo podlaží:
6
Počet podlaží v objektu:
6
Užitná plocha:
208 m²
Druh objektu:
Cihlová
Stav objektu:
Novostavba
Vlastnictví:
Osobní
Typ nemovitosti:
Byty
Charakter okolní zástavby:
Obytná
Doprava:
Vlak, Dálnice, Silnice, MHD, Autobus
Elektřina:
230 V
Garáž:
Ano
Odpad:
Kanalizace
Podlahová plocha:
265 m²
Telekomunikace:
Internet
Umístění objektu:
Klidná část obce
Voda:
Dálkový rozvod
Výtah:
Ano
Energetická náročnost budovy:
B

Další nemovitosti projektu (1)

číslo zakázky podlaží dispozice plocha balkon/lodžie/terasa (m²) předzahrádka sklep počet park. míst stav zakázky cena  
ID 343-NP00834 6 208 m² 10/0/29 ne ne 0 Aktivní 18 325 000 CZK