Translate with 
MENU ZAVŘÍT

Prodej bytu 4+kk v osobním vlastnictví 134 m², České Budějovice (ID 343-NP00837)

ulice Fráni Šrámka, České Budějovice – část obce České Budějovice 3 mapa

12 980 000 Kč ( za nemovitost)
BVelmi
úsporná

kk
4x
160 m2
5/6
Exkluzivně

Prodej nového nadstandardně rozlehlého bytu 4+kk, ul. Fráni Šrámka, Č. Budějovice.

V projektu ŠRÁMKOVKA nabízíme poslední 2 volné byty, a jedním z nich je právě tento velmi nadstandardně řešený byt o dispozici 4+kk s terasou, v ul. Fráni Šrámka, České Budějovice.
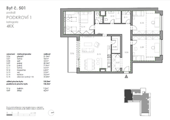
Celková plocha bytu včetně terasy a sklepa je téměř 160 m² , což spíše odpovídá rozměrům rodinného domu.

Díky hliníkovým velkoformátovým HS portálům (včetně venkovních žaluzií, které jsou v ceně), je obytná místnost s kuchyňským koutem dokonale propojená s exteriérem, s výhledem do zelené zahrady vnitrobloku.

Byt nabízí další tři neprůchozí pokoje – ideální jako ložnice, dětské pokoje, pracovna nebo herna.
Samozřejmostí je jedna hlavní koupelna s WC a druhé samostatně oddělené WC, kvalitní sanita Hansgrohe, sprchové zástěny Hüppe a precizní obklady RAKO.
Dřevěné podlahy, podlahové vytápění a klimatizace v obytných místnostech podtrhují vysoký standard celého bytu.

K bytu si můžete zakoupit 1 kryté garážové parkovací stání v přízemí domu za cenu 500.000,- Kč.

Hlavní přednosti:
Předokenní žaluzie na velkoformátových HS portálech.
Vzdušná terasa orientovaná do zeleného vnitrobloku.
Klimatizace v obytných místnostech.
Podlahové vytápění, dřevěné dubové podlahy.
Parkování přímo v domě.

Vybavení:
Dřevěné dubové podlahy, interiérové dveře ve výšce 207 cm zn. SAPELI, obklady RAKO, sanita Hansgrohe, sprchové zástěny Hűppe.

Lokalita:
Vše pro rodinný život v docházkové vzdálenosti – MŠ, ZŠ, SŠ, gymnázia, MHD, vlakové i autobusové nádraží. OC IGY 5 minut pěšky, Palackého náměstí 200 m. Rychlý nájezd na D3.
Klidná ulice a tichý vnitroblok se zahradou. Město máte na dosah, ale doma máte klid.

Cena včetně DPH.
Orientační výměry místností jsou uvedeny na přiloženém půdorysu. Prodávající si vyhrazuje právo vybrat kupujícího na základě jím zvolených kritérií. Prodávající si vyhrazuje právo vybrat kupujícího na základě jím zvolených kritérií.
Cena:
12 980 000 CZK / za nemovitost
Poznámka k ceně:
+ možnost přikoupit garážové parkovací stání za 500.000,- Kč
RX finance

Spočítejte si splátku hypotéky

Na kolik vás vyjde pořízení vlastního bydlení? Zadejte pár informací do naší hypoteční kalkulačky a hned si prohlédněte výsledek.

Kupní cena nemovitosti

12 980 000 Kč

Výše hypotéky

Doba splácení

Vypočítaná měsíční splátka

Úroková sazba 3.6%

260 990 Kč

Hypotéku zařídíme za vás

Ušetřete svůj čas i nervy. Naši makléři zařídí veškeré papírování a dovedou vás až k úspěšnému podpisu smlouvy v bance.

Nechte nám kontakt, náš makléř se v pracovní dny ozve do 24 hodin

* – toto pole je nutné vyplnit
Bc. František Šteinhauser
REMAX G8 Reality 8
Pekárenská 1128/46
České Budějovice, 37004
Česká republika
Tel. na makléře: +420 733 785 784
Tel. do kanceláře: +420 733 785 785
E-mail: frantisek.steinhauser@re-max.cz

Potřebujete poradit/máte zájem o prohlídku?

* – toto pole je nutné vyplnit

Podrobné informace

Číslo zakázky:
ID 343-NP00837
Dispozice:
4+kk
Číslo podlaží:
5
Počet podlaží v objektu:
6
Užitná plocha:
134 m²
Druh objektu:
Cihlová
Stav objektu:
Novostavba
Vlastnictví:
Osobní
Typ nemovitosti:
Byty
Charakter okolní zástavby:
Obytná
K nastěhování:
1. 5. 2026
Doprava:
Vlak, Silnice, MHD, Autobus
Elektřina:
230 V
Garáž:
Ano
Odpad:
Kanalizace
Podlahová plocha:
160 m²
Telekomunikace:
Internet
Umístění objektu:
Klidná část obce
Voda:
Dálkový rozvod
Vybaveno:
Ano
Výtah:
Ano
Energetická náročnost budovy:
B