Translate with 
MENU ZAVŘÍT

Pronájem bytu 1+1 v osobním vlastnictví 32 m², Mníšek pod Brdy (ID 262-NP00621)

ulice Rudé armády, Mníšek pod Brdy mapa

13 000 Kč ( za měsíc)
DMéně
úsporná

1x
1x
32 m2
3/4
Exkluzivně

Pronájem bytu 1+1, 32 m2, Mníšek pod Brdy

Ráda vám představuji útulný byt k dlouhodobému pronájmu v Mníšku pod Brdy.

Bydlení v Mníšku je ideální pro milovníky přírody, nadšence do historie, sportovce i ty, kteří hledají klid a příjemné zázemí. Toto menší město nabízí vše potřebné pro pohodlný život a zároveň leží na strategické dopravní spojnici mezi Prahou a západní částí Jihočeského kraje. Do Prahy se odsud dostanete během několika minut. Místní komunita žije bohatým kulturním i společenským životem – během roku se zde koná řada akcí a funguje zde množství spolků pro děti i dospělé. Okolí města je ideální pro procházky, sport i odpočinek v přírodě.

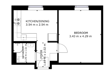
Nabízený byt má dispozici 1+1 (32 m2) a prošel kompletní rekonstrukcí. Nabízí se částečně vybaven - kuchyňská linka s vestavnými spotřebiči (trouba, indukční varná deska, myčka, pračka se sušičkou), vestavná úložná skříň v chodbě a velká šatní skříň v ložnici. Navíc k bytu náleží praktická prostorná komora přímo na patře, takže místa pro uložení věcí je tu opravdu dost. V suterénu domu je možné využívat uzamykatelnou kolárnu/kočárkárnu.

Měsíční nájemné: 13.000,- Kč
Kompletní měsíční náklady včetně elektřiny: cca 3.000,- Kč
Kauce: 13.000,- Kč
Byt je připraven k nastěhování od května.
Majitelé preferují nájemce nekuřáka a bez domácích mazlíčků.

Pro prohlídku a další informace mě neváhejte kontaktovat prostřednictvím odpovědního formuláře. Pronajímající si vyhrazuje právo vybrat nájemce na základě jím zvolených kritérií.
Cena:
13 000 CZK / za měsíc
Poznámka k ceně:
kompletní poplatky 3000,-
Zuzana Vránová
REMAX Scopus
Olbrachtova 1065/46
Praha 4 - Krč, 14000
Česká republika
Tel. na makléře: +420 736 482 868
Tel. do kanceláře: +420 733 746 846
E-mail: zuzana.vranova@re-max.cz

Potřebujete poradit/máte zájem o prohlídku?

* – toto pole je nutné vyplnit

Podrobné informace

Číslo zakázky:
ID 262-NP00621
Dispozice:
1+1
Číslo podlaží:
3
Počet podlaží v objektu:
4
Užitná plocha:
32 m²
Druh objektu:
Smíšená
Stav objektu:
Velmi dobrý
Vlastnictví:
Osobní
Typ nemovitosti:
Byty
K nastěhování:
7. 6. 2024
Podlahová plocha:
32 m²
Umístění objektu:
Centrum obce
Energetická náročnost budovy:
D