Translate with 
MENU ZAVŘÍT

Pronájem domu 50 m², Srubec (ID 111-NP08771)

ulice K Hájovně, Srubec mapa

17 600 Kč (vč. DPH, za měsíc)
CÚsporná

2x
50 m2
250 m2
1
Exkluzivně Rezervace

Pronájem klimatizovaného RD 2+kk, 50 m2 se zahradou na Srubci

Nabízíme k pronájmu novostavbu rodinného domu - typu bungalov v klidné části Srubce. Dům o velikosti 2+kk (50 m2 + půdní úložný prostor cca 9 m2 ) s terasou (28 m2 + 8 m2), zahradou 200 m2, plechovým zahradním domkem, možností parkování, je pouze několik minut od ČB.

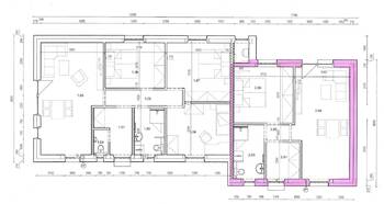
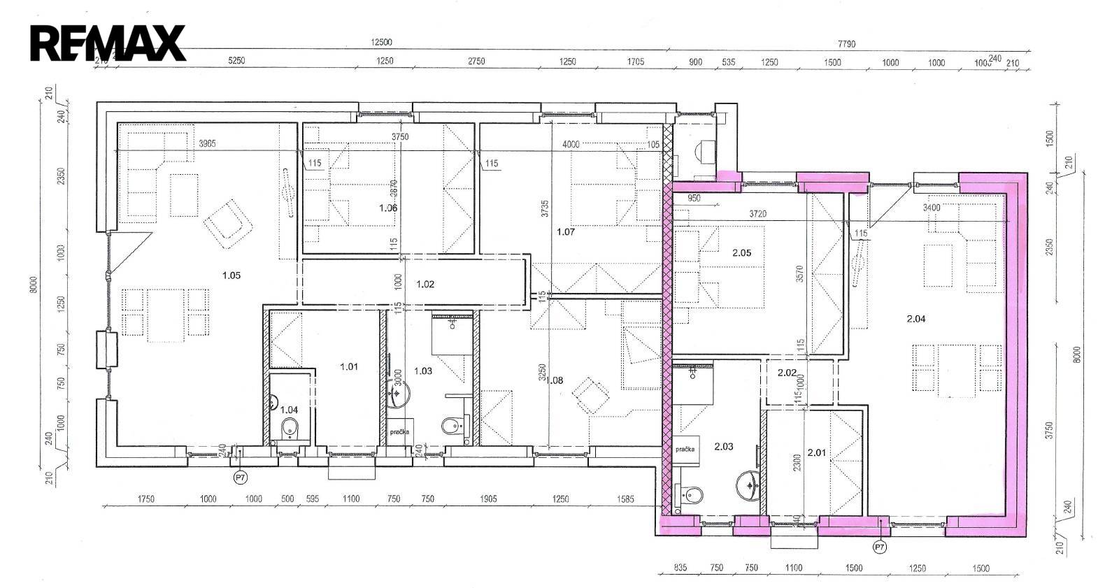
V přízemí rodinného domu se nachází předsíň (4 m2), koupelna s WC (6,5 m2), ložnice (13,5 m2), chodba (2 m2), obývací pokoj (24 m2), jihozápadní venkovní terasa (28 m2) se vstupem z obýváku a ložnice, jihovýchodní terasa u vchodu (8 m2).
K domku patří zahrada cca 200 m2.

Kuchyňská linka osazena spotřebiči Elektrolux – sklokeramická deska + trouba, mikrovlnka, digestoř, osazen dřez s baterií, dále je součástí linky ostrůvek i samostatný jídelní stůl.
V koupelně osazen sprchový kout 120x90cm, WC, umyvadlo, zrcadlo s LED osvětlením, otopný žebřík a příprava na pračku příp. sušičku.
Veškeré podlahy v bytě jsou s keramickou dlažbou a s podlahovým topením. Osvětlení interiéru i exteriéru řešeno úsporným LED osvětlením.
V zádveří instalovaná vestavěná skříň.
Po celém domě datová síť.
Okna na západ jsou osazena výsuvnými předokenními roletami, na východ venkovními žaluziemi.
Dům je zabezpečen kamerovým systémem, uvnitř domu alarm napojený na pult centrální ochrany.

Dům je vytápěn plynovým kotlem včetně ohřevu TUV.
Parkování možné v přímo vedle domu (ve slepé ulici) - 2 parkovací místa.
Úložné půdní prostory jsou přístupné z chodby bytové jednotky.

K domku náleží zahradní domek cca 6 m2.

V domě je osazena klimatizace.

MHD ve vzdálenosti 150 m od domu, restaurace 150m, potraviny 250m, dětské hřiště 200m, les 300m.

Majitelé upřednostňují nekuřáky bez zvířat.

Volné od 1.6.2026.

Měsíční nájemné 17.600,- Kč
Měsíční zálohy na energie 2.400,- Kč.
Poplatek RK 17.600,- Kč + DPH.
Jistina (kauce) 30.000,- Kč
Možnost zajištění pravidelného úklidu hotelového typu, včetně údržby zeleně – zahrady, trávníku apod.
Pronajímající si vyhrazuje právo vybrat nájemce na základě jím zvolených kritérií.
Cena:
17 600 CZK / Rezervováno
Poznámka k ceně:
+ energie 2400,- /měs
Mgr. Hana Zaňková, MBA
REMAX Dynamic
Kanovnická 75/4
České Budějovice, 37001
Česká republika
Tel. na makléře: +420 721 865 568
Tel. do kanceláře: +420 725 910 910
E-mail: hana.zankova@re-max.cz

Potřebujete poradit/máte zájem o prohlídku?

* – toto pole je nutné vyplnit

Podrobné informace

Číslo zakázky:
ID 111-NP08771
Poloha objektu:
Samostatný
Počet podlaží v objektu:
1
Užitná plocha:
50 m²
Plocha parcely:
250 m²
Druh objektu:
Cihlová
Stav objektu:
Velmi dobrý
Typ nemovitosti:
Domy a vily
Bezbariérový byt:
Ano
Charakter okolní zástavby:
Obytná
K nastěhování:
1. 6. 2026
Doprava:
Silnice, MHD, Autobus
Elektřina:
230 V
Odpad:
Kanalizace
Plocha zahrady:
200 m²
Zastavěná plocha:
50 m²
Plyn:
Plynovod
Počet parkovacích míst:
1
Rok výstavby:
2 020
Telekomunikace:
Internet
Typ domu:
Přízemní
Umístění objektu:
Centrum obce
Voda:
Dálkový rozvod
Energetická náročnost budovy:
C
Měrná vypočtená roční spotřeba energie v kWh/m²/rok:
152