Translate with 
MENU ZAVŘÍT

Prodej obchodních prostor 61 m², Poděbrady (ID 299-NP00286)

ulice Lidická, Poděbrady – část obce Poděbrady III mapa

Cena na vyžádání v kanceláři
DMéně
úsporná

61 m2
Exkluzivně

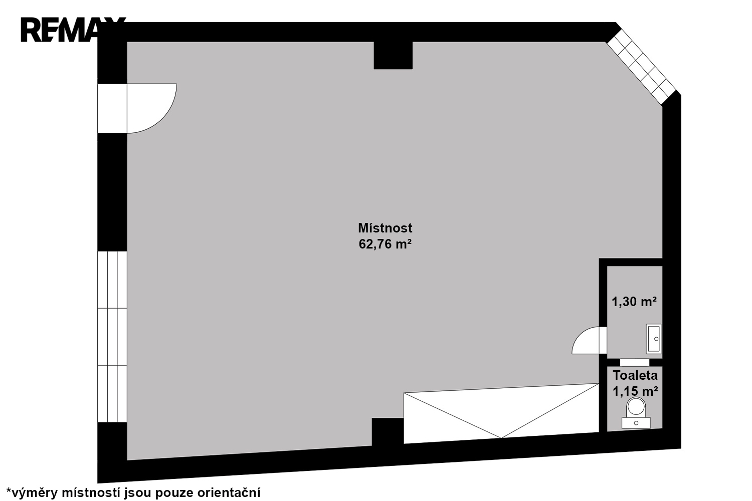
Prodej nebytového prostoru 60,89 m2 v Poděbradech, Lidická ulice

Nová nabídka. Ve výhradním zastoupení vám nabízíme prodej nebytového prostoru o velikosti 60,89 m2 v širším centru Poděbrad. Nebytová jednotka s výlohou se nachází v přízemí bytového domu v Lidické ulici.

Objekt, kde se nebytový prostor nachází, byl postaven kolem roku 1930 a v roce 2010 byla provedena kompletní rekonstrukce objektu včetně zateplení pláště budovy. Vnitřní omítky jsou štukové, okna jsou plastová s dvojsklem a vchodové dveře plastové bezpečnostní. Výška prostor je od poloviny rozdílná a to konkrétně 3,2 a 3,4 m. Z hygienického zařízení je zde závěsná toaleta a umyvadlo. U bezbariérového vstupu je položena keramická dlažba, hlavní prostor je vybaven vinylovou krytinou.

Nebytový prostor má připojení na všechny sítě (elektrická energie, plyn, voda a kanalizace). Prostor je vytápěn ústředním topením pomocí vlastního plynového kotle který slouží zároveň k ohřevu TUV.

S vymezenou nebytovou jednotkou v osobním vlastnictví si dále kupujete příslušný podíl na domě čp. 702, pozemku pod a za domem (vyjma míst určených k parkování). S vlastnictvím souvisí hrazení nízkých měsíčních nákladů 1530 Kč (fond oprav 913 Kč a další měsíční platby jako je pojištění a záloha na vodu). Náklady na vlastní elektrickou energii a plyn nejsou v této částce zahrnuty.

Prostory jsou vhodné pro prodejnu, kancelář a jiné obdobné komerční využití. V případě například potravinářského záměru nebo jiné změny ve využití, by se muselo jednat o příslušné schválení změny včetně související dokumentace. Nebytový prostor je ve velmi dobrém stavu a může po předání poměrně rychle sloužit k vlastnímu podnikání nebo případnému pronájmu. Veškeré dokumenty máme k dispozici (list vlastnictví, prohlášení vlastníka, měsíční předpis, revize, PENB). Nemovitost je pouze do konce června v pronájmu.

Součástí nabídky může být také parkovací místo v uzavřeném areálu domu za vjezdovou bránou. Nejedná se o pouhý spoluvlastnický podíl, ale o samostatný pozemek o výměře 18 m², což představuje praktickou i právně přehlednou výhodu. Parkovací stání má navíc světlou výšku cca 2,9 m. Pro využití nebytového prostoru může jít o velmi zajímavý a hodnotný benefit, nikoli však o podmínku koupě.

Cena nebytového prostoru i případného parkovacího místa je k dispozici na dotaz u makléře. Nabízená nemovitost je bez zatížení a může být financována úvěrem. Spolupráce s ostatními realitními makléři je vítána a podporována. Těším se na setkání! Prodávající si vyhrazuje právo vybrat kupujícího na základě jím zvolených kritérií.
Cena:
Cena na vyžádání v kanceláři
Poznámka k ceně:
Cena včetně provize a právních služeb
Ivo Hendrych
REMAX Happy
Palackého 69
Poděbrady, 29001
Česká republika
Tel. na makléře: +420 608 663 366
Tel. do kanceláře: +420 608 663 366
E-mail: ivo.hendrych@re-max.cz

Potřebujete poradit/máte zájem o prohlídku?

* – toto pole je nutné vyplnit

Podrobné informace

Číslo zakázky:
ID 299-NP00286
Typ nemovitosti:
Komerční prostory
Druh prostor:
Obchodní
Číslo podlaží:
1
Počet podlaží v objektu:
4
Plocha kanceláří:
61 m²
Druh objektu:
Cihlová
Stav objektu:
Velmi dobrý
Bezbariérový byt:
Ano
Charakter okolní zástavby:
Obchodní a obytná
K nastěhování:
1. 7. 2026
Doprava:
Vlak, Dálnice, Silnice, MHD, Autobus
Elektřina:
230 V
Odpad:
Kanalizace
Celková plocha:
61 m²
Plyn:
Plynovod
Rok rekonstrukce:
2010
Rok výstavby:
1 930
Telekomunikace:
Internet
Typ domu:
Patrový
Voda:
Dálkový rozvod
Energetická náročnost budovy:
D
Měrná vypočtená roční spotřeba energie v kWh/m²/rok:
172