Translate with 
MENU ZAVŘÍT

Prodej nájemního domu 196 m², Černovice (ID 143-NP07339)

ulice Mariánské náměstí, Černovice mapa

4 200 000 Kč ( za nemovitost)
GMimořádně
nehospodárná

196 m2
258 m2
2
Exkluzivně

Prodej rodinného domu 196 m2, pozemek 828 m2

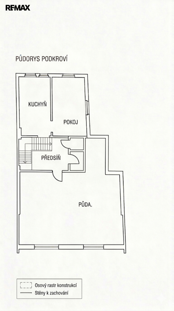
Nabízíme k prodeji činžovní dům na náměstí v Černovicích. Nemovitost je vhodná jak pro rodinné či vícegenerační bydlení, tak i pro spojení bydlení a podnikání.

Dům prošel částečnou rekonstrukcí a je v dobrém technickém stavu. Je napojen na obecní vodovod a kanalizaci. Plynová přípojka se nachází přímo před domem.

Dispozice domu umožňuje vícegenerační využití, případně oddělení obytné a podnikatelské části. Výhodou je také možnost parkování až dvou automobilů v průjezdu.

Součástí pozemku je hospodářská budova o výměře 96 m², která nabízí široké možnosti využití – například jako dílna, sklad, garáž, zázemí pro podnikání nebo chov zvířat.

Na pozemku se nacházejí dvě zahrady, které lze využít k odpočinku, pěstování ovoce a zeleniny, posezení s rodinou nebo například jako výběh pro drobná domácí zvířata.

Na dosah je občanská vybavenost - školka, škola, autobusová zastávka, městský úřad, pošta, bankomat, prodejny potravin, řeznictví, železářství, benzínová stanice, prodejna stavebnin, železniční zastávka úzkokolejky, autoservis a další.

Další velkou výhodou nemovitosti je územní plán, ve kterém je nemovitost vedena jako plochy smíšené obytné městské (SM). Toto využití umožňuje kombinaci bydlení a obslužných funkcí, jako jsou obchod, služby, administrativa nebo kanceláře.

Hlavní výhody:

centrum města – přímo na náměstí
částečná rekonstrukce
obecní vodovod a kanalizace
plynová přípojka před domem
pevný internet
možnost parkování 2 aut v průjezdu
hospodářská budova 96 m²
dvě zahrady
vhodné pro vícegenerační bydlení
možnost spojení bydlení a podnikání
8 obytných místností
2x samostatné wc
2x samostatná koupelna
2x koupelna s wc

V případě zájmu o více fotografií, informací nebo prohlídku neváhejte kontaktovat makléře nabídky. Prodávající si vyhrazuje právo vybrat kupujícího na základě jím zvolených kritérií.
Cena:
4 200 000 CZK / za nemovitost
RX finance

Spočítejte si splátku hypotéky

Na kolik vás vyjde pořízení vlastního bydlení? Zadejte pár informací do naší hypoteční kalkulačky a hned si prohlédněte výsledek.

Kupní cena nemovitosti

4 200 000 Kč

Výše hypotéky

Doba splácení

Vypočítaná měsíční splátka

Úroková sazba 3.6%

260 990 Kč

Hypotéku zařídíme za vás

Ušetřete svůj čas i nervy. Naši makléři zařídí veškeré papírování a dovedou vás až k úspěšnému podpisu smlouvy v bance.

Nechte nám kontakt, náš makléř se v pracovní dny ozve do 24 hodin

* – toto pole je nutné vyplnit
Miroslav Smrčka
REMAX A-City
Žižkova 1683/13
Jihlava, 58601
Česká republika
Tel. na makléře: +420 606 589 402
Tel. do kanceláře: +420 736 631 404
E-mail: miroslav.smrcka@re-max.cz

Potřebujete poradit/máte zájem o prohlídku?

* – toto pole je nutné vyplnit

Podrobné informace

Číslo zakázky:
ID 143-NP07339
Počet podlaží v objektu:
2
Celková plocha:
196 m²
Druh objektu:
Cihlová
Stav objektu:
Dobrý
Typ nemovitosti:
Nájemní domy
Charakter okolní zástavby:
Obytná
K nastěhování:
1. 6. 2026
Doprava:
Vlak, Silnice, Autobus
Elektřina:
230 V, 400 V
Odpad:
Kanalizace
Užitná plocha:
196 m²
Plocha zahrady:
570 m²
Zastavěná plocha:
258 m²
Plyn:
Plynovod
Telekomunikace:
Internet
Umístění objektu:
Centrum obce
Voda:
Dálkový rozvod
Vybaveno:
Ano
Energetická náročnost budovy:
G