Translate with 
MENU ZAVŘÍT

Pronájem kancelářských prostor 25 m², Žatec (ID 032-NP09658)

ulice třída Obránců míru, Žatec mapa

1 100 Kč ( m²/rok)
GMimořádně
nehospodárná

25 m2
Exkluzivně

Pronájem kanceláře v Žatci

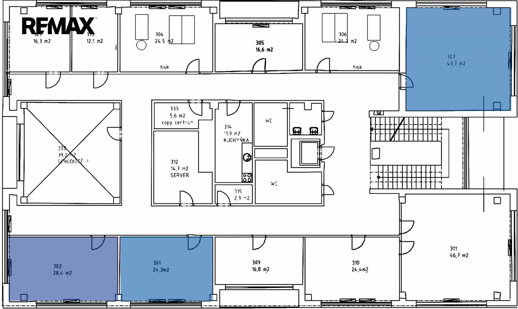
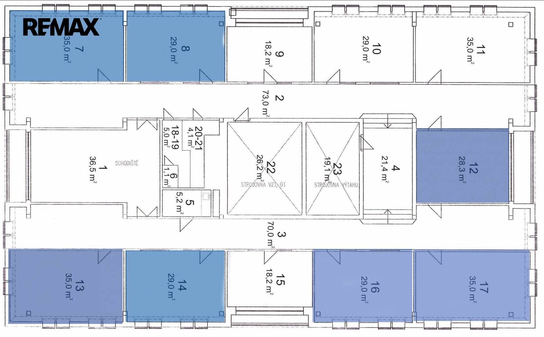
Exklusivně Vám nabízíme pronájem kanceláří ve čtyřpatrovém domě v Žatci. Kanceláře se nacházejí ve 2. - 4. NP. Na každém patře je k dispozici dámské a pánské WC, kuchyňka, úklidová místnost. V objektu je výtah. ​Do všech kanceláří je zavedena telefonní linka s možností zřídit internet, kanceláře mají nové koberce. Nájem činí 92 Kč/​m2/​měsíc (bez DPH) + zálohy na služby.
Zálohy na jednotlivé služby ( bez DPH):​ jsou uvedené v tabulce ve fotogalerii.

V současnosti jsou volné kanceláře o velikostech od 25 m2 (nájem 2300 Kč + DPH) do 35 m2 (nájem 3208 Kč + DPH). Obsazenost se často mění, proto pro ověření obsazenosti vámi vybrané kanceláře, volejte.

​Možnost pronájmu i parkovacího místa v garážích za 1000 Kč měsíc.

Provize RK ve výši jednoho měsíčního nájmu + DPH Pronajímající si vyhrazuje právo vybrat nájemce na základě jím zvolených kritérií.
Cena:
1 100 CZK / m2/rok
Poznámka k ceně:
+ zálohy na služby
Ing. Monika Maděrová
REMAX 4 You
Nám. 1. máje 95
Chomutov, 43001
Česká republika
Tel. na makléře: +420 776 774 723
Tel. do kanceláře: +420 739 500 617
E-mail: monika.maderova@re-max.cz

Potřebujete poradit/máte zájem o prohlídku?

* – toto pole je nutné vyplnit

Podrobné informace

Číslo zakázky:
ID 032-NP09658
Typ nemovitosti:
Komerční prostory
Druh prostor:
Kanceláře
Číslo podlaží:
2
Počet podlaží v objektu:
4
Plocha kanceláří:
25 m²
Druh objektu:
Montovaná
Stav objektu:
Velmi dobrý
Bezbariérový byt:
Ano
K nastěhování:
1. 4. 2026
Doprava:
Vlak, Silnice, MHD, Autobus
Elektřina:
230 V
Odpad:
Kanalizace
Celková plocha:
25 m²
Zastavěná plocha:
470 m²
Počet volných kanceláří:
10
Telekomunikace:
Internet
Typ domu:
Patrový
Výtah:
Ano
Energetická náročnost budovy:
G