Translate with 
MENU ZAVŘÍT

Prodej výrobních prostor 1500 m², České Budějovice (ID 343-NP00845)

ulice Kaliště, České Budějovice – část obce České Budějovice 5 mapa

Cena na vyžádání v kanceláři
GMimořádně
nehospodárná

1500 m2
Exkluzivně

Prodej objektu pro skladování a výrobu, Kaliště u Českých Budějovic

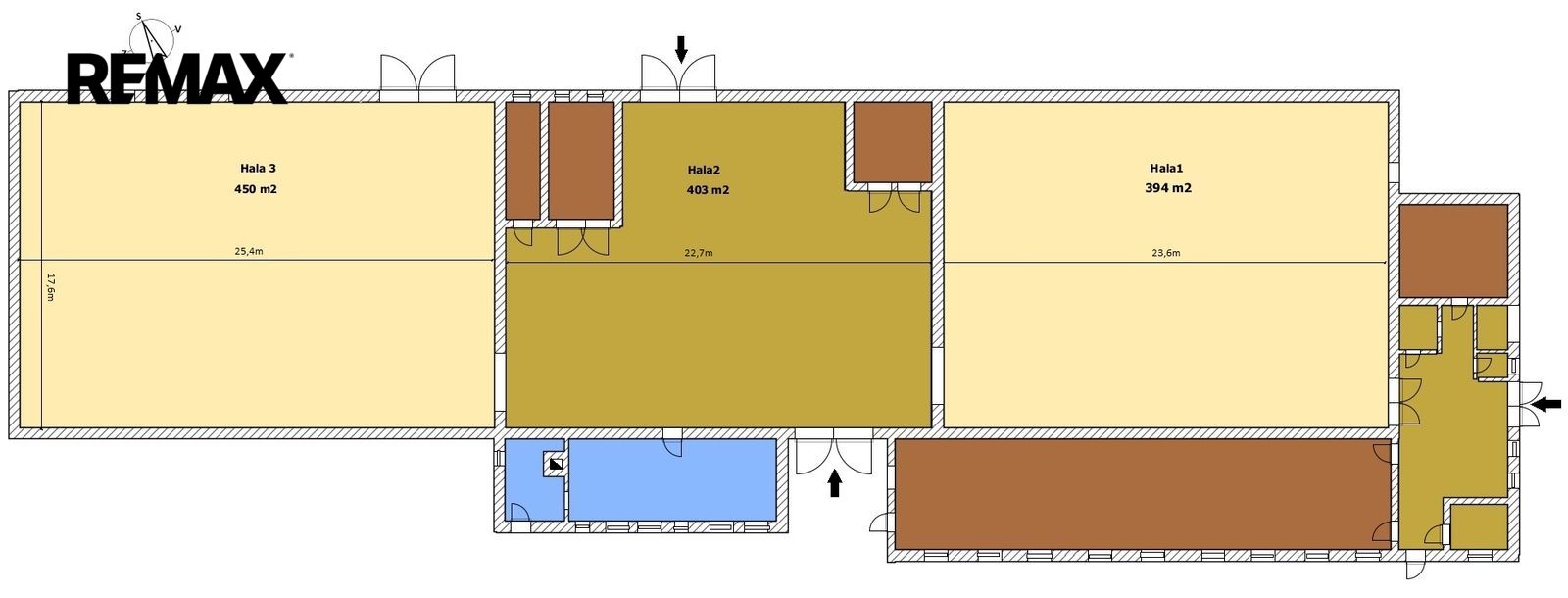
Nabízíme k prodeji skladovací halu a výrobní objekt na okraji obce Kaliště, České Budějovice 5. Objekt je dobře dostupný kamionovou dopravou a disponuje dostatečným prostorem pro jejich manipulaci. Samotný objekt o zastavěné ploše 2048m2 je členěn na tři haly, šatnu, kotelnu, zázemí, kanceláře a technologické místnosti. Manipulační plocha a pozemky okolo budovy mají rozlohu 2936m2. Celkem je tedy na prodej 4984m2 volné a zastavěné plochy. Samotné haly pak mají rozměry: 395m2 výška 6,5m, 395m2 výška 6,5m, 395m2 výška 6,5m a další přilehlé místnosti.

Objekt má velký potenciál pro podnikatelské využití jako skladovací a výrobní prostory, sídlo firmy a další.
Objekt je připojen k elektrické síti s jističem 80A, přípojka obecního vodovodu a kanalizace je na hranici pozemku připravená k zavedení do objektu. Plynovod je v obecní komunikaci před objektem.
Kaliště je obec v okrese České Budějovice, část města České Budějovice 5.

Pro více informací a prohlídku kontaktujte makléře. Prodávající si vyhrazuje právo vybrat kupujícího na základě jím zvolených kritérií.
Cena:
Cena na vyžádání v kanceláři
Michaela Mikešová
REMAX G8 Reality 8
Pekárenská 1128/46
České Budějovice, 37004
Česká republika
Tel. na makléře: +420 773 609 166
Tel. do kanceláře: +420 733 785 785
E-mail: michaela.mikesova@re-max.cz

Potřebujete poradit/máte zájem o prohlídku?

* – toto pole je nutné vyplnit

Podrobné informace

Číslo zakázky:
ID 343-NP00845
Typ nemovitosti:
Komerční prostory
Druh prostor:
Výrobní
Číslo podlaží:
1
Počet podlaží v objektu:
1
Plocha kanceláří:
1 500 m²
Druh objektu:
Cihlová
Stav objektu:
Velmi dobrý
K nastěhování:
5. 12. 2022
Elektřina:
230 V, 400 V
Odpad:
Kanalizace
Celková plocha:
1 500 m²
Plocha zahrady:
2 936 m²
Zastavěná plocha:
2 048 m²
Plyn:
Plynovod
Typ domu:
Přízemní
Umístění objektu:
Centrum obce
Voda:
Dálkový rozvod
Energetická náročnost budovy:
G