Translate with 
MENU ZAVŘÍT

Prodej domu 209 m², Velké Svatoňovice (ID 023-NP08865)

Velké Svatoňovice – část obce Markoušovice mapa

8 900 000 Kč ( za nemovitost)
BVelmi
úsporná

209 m2
2108 m2
2
Exkluzivně

Prodej domu v malebné obci Markoušovice

Pokud hledáte bydlení v tiché části obce a navíc s krásným výhledem do okolní krajiny, pak se podívejte na naši aktuální nabídku.

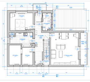
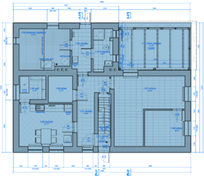
Dům o dispozici 6+2 je velmi dobře udržovaný a je ideální volbou pro pro větší rodinu, popřípadě vícegenerační bydlení...
V každém patře se nachází plně vybavená kuchyň, koupelna, pokoj a ložnice.

Součástí domu je také půdní prostor, který nabízí možnost dalšího využití. Primární vytápění je zajištěno automatickým kotlem na pelety, který je umístěn v kotelně v přízemí domu. Systém je napojen i na elektrokotel. Navíc jsou zde v každém patře krbová kamna, která dokáží vytopit celý dům.
Voda je z obecního z prameniště samospádem ( teče, i když nejde elektřina).

Interiér domu prošel v průběhu posledních 13ti letech rekonstrukcí, která zahrnovala výměnu plastových oken, podlah a rozvodů elektřiny i vody. Dům je přizpůsoben i životu bezbariérově, do patra je přístup po žulovém schodišti a navíc je zde instalována i elektrická schodišťová plošina. Střecha, okapy a svody jsou z pozinkového plechu - nátěr 2024.
V garáži pod terasou se nachází nádrže na dešťovou vodu cca 4 m3.
Odpadní vody jsou svedeny do septiku. A navíc - potůček protékající v zadní části pozemku...

Nemovitost je vhodná pro trvalé bydlení i rekreaci a představuje zajímavou příležitost pro klienty hledající klidné bydlení s potenciálem dalšího rozšíření. Pro více informací nebo sjednání prohlídky nás neváhejte kontaktovat. Prodávající si vyhrazuje právo vybrat kupujícího na základě jím zvolených kritérií.
Prodávající si vyhrazuje právo vybrat kupujícího na základě jím zvolených kritérií.
Cena:
8 900 000 CZK / za nemovitost
Poznámka k ceně:
včetně právního a hypotečního servisu
RX finance

Spočítejte si splátku hypotéky

Na kolik vás vyjde pořízení vlastního bydlení? Zadejte pár informací do naší hypoteční kalkulačky a hned si prohlédněte výsledek.

Kupní cena nemovitosti

8 900 000 Kč

Výše hypotéky

Doba splácení

Vypočítaná měsíční splátka

Úroková sazba 3.6%

260 990 Kč

Hypotéku zařídíme za vás

Ušetřete svůj čas i nervy. Naši makléři zařídí veškeré papírování a dovedou vás až k úspěšnému podpisu smlouvy v bance.

Nechte nám kontakt, náš makléř se v pracovní dny ozve do 24 hodin

* – toto pole je nutné vyplnit
Květuše Kostelecká
REMAX G8 Reality 2
Kleinerova 1466
Kladno, 27201
Česká republika
Tel. na makléře: +420 603 267 662
Tel. do kanceláře: +420 312 240 239
E-mail: kvetuse.kostelecka@re-max.cz

Potřebujete poradit/máte zájem o prohlídku?

* – toto pole je nutné vyplnit

Podrobné informace

Číslo zakázky:
ID 023-NP08865
Poloha objektu:
Samostatný
Počet podlaží v objektu:
2
Užitná plocha:
209 m²
Plocha parcely:
2 108 m²
Druh objektu:
Smíšená
Stav objektu:
Velmi dobrý
Typ nemovitosti:
Domy a vily
K nastěhování:
15. 4. 2026
Odpad:
Septik
Plocha zahrady:
1 862 m²
Zastavěná plocha:
246 m²
Počet podlaží pod zemí:
1
Typ domu:
Patrový
Umístění objektu:
Klidná část obce
Voda:
Zdroj pro celý objekt
Energetická náročnost budovy:
B