Translate with 
MENU ZAVŘÍT

Prodej bytu 1+1 v osobním vlastnictví 34 m², Brno (ID 268-NP03595)

ulice Tábor, Brno – městská část Brno-Žabovřesky mapa

4 590 000 Kč ( za nemovitost)
ENehospodárná

1x
1x
34 m2
1/6
Exkluzivně

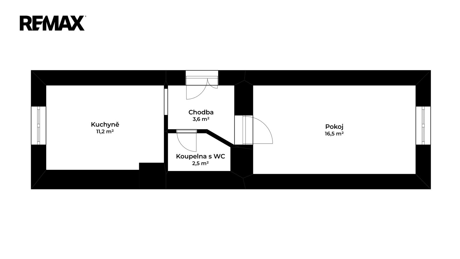
Prodej bytu 1+1, 33,8m2 k rekonstrukci - Brno Žabovřesky, ul. Tábor

Doporučuji zhlédnout videoprohlídku. Inzertní cena je uvedena včetně provize a právního servisu.



Ve výhradním zastoupení majitele si vám ke koupi dovoluji nabídnout bytovou jednotku 1+1 s přibližnou podlahovou plochou 33,8 m². Byt se nachází v Brně – Žabovřeskách na ulici Tábor 887/19, v přízemí cihlového bytového domu bez výtahu.



Stav a rekonstrukce

Byt je vhodný k rekonstrukci a nabízí jasně definovaný rozsah prací. Hlavní položkou je sanace vlhkosti v podlaze a zdech — na ni je již zpracován kompletní projekt, který bude předán novému majiteli. Elektrické rozvody jsou měděné, doplněné o nový jistič a proudové chrániče. Byt se prodává částečně vybavený.



Zahrada a prostředí

Pro klidné chvíle bez ruchu nabízí dům přístup na společnou zahradu v uzavřeném vnitrobloku — volně k dispozici pro všechny obyvatele.



Vytápění a ohřev vody

Aktuálně byt vytápějí plynové vafky, které doporučujeme v rámci rekonstrukce zrušit a přejít například na elektrické podlahové vytápění. Ohřev vody zajišťuje elektrický bojler.



Občanská vybavenost

Lokalita nabízí vše, co k pohodlnému bydlení potřebujete, v docházkové vzdálenosti. Hned v sousedství se nachází zastávka tramvaje č. 3 a 10 (Tábor) se snadným spojením do centra. Denní nákupy pokryjete v nedalekém supermarketu Billa na Makovského náměstí nebo v oblíbené kavárně a cukrárně Bukovský přímo na Minské ulici, která je tepnou Žabovřesk a mimo jiné na ni najdete nespočet barů, restaurací, pizzérií, kaváren, bister, řezníka a dalších podníků. Milovníci přírody ocení blízkost Wilsonova lesa — oblíbeného brněnského parku s cestičkami a výhledy, ideálního na procházku nebo běh.



Měsíční zálohy (pro 2 osoby)

Elektřina: 1 800 Kč | Plyn: 2 000 Kč | SVJ + Fond oprav: 538 Kč | Celkem cca 4 338 Kč/měsíc



Příslušenství

K bytu náleží sklepní koje v 1. PP o výměře 3,3 m².




V případě více zájemců bude nemovitost prodána nejvýhodnější nabídce a prodávající si vyhrazuje právo vybrat kupujícího na základě jím zvolených kritérií.
Veškeré zveřejněné údaje obsažené v tomto inzerátu mají pouze informativní charakter a nejsou nabídkou ve smyslu §1731 nebo § 1732 občanského zákoníku, ani se nejedná o veřejný příslib dle § 1733 občanského zákoníku. Z této nabídky tak nikomu nevzniká nárok na uzavření smlouvy.



Zajištění hypotečního servisu s nejvýhodnější nabídkou na trhu dle individuálních potřeb klienta je samozřejmostí a zdarma.


Zaujala Vás tato nemovitost stejně jako mě? Zavolejte mi a sjednejte si termín prohlídky!


Váš osobní realitní partner
Tomáš Nedoma Prodávající si vyhrazuje právo vybrat kupujícího na základě jím zvolených kritérií.
Cena:
4 590 000 CZK / za nemovitost
Poznámka k ceně:
Vč. odměry RK, vč. právního servisu
RX finance

Spočítejte si splátku hypotéky

Na kolik vás vyjde pořízení vlastního bydlení? Zadejte pár informací do naší hypoteční kalkulačky a hned si prohlédněte výsledek.

Kupní cena nemovitosti

4 590 000 Kč

Výše hypotéky

Doba splácení

Vypočítaná měsíční splátka

Úroková sazba 3.6%

260 990 Kč

Hypotéku zařídíme za vás

Ušetřete svůj čas i nervy. Naši makléři zařídí veškeré papírování a dovedou vás až k úspěšnému podpisu smlouvy v bance.

Nechte nám kontakt, náš makléř se v pracovní dny ozve do 24 hodin

* – toto pole je nutné vyplnit
Tomáš Nedoma
REMAX Delux
Křenová 538/22
Brno, 60200
Česká republika
Tel. na makléře: +420 775 181 220
Tel. do kanceláře: +420 602 703 897
E-mail: tomas.nedoma@re-max.cz

Potřebujete poradit/máte zájem o prohlídku?

* – toto pole je nutné vyplnit

Podrobné informace

Číslo zakázky:
ID 268-NP03595
Dispozice:
1+1
Číslo podlaží:
1
Počet podlaží v objektu:
6
Užitná plocha:
34 m²
Druh objektu:
Cihlová
Stav objektu:
Před rekonstrukcí
Vlastnictví:
Osobní
Typ nemovitosti:
Byty
Charakter okolní zástavby:
Obytná
K nastěhování:
16. 4. 2026
Doprava:
Silnice, MHD, Autobus
Elektřina:
230 V
Odpad:
Kanalizace
Podlahová plocha:
34 m²
Plocha zahrady:
281 m²
Zastavěná plocha:
223 m²
Plyn:
Plynovod
Počet podlaží pod zemí:
1
Telekomunikace:
Internet
Umístění objektu:
Rušná část obce
Voda:
Dálkový rozvod
Vybaveno:
Ano
Energetická náročnost budovy:
E
Měrná vypočtená roční spotřeba energie v kWh/m²/rok:
200