Translate with 
MENU ZAVŘÍT

Prodej domu 123 m², Roztoky (ID 202-NP03110)

ulice Wolkerova, Roztoky mapa

16 500 000 Kč ( za nemovitost)
GMimořádně
nehospodárná

4x
123 m2
659 m2
2
Exkluzivně

Rodinný dům 4+1 se zahradou a dvěma garážemi – Roztoky u Prahy, ul. Wolkerova

Rodinný dům o dispozici 4+1 s plochou 122,9 m2 je situovaný v klidné rezidenční čtvrti v Roztokách u Prahy, v ulici Wolkerova. Dům je dvoupodlažní a prošel kompletní rekonstrukcí v roce 2014, díky které odpovídá vysokým standardům moderního a komfortního bydlení.

Hlavní přednosti:

• Kompletní rekonstrukce: dům byl v roce 2014 kompletně modernizován a je připraven k okamžitému užívání bez nutnosti dalších investic.
• Dvě garáže: součástí domu jsou dvě samostatné garáže s dílnou a skladem.
• Soukromí a zeleň: zahrada s výhledem do okolí je odcloněna od příjezdové komunikace a díky vzrostlé zeleni poskytuje maximální klid a soukromí.

Dispozice:

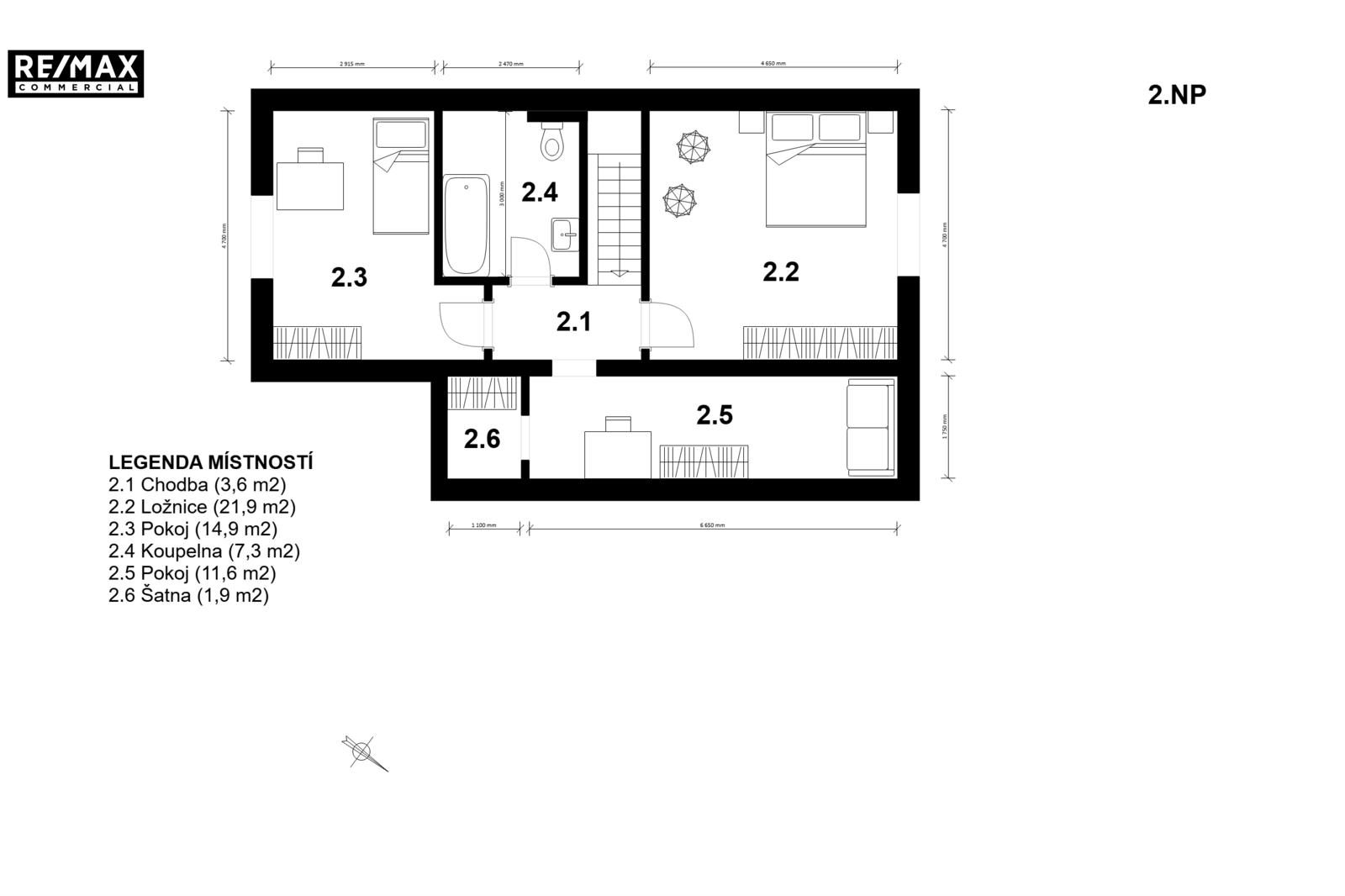
Ve zvýšeném přízemí se nachází obývací pokoj (20,3 m2), prostorná kuchyně s jídelnou (25,7 m2) a schodištěm do patra, vstupní chodba, spíž, technická místnost a koupelna. Pobytové místnosti jsou orientovány na jihozápad. Přímou součástí přízemí jsou také dvě samostatné garáže s dílnou a skladem. Střecha garáží je pochozí a lze ji využívat jako terasu.

V patře (podkroví) jsou situovány dvě ložnice, pracovna se šatnou a druhá koupelna. Dispozice domu je řešena tak, že každý člen rodiny bude mít dostatek soukromí a prostoru.

V prostoru před vstupem do domu a do jedné z garáží se nachází prostorný dvůr, který v letních měsících slouží jako terasa. Prostor nabízí výhled do zahrady i do okolí, zároveň je odstíněn od silnice a poskytuje výborné soukromí. Pozemek má plochu 659 m2.

Technické informace:

Původní stavba pochází z roku 1945. V roce 2014 proběhla kompletní rekonstrukce. Konstrukce je zděná, stropy jsou dřevěné trámové. Dům je kompletně zateplený (minerální vata 160 mm), okna jsou plastová s izolačními dvojskly. Krytinu tvoří pálené keramické tašky.

Vytápění zajišťuje vlastní plynový kondenzační kotel. V obytných místnostech v přízemí je podlahové vytápění, v 2.NP jsou radiátory.
Nemovitost je napojena na tyto inženýrské sítě – plynovod, vodovod a elektřinu.

Lokalita:

Roztoky u Prahy patří mezi vyhledávané lokality pro klidné rodinné bydlení v těsné blízkosti hlavního města. Nabízí kompletní občanskou vybavenost, ať už mateřské a základní školy v docházkové vzdálenosti, obchody nebo restaurace. Okolí je zároveň bohaté na zeleň a možnosti pro sport i relaxaci, včetně blízkého údolí Vltavy.

Dopravní dostupnost do Prahy je velmi kvalitní. Vlaková zastávka je vzdálena jen několik minut chůze, odtud se za 20 minut dostanete na Masarykovo nádraží. Stanice metra Dejvická je dostupná za cca 20 minut autem.

Závěr:

Další informace vám makléř rád poskytne telefonicky, formou podrobné prezentace nebo při osobní prohlídce. Prodávající si vyhrazuje právo vybrat kupujícího na základě jím zvolených kritérií.
Cena:
16 500 000 CZK / za nemovitost
Poznámka k ceně:
Exkluzivní nabídka včetně právního servisu a služeb
RX finance

Spočítejte si splátku hypotéky

Na kolik vás vyjde pořízení vlastního bydlení? Zadejte pár informací do naší hypoteční kalkulačky a hned si prohlédněte výsledek.

Kupní cena nemovitosti

16 500 000 Kč

Výše hypotéky

Doba splácení

Vypočítaná měsíční splátka

Úroková sazba 3.6%

260 990 Kč

Hypotéku zařídíme za vás

Ušetřete svůj čas i nervy. Naši makléři zařídí veškeré papírování a dovedou vás až k úspěšnému podpisu smlouvy v bance.

Nechte nám kontakt, náš makléř se v pracovní dny ozve do 24 hodin

* – toto pole je nutné vyplnit
Jaroslav Dvořák
REMAX Commercial Group
Antala Staška 511/40
Praha 4 - Krč, 14000
Česká republika
Tel. na makléře: +420 733 618 711
Tel. do kanceláře: +420 733 152 553
E-mail: jaroslav.dvorak@re-max.cz

Potřebujete poradit/máte zájem o prohlídku?

* – toto pole je nutné vyplnit

Podrobné informace

Číslo zakázky:
ID 202-NP03110
Poloha objektu:
Samostatný
Počet podlaží v objektu:
2
Užitná plocha:
123 m²
Plocha parcely:
659 m²
Druh objektu:
Smíšená
Stav objektu:
Velmi dobrý
Typ nemovitosti:
Domy a vily
Charakter okolní zástavby:
Obytná
K nastěhování:
1. 5. 2026
Doprava:
Vlak, Silnice, Autobus
Garáž:
Ano
Plyn:
Plynovod
Typ domu:
Patrový
Umístění objektu:
Klidná část obce
Voda:
Dálkový rozvod
Energetická náročnost budovy:
G