Translate with 
MENU ZAVŘÍT

Pronájem obchodních prostor 661 m², Praha 4 - Háje (ID 248-NP00937)

ulice Hviezdoslavova, Praha 4 – Háje mapa

250 000 Kč (bez DPH, za měsíc)
GMimořádně
nehospodárná

661 m2
Exkluzivně

Pronájem reprezentativní komerční budovy | Praha 4 – Háje

Nabízíme k pronájmu nadstandardně prostornou komerční budovu situovanou v atraktivní lokalitě Prahy 4 – Háje, v ulici Hviezdoslavova. Objekt je ideální pro kombinaci obchodních, kancelářských i skladových aktivit a díky své dispozici nabízí široké spektrum využití. V případě dohody se lze dohodnout na vybavení a zařízení dle potřeb nájemníka.

Budova byla doposud využívána jako zázemí internetového obchodu s elektronikou, což potvrzuje její funkčnost, praktičnost a dlouhodobou využitelnost pro podnikání.

Majitel preferuje dlouhodobý pronájem na dobu neurčitou s výpovědní lhůtou minimálně 9 měsíců.

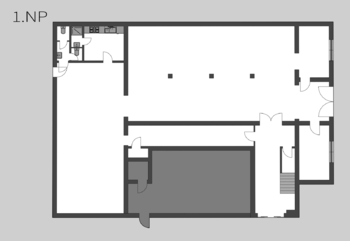
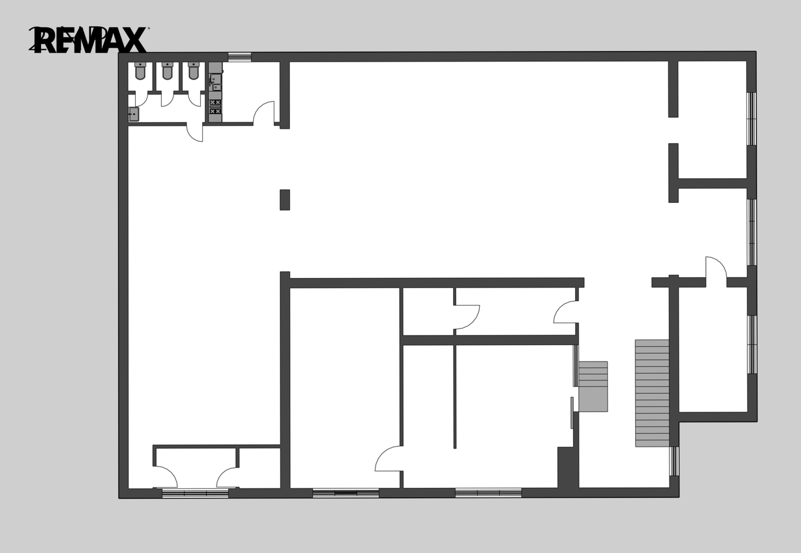
Celková užitná plocha činí 661 m², rozdělená do dvou nadzemních podlaží:
1. NP (297 m²) – převážně skladové prostory s kompletním zázemím (toalety, technická místnost, koupelna se sprchou, kuchyně s jídelnou)
2. NP (364 m²) – hlavní obchodní prostor doplněný kancelářemi, skladem, sociálním zázemím a kuchyňkou

Součástí nabídky je také pozemek o celkové výměře 892 m², včetně vlastního parkoviště o ploše 367 m², což výrazně zvyšuje komfort pro zaměstnance i klienty.

Technické parametry a vybavení:
Objekt je ve velmi dobrém technickém stavu – zateplená fasáda, plastová okna s izolačními dvojskly, kvalitní rozvody (částečně v mědi), centrální vysavač, zabezpečovací systém Jablotron a moderní osvětlení (LED ve 2. NP).

Ve skladové části se nachází sekční garážová vrata na dálkové ovládání, nechybí ani vzduchotechnika či pevné internetové připojení s rychlostí až 2 GB/s.

Napojení na inženýrské sítě je samozřejmostí – obecní vodovod, kanalizace a elektřina. Vytápění je řešeno centrálně prostřednictvím Pražské teplárenské.

Nájemné: 250.000,- Kč bez DPH
Provize RK: 125.000,- Kč bez DPH
K dispozici: ihned

V případě zájmu mě neváhejte kontaktovat Pronajímající si vyhrazuje právo vybrat nájemce na základě jím zvolených kritérií.
Cena:
250 000 CZK / za měsíc
Václav Kofroň
REMAX Power 2
Zahradnická 550
Příbram III, 26101
Česká republika
Tel. na makléře: +420 606 168 697
Tel. do kanceláře: +420 800 266 366
E-mail: vaclav.kofron@re-max.cz

Potřebujete poradit/máte zájem o prohlídku?

* – toto pole je nutné vyplnit

Podrobné informace

Číslo zakázky:
ID 248-NP00937
Typ nemovitosti:
Komerční prostory
Druh prostor:
Obchodní
Počet podlaží v objektu:
2
Plocha kanceláří:
661 m²
Druh objektu:
Cihlová
Stav objektu:
Velmi dobrý
Charakter okolní zástavby:
Obytná
K nastěhování:
20. 4. 2026
Doprava:
Silnice, MHD, Autobus
Odpad:
Kanalizace
Plocha zahrady:
892 m²
Zastavěná plocha:
525 m²
Počet parkovacích míst:
20
Telekomunikace:
Internet
Typ domu:
Patrový
Umístění objektu:
Sídliště
Voda:
Dálkový rozvod
Energetická náročnost budovy:
G